Kalipso 2 - bliźniak



Zawartość projektu
3 egzemplarze projektu archtektoniczno budowlanego + 3 egzemplarze projektu technicznego.
- Opis architektoniczno - budowlany
- Część rysunkowa (elewacje, rzuty, przekroje, zestawienie stolarki)
Projekt techniczny zawiera:
- Projekt konstrukcji
- Instalacje sanitarne + gazowe/ sanitarne + paliwo stałe
- instalacje elektryczne
Wypełnij formularz i otrzymaj rysunki w pdf z dokładnymi wymiarami budynku i pomieszczeń (długość, szerokość, wysokość) dla projektu Kalipso 2
Pow. użytkowa 99.1 m² |
Ilość pokoi 5 |
Powierzchnia zabudowy 82.7 m² |
Kondygnacje parterowy+poddasze |
Garaż 1 stanowisko |
Technologia murowany |
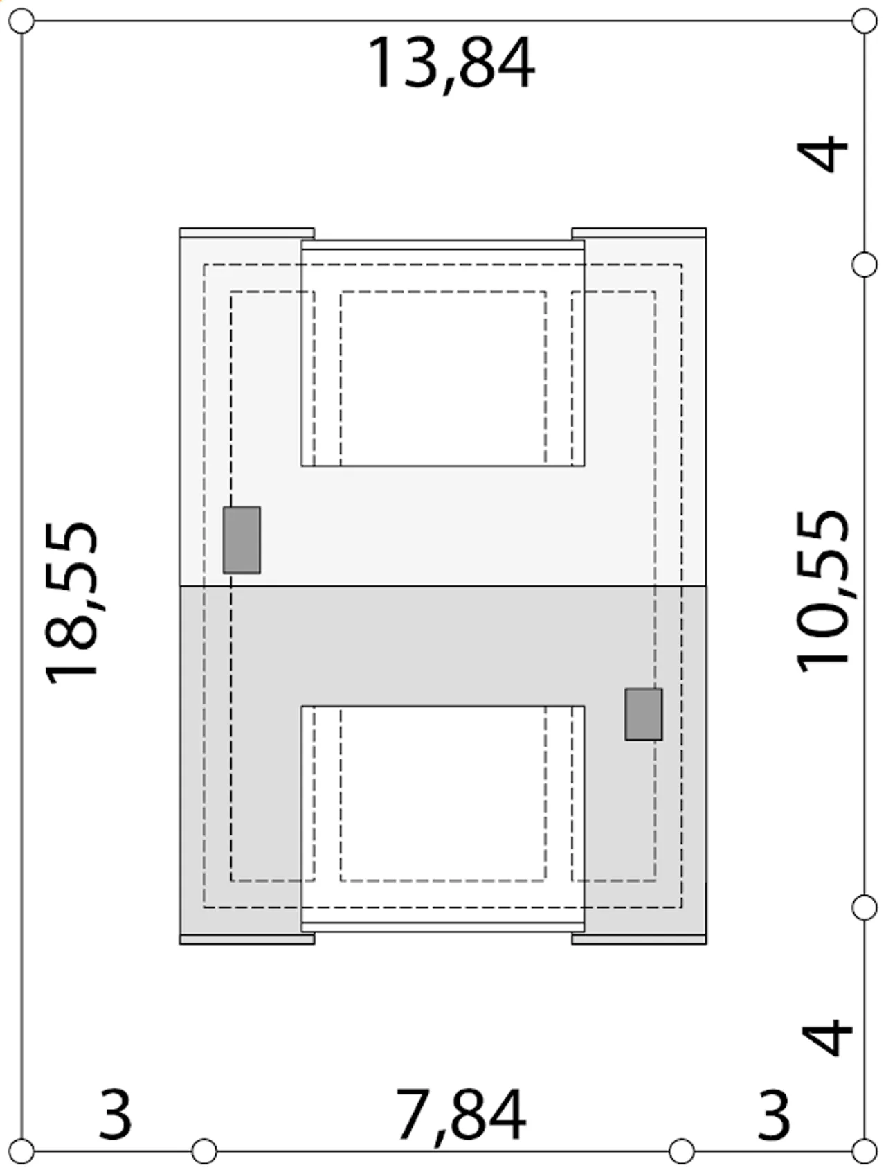
Szerokość działki 13.84 m |
Obiekt dom |
Typ domu jednorodzinny całoroczny |
Długość działki 18.55 m |
Styl budynku tradycyjny |
Kąt nachylenia dachu 35 ° |
Strop gęstożebrowy |
Liczba łazieniek 1 |
Kalenica równoległa do drogi |
Szerokość budynku 7.84 m |
Rodzaj garażu w bryle |
Kominek kominek w projekcie |
Funkcje dodatkowe z lukarnami |
Długość budynku 10.55 m |
Rodzaj dachu dwuspadowy |
Piwnica bez podpiwniczenia |
Wysokość budynku 8.65 m |
Bryła budynku prosta bryła |
Koszty budowy tylko z kosztorysem, 250-300 tys. |
Pow. użytkowa 99.1 m² |
Powierzchnia zabudowy 82.7 m² |
Garaż 1 stanowisko |
Szerokość działki 13.84 m |
Typ domu jednorodzinny całoroczny |
Styl budynku tradycyjny |
Strop gęstożebrowy |
Kalenica równoległa do drogi |
Rodzaj garażu w bryle |
Funkcje dodatkowe z lukarnami |
Rodzaj dachu dwuspadowy |
Wysokość budynku 8.65 m |
Koszty budowy tylko z kosztorysem, 250-300 tys. |
Ilość pokoi 5 |
Kondygnacje parterowy+poddasze |
Technologia murowany |
Obiekt dom |
Długość działki 18.55 m |
Kąt nachylenia dachu 35 ° |
Liczba łazieniek 1 |
Szerokość budynku 7.84 m |
Kominek kominek w projekcie |
Długość budynku 10.55 m |
Piwnica bez podpiwniczenia |
Bryła budynku prosta bryła |
Kupując projekt w technologii murowanej powinieneś budować dom murowany. Zupełna zmiana technologii na szkieletową wymaga przeprojektowania całego budynku ( zmieniają się obciążenia, fundamenty, konstrukcja dachu). Wydamy zgodę na takie przeprojektowanie jednak wiążę się to z dużymi kosztami. Istnieją firmy wykonawcze, które podejmują się zmiany technologii budowy bezpłatnie przy skorzystaniu z ich usług wykonawczych. Zdarza się, że pracownia architektoniczna przygotowuje warianty konkretnego projektu przewidując także inne technologie. Prosimy o sprawdzenie czy istnieje poszukiwana wersja projektu, w zakładce - warianty projektu.
Zwężenie/poszerzenie budynku* to nic innego jak zmiana w projekcie. Istnieje możliwość wprowadzenia takich zmian, we własnym zakresie (podczas adaptacji). *zwężenie/poszerzenie budynku nie powinno stanowić problemu w przypadku domów o dachu dwuspadowym jeśli wiąże się to z wydłużeniem/skróceniem kalenicy dachu.
Poznaj praktyczne porady ekspertów, które ułatwią Ci każdy etap budowy i od wyboru wymarzonego domu po jego wykończenie. Zyskaj pewność, że podejmujesz najlepsze decyzje dzięki sprawdzonym wskazówkom od specjalistów z planz.pl
Wycena szacunkowa, w kwotach netto, nie zawiera instalacji.
bezpłatnie (0zł)
przelew zwykły / PayNow
przy odbiorze
4-8 dni roboczych (jeśli projekt nie wymaga aktualizacji)
Wybierz wygodny dla Ciebie czas kontaktu z naszym Doradcą Technicznym.