22 299 20 00 (pn-nd 9.30 do 19.30)

Gotowy projekt domu Kalikst z garażem 1-st. A (ID: 25898)

4940 2025-12-26
Kalikst z garażem 1-st. A - 102.1m²
Dostawa w ciągu 3-10 dni
Gwarantujemy najniższą cenę
4940 zł
W cenie projektu:
📣 GRATIS: WIERTARKA UDAROWA
  • Tablica + dziennik budowy
  • 16 projektów ogrodowych
  • Darmowa wysyłka (kurier, paczkomat, pobranie)
  • 30 dni na zwrot
  • Pozwolenie na zmiany z podpisem i pieczęcią autora
  • GRATIS: Wiertarka Udarowa
22 299 20 00 (pn-nd 9.30 do 19.30)

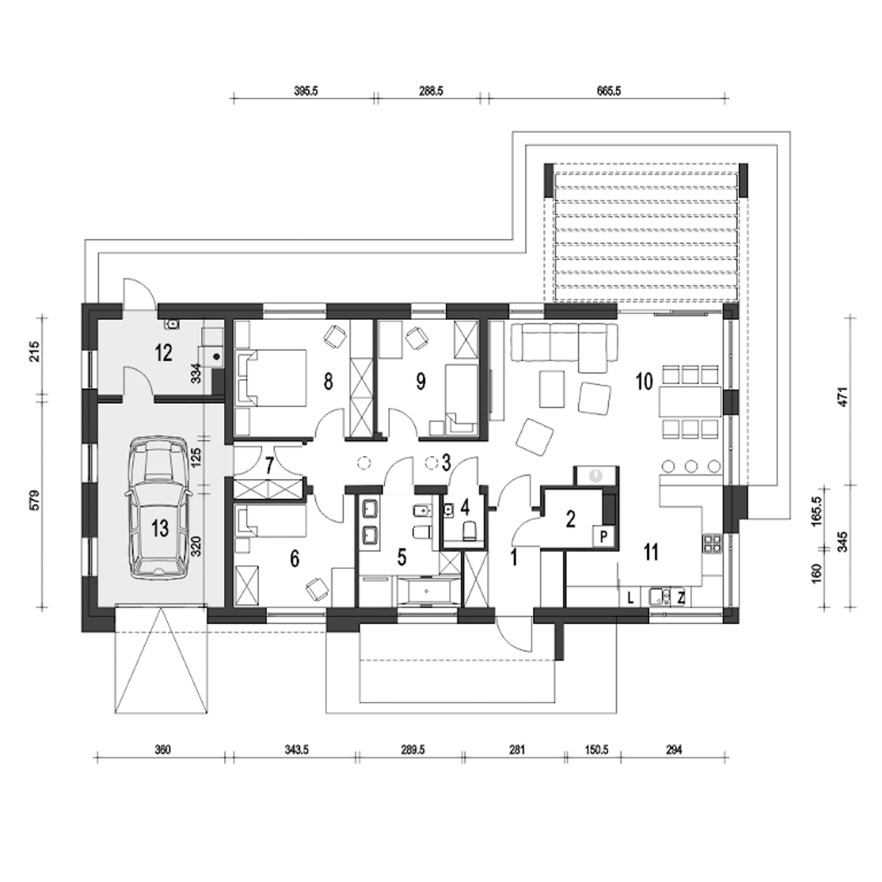
Rzuty gotowego projektu domu Kalikst z garażem 1-st. A

1. Wiatrołap 6,00 m²
2. Pralnia 2,80 m²
3. Korytarz 6,30 m²
4. Wc 1,70 m²
5. łazienka 8,10 m²
6. Sypialnia 10,30 m²
7. Garderoba 3,10 m²
8. Sypialnia 13,00 m²
9. Sypialnia 9,40 m²
10. Salon + jadalnia 31,90 m²
11. Kuchnia + spiżarnia 12,40 m²
12. Kotłownia 7,30 m²
13. Garaż 20,60 m²

Zapoznaj się ze szczegółami projektu - pobierz bezpłatne rysunki do: Kalikst z garażem 1-st. A

Wypełnij formularz i otrzymaj rysunki w pdf z dokładnymi wymiarami budynku i pomieszczeń (długość, szerokość, wysokość) dla projektu Kalikst z garażem 1-st. A

Parametry Techniczne gotowego projektu domu Kalikst z garażem 1-st. A

Pow. użytkowa 102.1 m²
Ilość pokoi 4
Powierzchnia zabudowy 171.5 m²
Kondygnacje parterowy
Garaż 1 stanowisko
Technologia murowany
Szerokość działki 26.9 m
Obiekt dom
Typ domu jednorodzinny całoroczny
Wysokość budynku 6.9 m
Długość działki 18.9 m
Bryła budynku prosta bryła
Styl budynku nowoczesny
Liczba łazieniek 1
Kominek kominek w projekcie
Kąt nachylenia dachu 30 °
Kalenica równoległa do drogi
Szerokość budynku 18.9 m
Kotłownia duża kotłownia
Funkcje dodatkowe z pralnią
Długość budynku 9.4 m
Rodzaj garażu przyklejony
Piwnica bez podpiwniczenia
Powierzchnia dachu 190 m²
Rodzaj dachu dwuspadowy
Koszty budowy tylko z kosztorysem, 250-300 tys.

Wnętrza domu Kalikst z garażem 1-st. A

Nasze prawdziwe opinie z Google

Opis projektu domu Kalikst z garażem 1-st. A

Technologia wykonania:

  • Fundamenty: betonowe.
  • Ściany zewnętrzne: Porotherm.
  • Ściany wewnętrzne: Porotherm.
  • Rodzaj stropu: prefabrykowane wiązary dachowe Mitek.
  • Elewacje: tynk strukturalny/ okładzina drewnopodobna.
  • Pokrycie dachu: dachówka ceramiczna.

Częste pytania

Czy projekty z Planz.pl są kompletne?

Tak. Projekty dostępne na Planz.pl zawierają pełną dokumentację potrzebną do uzyskania pozwolenia na budowę i stanowią gwarancję sprawnej realizacji budowy.

Jesteśmy oficjalnym partnerem ponad 50 pracowni architektonicznych z całej Polski - dlatego każdy projekt pochodzi wyłącznie od autorów zrzeszonych w Izbie Architektów RP. 

Planz.pl to polska firma działającą na rynku od 15 lat. Mamy tysiące zadowolonych klientów, doskonałe opinie i oferujemy wsparcie również po zakupie, doradzamy, pomagamy w adaptacji i pozostajemy w kontakcie na każdym etapie inwestycji.

Dodatkowo do każdego projektu dodajemy tablicę informacyjną, dziennik budowy oraz 16 projektów elektronicznych drewnianej architektury ogrodowej. A dzięki naszej współpracy z producentami sprzętu elektrycznego, oferujemy możliwość otrzymania np. Wiertarki udarowej w formie atrakcyjnego gratisu.

Wybierając Planz.pl, otrzymujesz ten sam oryginalny projekt od autora, wzbogacony o realne dodatki, które ułatwiają rozpoczęcie budowy.

Czy mogę wprowadzić zmiany w projekcie?

Co zrobić gdy wybrany dom nie mieści się na działce?

Jakie zmiany można wprowadzić w projekcie?

Porady ekspertów

Poznaj praktyczne porady ekspertów, które ułatwią Ci każdy etap budowy i od wyboru wymarzonego domu po jego wykończenie. Zyskaj pewność, że podejmujesz najlepsze decyzje dzięki sprawdzonym wskazówkom od specjalistów z planz.pl

Co zawiera projekt

  • ✓ 3 x projekt architektoniczno-budowlany ➞ szczegóły
  • ✓ Projekty techniczne ➞ szczegóły
  • ✓ charakterystyka energetyczna (do projektów domów)
  • ✓ zgoda na zmiany w projekcie ➞ szczegóły
  • ✓ GRATIS: Wiertarka (do projektów w cenie od 3000 zł)
  • ✓ GRATIS: 16 projektów (drewutni, altany i wiaty)
  • ✓ GRATIS: tablica i dziennik budowy
  • ✓ GRATIS: przesyłka kurierska

Dodatki do projektu Kalikst z garażem 1-st. A

Dodatki możesz kupić razem z projektem lub dokupić po czasie

[Planz] Tablica budowlana (0 zł)

[Planz] Dziennik budowy (0 zł)

[Planz] Wiertarka udarowa (0 zł)

[Planz] Zgoda na zmiany w projekcie (0 zł)

[Planz] Projekty architektury ogrodowej (0 zł)

[Planz] Charakterystyka energetyczna, tylko dla domów całorocznych (0 zł)

Wysyłka i płatność za projekt Kalikst z garażem 1-st. A

Koszty wysyłki

bezpłatnie (0zł)

Formy płatności

przelew zwykły / PayNow
przy odbiorze

Czas oczekiwania

3-5 dni roboczych (jeśli projekt nie jest koncepcją)

Wersje gotowego projektu domu Kalikst z garażem 1-st. A

Podobne projekty do domu Kalikst z garażem 1-st. A

Szacunkowy kosztorys dla projektu Kalikst z garażem 1-st. A

Stan surowy zamknięty 197000 zł
Stan surowy zamknięty
Stan deweloperski 267500 zł
Stan deweloperski

Wycena szacunkowa, w kwotach netto, nie zawiera instalacji.

PRACOWNIA: Dom Dla Ciebie Tomasz Pisaniak