Jurek III G1



1. Wiatrołap | 3,26 m² |
2. Hol + schody | 11,00 m² |
3. Kuchnia | 7,81 m² |
4. Spiżarnia | 2,52 m² |
5. Pokój dzienny, jadalnia | 27,69 m² |
6. Gabinet | 9,82 m² |
7. łazienka | 2,83 m² |
8. Kotłownia | 4,83 m² |
9. Garaż | 24,16 m² |
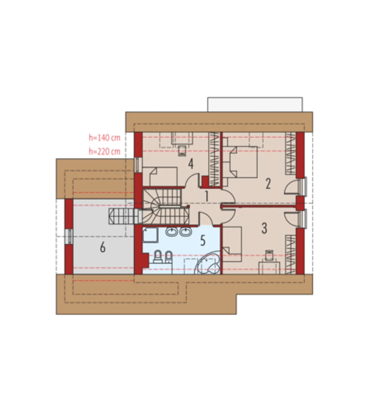
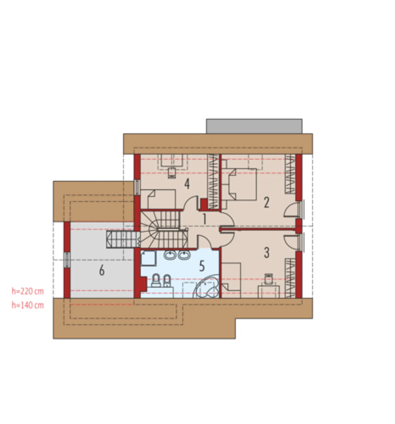
1. Korytarz | 4,21 m² |
2. Sypialnia | 15,49 m² |
3. Sypialnia | 13,86 m² |
4. Sypialnia | 11,34 m² |
5. łazienka | 9,61 m² |
6. Strych | 13,82 m² |
Wypełnij formularz i otrzymaj rysunki w pdf z dokładnymi wymiarami budynku i pomieszczeń (długość, szerokość, wysokość) dla projektu Jurek II G1
Pow. użytkowa 119.44 m² |
Ilość pokoi 4 |
Powierzchnia zabudowy 127.32 m² |
Kondygnacje parterowy+poddasze |
Garaż 1 stanowisko |
Technologia murowany |
Szerokość działki 21.6 m |
Obiekt dom |
Typ domu jednorodzinny całoroczny |
Powierzchnia dachu 206 m² |
Rodzaj dachu dwuspadowy |
Długość działki 18.1 m |
Funkcje dodatkowe ze strychem |
Wysokość budynku 8.92 m |
Przechowywanie w kuchni spiżarnia |
Bryła budynku prosta bryła |
Liczba łazieniek 2 |
Styl budynku tradycyjny |
Kominek kominek w projekcie |
Kąt nachylenia dachu 41 ° |
Szerokość budynku 13.6 m |
Taras z tarasem |
Długość budynku 10.1 m |
Piwnica bez podpiwniczenia |
Strop gęstożebrowy |
Kubatura 472.66 m³ |
Rodzaj garażu w bryle |
Ogrzewanie gaz, paliwo stałe |
Kalenica równoległa do drogi |
Koszty budowy tylko z kosztorysem, 250-300 tys. |
Pow. użytkowa 119.44 m² |
Powierzchnia zabudowy 127.32 m² |
Garaż 1 stanowisko |
Szerokość działki 21.6 m |
Typ domu jednorodzinny całoroczny |
Rodzaj dachu dwuspadowy |
Funkcje dodatkowe ze strychem |
Przechowywanie w kuchni spiżarnia |
Liczba łazieniek 2 |
Kominek kominek w projekcie |
Szerokość budynku 13.6 m |
Długość budynku 10.1 m |
Strop gęstożebrowy |
Rodzaj garażu w bryle |
Kalenica równoległa do drogi |
Ilość pokoi 4 |
Kondygnacje parterowy+poddasze |
Technologia murowany |
Obiekt dom |
Powierzchnia dachu 206 m² |
Długość działki 18.1 m |
Wysokość budynku 8.92 m |
Bryła budynku prosta bryła |
Styl budynku tradycyjny |
Kąt nachylenia dachu 41 ° |
Taras z tarasem |
Piwnica bez podpiwniczenia |
Kubatura 472.66 m³ |
Ogrzewanie gaz, paliwo stałe |
Koszty budowy tylko z kosztorysem, 250-300 tys. |
Kupując projekt w technologii murowanej powinieneś budować dom murowany. Zupełna zmiana technologii na szkieletową wymaga przeprojektowania całego budynku ( zmieniają się obciążenia, fundamenty, konstrukcja dachu). Wydamy zgodę na takie przeprojektowanie jednak wiążę się to z dużymi kosztami. Istnieją firmy wykonawcze, które podejmują się zmiany technologii budowy bezpłatnie przy skorzystaniu z ich usług wykonawczych. Zdarza się, że pracownia architektoniczna przygotowuje warianty konkretnego projektu przewidując także inne technologie. Prosimy o sprawdzenie czy istnieje poszukiwana wersja projektu, w zakładce - warianty projektu.
Zwężenie/poszerzenie budynku* to nic innego jak zmiana w projekcie. Istnieje możliwość wprowadzenia takich zmian, we własnym zakresie (podczas adaptacji). *zwężenie/poszerzenie budynku nie powinno stanowić problemu w przypadku domów o dachu dwuspadowym jeśli wiąże się to z wydłużeniem/skróceniem kalenicy dachu.
Poznaj praktyczne porady ekspertów, które ułatwią Ci każdy etap budowy i od wyboru wymarzonego domu po jego wykończenie. Zyskaj pewność, że podejmujesz najlepsze decyzje dzięki sprawdzonym wskazówkom od specjalistów z planz.pl
Wycena szacunkowa, w kwotach netto, nie zawiera instalacji.
bezpłatnie (0zł)
przelew zwykły / PayNow
przy odbiorze
3-5 dni roboczych (jeśli projekt nie wymaga aktualizacji)
Wybierz wygodny dla Ciebie czas kontaktu z naszym Doradcą Technicznym.