22 299 20 00 (pn-nd 9.30 do 19.30)

Gotowy projekt domu Julia B - bliźniak PL.P (ID: 34913)

7100 2025-12-24
Julia B - bliźniak PL.P - 119.7m²
Dostawa w ciągu 3-10 dni
Gwarantujemy najniższą cenę
7100 zł
(7600 zł brutto)
TANIEJ 500 zł do 24.12.2025
Najniższa cena z 30 dni przed obniżką: 7100 zł
7100 2025-12-24
W cenie projektu:
📣 GRATIS: WIERTARKA UDAROWA
  • Tablica + dziennik budowy
  • 16 projektów ogrodowych
  • Darmowa wysyłka (kurier, paczkomat, pobranie)
  • 30 dni na zwrot
  • Pozwolenie na zmiany z podpisem i pieczęcią autora
  • GRATIS: Wiertarka Udarowa
22 299 20 00 (pn-nd 9.30 do 19.30)


Zawartość projektu

3 egzemplarze projektu archtektoniczno budowlanego + 3 egzemplarze projektu technicznego.

Dokumentacja projektowa zgodnie z nowymi przepisami WT2021 dostarczana jest w formie: 3+3 egzemplarze, czyli w dwóch częściach zawierających:
 
I - projekt architektoniczno-budowlany (opis i rysunki, analiza możliwości wykorzystania alternatywnych systemów zaopatrzenia w energię i ciepło
II - projekt techniczny, obejmujący:opracowanie konstrukcyjne (opis i wyciąg z obliczeń konstrukcji), projekt wewnętrznych instalacji sanitarnych (wodnej, kanalizacyjnej, gazowej, ogrzewanie), projekt wewnętrznych instalacji elektrycznych, projektowaną charakterystykę energetyczną.
 
W części architektonicznej znajdują się:

- Opis architektoniczno - budowlany
- Część rysunkowa (elewacje, rzuty, przekroje, zestawienie stolarki)

Projekt techniczny zawiera:

- Projekt konstrukcji
- Instalacje sanitarne + gazowe/ sanitarne + paliwo stałe
- instalacje elektryczne

Zawartość projektu nie dotyczy budynków gospodarczych, garaży oraz obiektów malej architektury.
Zawartość projektów bez rozrysowanej na rzucie kotłowni/łazienki/kuchni może nie obejmować schematów c.o. i wodno-kanalizacyjnych. W przypadku obiektów małej architektury - również może nie zawierać schematów instalacji elektrycznej.

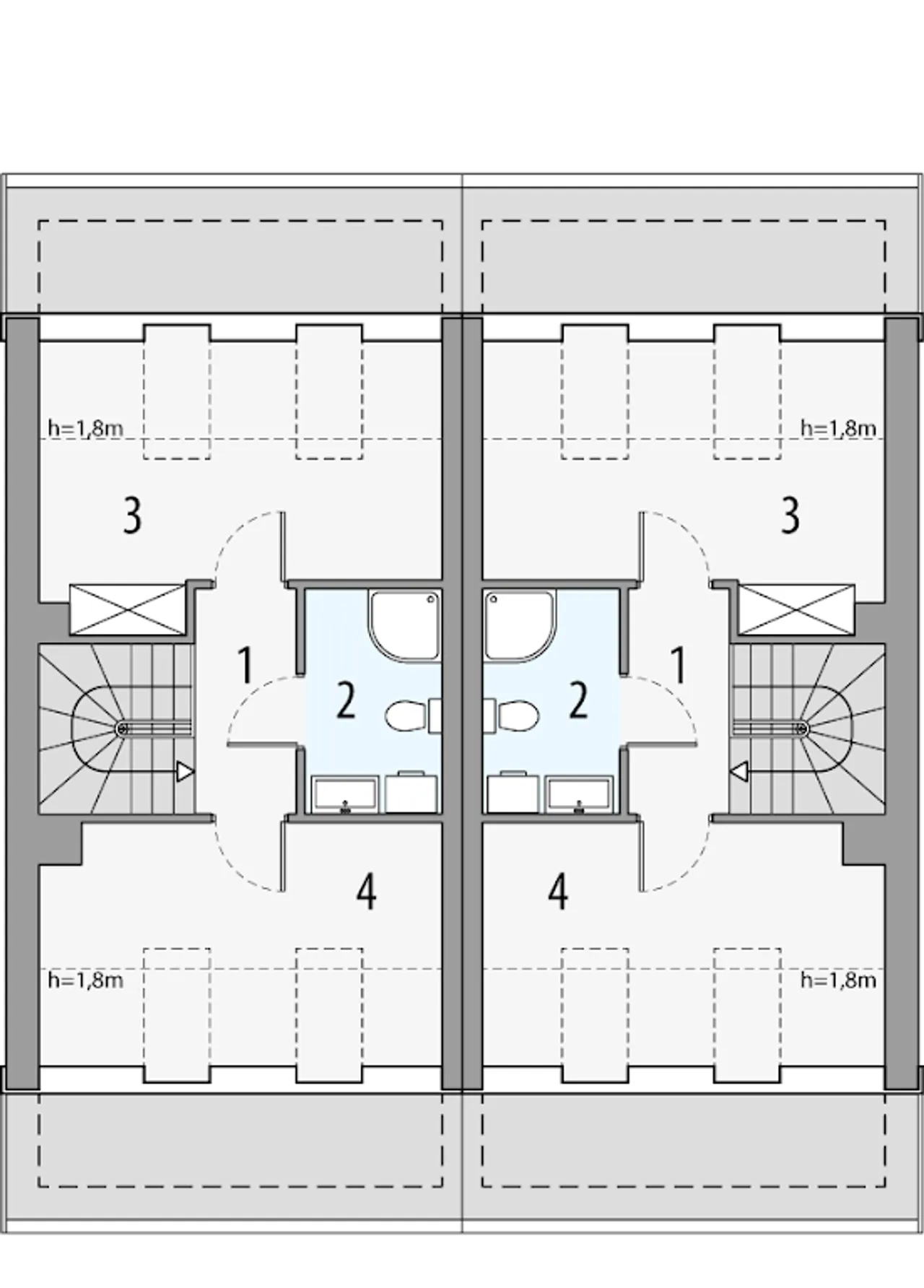
Rzuty gotowego projektu domu Julia B - bliźniak PL.P

1. Wiatrołap 2,40 m²
2. Korytarz 8,40 m²
3. Salon z aneksem 23,10 m²
4. łazienka z kotłownią 5,80 m²
5. Pokój 8,50 m²
1. Korytarz 5,90 m²
2. łazienka 5,20 m²
3. Pokój 10,00 m²
4. Pokój 10,20 m²
5. Pralnia 1,70 m²
6. Sypialnia z garderobą 14,30 m²
1. Korytarz 3,10 m²
2. łazienka 4,30 m²
3. Pokój 8,90 m²
4. Pokój 7,90 m²

Zapoznaj się ze szczegółami projektu - pobierz bezpłatne rysunki do: Julia B - bliźniak PL.P

Wypełnij formularz i otrzymaj rysunki w pdf z dokładnymi wymiarami budynku i pomieszczeń (długość, szerokość, wysokość) dla projektu Julia B - bliźniak PL.P

Parametry Techniczne gotowego projektu domu Julia B - bliźniak PL.P

Pow. użytkowa 119.7 m²
Powierzchnia zabudowy 135 m²
Technologia murowany
Szerokość działki 8.41 m
Obiekt dom
Typ domu bliźniak i dwurodzinny
Rodzaj dachu dwuspadowy
Wysokość budynku 10.85 m
Liczba łazieniek 3
Kąt nachylenia dachu 38 °
Długość działki 21.09 m

Nasze prawdziwe opinie z Google

Opis projektu domu Julia B - bliźniak PL.P

Julia B - bliźniak PL.P - funkcjonalny dom dwurodzinny

Projekt Julia B - bliźniak PL.P to propozycja dla inwestorów, którzy szukają zwartego, ekonomicznego i eleganckiego domu dwurodzinnego z tradycyjnym dachem dwuspadowym. Klasyczna linia połaci pod kątem 38° tworzy spójną, spokojną sylwetkę budynku, dobrze wpisującą się zarówno w miejską zabudowę, jak i podmiejskie osiedla domów jednorodzinnych.

Dom wybudowany na podstawie projektu Julia B - bliźniak PL.P będzie praktycznym wyborem dla rodzin wielopokoleniowych, a także inwestorów planujących wynajem jednej części. W praktyce często wybierany bywa na wąskie lub średniej szerokości działki, gdzie istotne jest optymalne wykorzystanie dostępnego miejsca bez rezygnacji z estetyki i wygodnej przestrzeni dziennej.

Dlaczego warto wybrać projekt domu Julia B - bliźniak PL.P?

  • Dwuspadowy dach 38°: Klasyczna konstrukcja sprzyja sprawnemu odwodnieniu dachu i ułatwia montaż pokrycia, co ogranicza ryzyko problemów eksploatacyjnych w przyszłości.
  • Bliźniak i dom dwurodzinny: Dwie niezależne części budynku pozwalają wygodnie zamieszkać dwóm rodzinom, przy jednoczesnym obniżeniu kosztów budowy i użytkowania w przeliczeniu na jeden lokal.
  • Technologia murowana: Solidne, ciężkie ściany sprzyjają stabilnej temperaturze we wnętrzach, co przekłada się na niższe zużycie energii oraz lepszą akustykę między pomieszczeniami.
  • Elastyczne wykorzystanie: Jedną część można przeznaczyć dla dorosłych dzieci lub seniorów, a drugą na własne potrzeby - bez konieczności adaptacji budynku w przyszłości.
  • Korzyści dla inwestora: Bliźniak w zabudowie dwurodzinnej otwiera możliwość długoterminowego wynajmu jednej połówki, co buduje stabilne, powtarzalne źródło dochodu z nieruchomości.

Jak sprawdzi się ten bliźniak na typowej polskiej działce?

Projekt domu dwurodzinnego z dachem dwuspadowym świetnie reaguje na lokalne warunki klimatyczne. Kąt nachylenia 38° sprzyja zsuwaniu się śniegu zimą oraz sprawnej pracy systemu rynnowego podczas intensywnych opadów. Taka konstrukcja ułatwia także zastosowanie popularnych pokryć dachowych, od dachówki ceramicznej po nowoczesne blachodachówki, co daje swobodę dopasowania budynku do otoczenia.

Bliźniaczy układ budynku dobrze współgra z działkami położonymi w rozwijających się dzielnicach podmiejskich. Dom można lokalizować w sąsiedztwie innych budynków jednorodzinnych i szeregowych, tworząc spójny krajobraz zabudowy. Technologia murowana daje poczucie trwałości i stabilności konstrukcji, co ma znaczenie zwłaszcza na terenach o zróżnicowanych warunkach gruntowych czy zmiennej pogodzie.

Dla kogo jest projekt Julia B - bliźniak PL.P?

Ten projekt domu dwurodzinnego szczególnie dobrze odpowiada potrzebom rodzin, które chcą mieszkać blisko siebie, zachowując jednocześnie oddzielne strefy życia - na przykład rodziców i dorosłych dzieci. Często wybierany bywa również przez inwestorów planujących zakup działki w okolicy dużego miasta, z myślą o budowie dwóch niezależnych lokali pod wynajem długoterminowy.

Dwuspadowy dach i murowana konstrukcja to rozwiązania znane i sprawdzone przez lata, doceniane zarówno przez wykonawców, jak i przyszłych użytkowników. Dzięki temu realizacja przebiega sprawniej, a ekipom budowlanym łatwiej pracować w oparciu o standardowe technologie. Dom wybudowany na podstawie projektu Julia B - bliźniak PL.P będzie solidną bazą dla osób, które stawiają na trwałą zabudowę i rozsądne koszty eksploatacji.

Najważniejsze korzyści w skrócie

  • Ekonomiczna zabudowa: Jeden budynek, dwa niezależne lokale mieszkalne.
  • Tradycyjny dach dwuspadowy: Łatwiejszy montaż pokrycia i sprawne odprowadzanie wody.
  • Technologia murowana: Odporna konstrukcja oraz stabilne warunki wewnątrz domu.
  • Elastyczne użytkowanie: Rozwiązanie dla dwóch pokoleń lub domu z częścią na wynajem.
  • Dobra adaptacja do polskiego klimatu: Odpowiedni kąt połaci dla śniegu, deszczu i wiatru.


Dodatki do projektu Julia B - bliźniak PL.P

Dodatki możesz kupić razem z projektem lub dokupić po czasie

[Hor] Wentylacja mechaniczna z rekuperacją (750 zł)

[Hor] Projekt instalacji pompy ciepła (1000 zł)

[Hor] Płyta fundamentowa (1800 zł)

[Hor] Ogrzewanie podłogowe (800 zł)

[Hor] Egzemplarz archiwalny projektu (300 zł)

[Hor] Strop monolityczny (1900 zł)

[Planz] Tablica budowlana (0 zł)

[Planz] Dziennik budowy (0 zł)

[Planz] Wiertarka udarowa (0 zł)

[Planz] Zgoda na zmiany w projekcie (0 zł)

[Planz] Projekty architektury ogrodowej (0 zł)

[Planz] Charakterystyka energetyczna, tylko dla domów całorocznych (0 zł)

Wysyłka i płatność za projekt Julia B - bliźniak PL.P

Koszty wysyłki

bezpłatnie (0zł)

Formy płatności

przelew zwykły / PayNow
przy odbiorze

Czas oczekiwania

4-8 dni roboczych (jeśli projekt nie wymaga aktualizacji)

 

Komentarze / pytania do projektu domu Julia B - bliźniak PL.P

Adam

Projekt domu Julia B - bliźniak z pewnością przyciąga uwagę. Jego elewacja zachwyca nowoczesnym wyglądem, a duże okna zapewniają mnóstwo naturalnego światła. Dach charakteryzuje się elegancką formą, a rozkład pomieszczeń wydaje się dobrze przemyślany. Taras zaprasza do odpoczynku. Styl i funkcjonalność współgrają ze sobą w idealnej harmonii. Rozważam zakup tego projektu i budowę tego domu.

FAQ

Czy w projekcie Julia B - bliźniak PL.P można zmienić funkcję części pomieszczeń, np. wydzielić osobne mieszkanie dla seniorów lub pod wynajem krótkoterminowy?

Czy w ramach adaptacji mogę zmienić technologię budowy z murowanej na szkieletową lub odwrotnie?

Czy w tym projekcie przewidziane są różne możliwości ogrzewania domu i czy można zastosować np. pompę ciepła zamiast tradycyjnego kotła?

PRACOWNIA: Horyzont - Horyzont