Jukka z garażem 1-st. bliźniak A1-BL



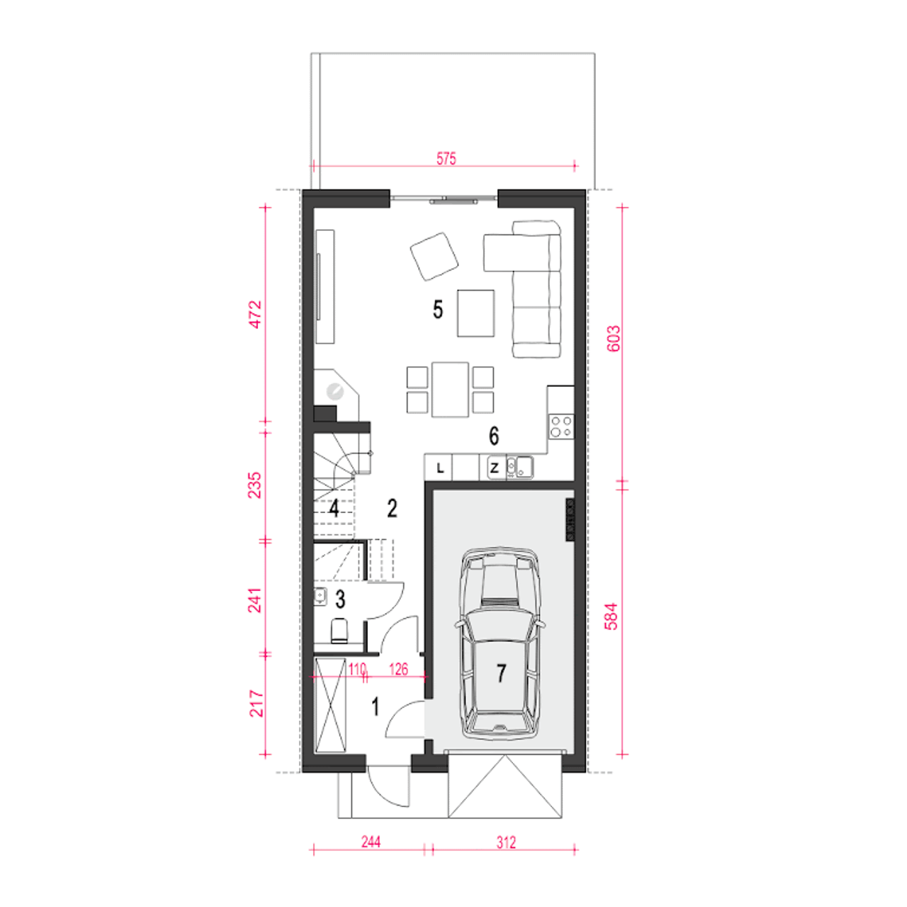
1. Wiatrołap | 5,40 m² |
2. Hol | 6,10 m² |
3. Wc | 2,10 m² |
4. Schody | 4,20 m² |
5. Salon z jadalnią | 24,40 m² |
6. Kuchnia | 6,90 m² |
7. Garaż | 17,80 m² |
1. Przedpokój | 4,90 (4,90) m² |
2. Sypialnia | 12,10 (13,50) m² |
3. Sypialnia | 12,50 (13,90) m² |
4. Pralnia + c.o. | 3,40 (3,40) m² |
5. łazienka | 5,70 (5,70) m² |
6. Sypialnia | 14,80 (17,50) m² |
Wypełnij formularz i otrzymaj rysunki w pdf z dokładnymi wymiarami budynku i pomieszczeń (długość, szerokość, wysokość) dla projektu Jukka z garażem 1-st. A1-SZP
Pow. użytkowa 99 m² |
Ilość pokoi 4 |
Powierzchnia zabudowy 80.1 m² |
Kondygnacje parterowy+poddasze |
Garaż 1 stanowisko |
Technologia murowany |
Szerokość działki 10.5 m |
Obiekt dom |
Typ domu szeregowy |
Funkcje dodatkowe z pralnią |
Kąt nachylenia dachu 35 ° |
Liczba łazieniek 1 |
Szerokość budynku 6.5 m |
Rodzaj dachu dwuspadowy |
Kominek kominek w projekcie |
Długość budynku 13 m |
Piwnica bez podpiwniczenia |
Wysokość budynku 9 m |
Strop gęstożebrowy |
Bryła budynku prosta bryła |
Kalenica równoległa do drogi |
Długość działki 21 m |
Styl budynku tradycyjny |
Pow. użytkowa 99 m² |
Powierzchnia zabudowy 80.1 m² |
Garaż 1 stanowisko |
Szerokość działki 10.5 m |
Typ domu szeregowy |
Kąt nachylenia dachu 35 ° |
Szerokość budynku 6.5 m |
Kominek kominek w projekcie |
Piwnica bez podpiwniczenia |
Strop gęstożebrowy |
Kalenica równoległa do drogi |
Styl budynku tradycyjny |
Ilość pokoi 4 |
Kondygnacje parterowy+poddasze |
Technologia murowany |
Obiekt dom |
Funkcje dodatkowe z pralnią |
Liczba łazieniek 1 |
Rodzaj dachu dwuspadowy |
Długość budynku 13 m |
Wysokość budynku 9 m |
Bryła budynku prosta bryła |
Długość działki 21 m |
Kupując projekt w technologii murowanej powinieneś budować dom murowany. Zupełna zmiana technologii na szkieletową wymaga przeprojektowania całego budynku ( zmieniają się obciążenia, fundamenty, konstrukcja dachu). Wydamy zgodę na takie przeprojektowanie jednak wiążę się to z dużymi kosztami. Istnieją firmy wykonawcze, które podejmują się zmiany technologii budowy bezpłatnie przy skorzystaniu z ich usług wykonawczych. Zdarza się, że pracownia architektoniczna przygotowuje warianty konkretnego projektu przewidując także inne technologie. Prosimy o sprawdzenie czy istnieje poszukiwana wersja projektu, w zakładce - warianty projektu.
Zwężenie/poszerzenie budynku* to nic innego jak zmiana w projekcie. Istnieje możliwość wprowadzenia takich zmian, we własnym zakresie (podczas adaptacji). *zwężenie/poszerzenie budynku nie powinno stanowić problemu w przypadku domów o dachu dwuspadowym jeśli wiąże się to z wydłużeniem/skróceniem kalenicy dachu.
Poznaj praktyczne porady ekspertów, które ułatwią Ci każdy etap budowy i od wyboru wymarzonego domu po jego wykończenie. Zyskaj pewność, że podejmujesz najlepsze decyzje dzięki sprawdzonym wskazówkom od specjalistów z planz.pl
bezpłatnie (0zł)
przelew zwykły / PayNow
przy odbiorze
3-5 dni roboczych (jeśli projekt nie jest koncepcją)
Wybierz wygodny dla Ciebie czas kontaktu z naszym Doradcą Technicznym.