22 299 20 00 (pn-nd 9.30 do 19.30)

Gotowy projekt domu Jagoda Rex (ID: 34558)

4690 2025-11-24
Jagoda Rex - 127.7m²
Projekt dostępny od ręki
Gwarantujemy najniższą cenę
4690 zł
W cenie projektu:
📣 GRATIS: WIERTARKA UDAROWA
  • Tablica + dziennik budowy
  • 16 projektów ogrodowych
  • Darmowa wysyłka (kurier, paczkomat, pobranie)
  • 30 dni na zwrot
  • Pozwolenie na zmiany z podpisem i pieczęcią autora
  • GRATIS: Wiertarka Udarowa
22 299 20 00 (pn-nd 9.30 do 19.30)

Zawartość projektu

3 egzemplarze projektu archtektoniczno budowlanego + 3 egzemplarze projektu technicznego.

Dokumentacja projektowa zgodnie z nowymi przepisami WT2021 dostarczana jest w formie: 3+3 egzemplarze.
Czyli w dwóch częściach zawierających:
I - projekt architektoniczno-budowlany złożony z opisu technicznego oraz rysunków;
II - projekt techniczny, obejmujący: konstrukcję, instalacje (wodno-kanalizacyjną, c.o., elektryczną, gazową – jeśli występują) ze szczegółowym opisem i rysunkami oraz charakterystykę energetyczną.
 
W branży architektonicznej znajdują się:

- opis techniczny (wraz z analizą techniczną, środowiskową i ekonomiczną)
- rzuty wszystkich kondygnacji- pokazuje rozmieszczenie poszczególnych pomieszczeń i ich wymiary, powierzchnie, rozmieszczenie ścian, rozmieszczenie otworów drzwiowych, okiennych, urządzeń kuchennych i sanitarnych
- rzut więźby dachowej - pokazuje układ elementów konstrukcyjnych dachu i ich przekroje, zestawienie elementów więźby dachowej
- rzut dachu - ukazuje jego kształt, wymiary, kąt nachylenia połaci, rozmieszczenie okien połaciowych, lukarn, świetlików i rur spustowych, pokazuje rozmieszczenie kominów i informuje o sposobie odwodnienia: rozmieszczeniu i rozmiarach rynien
- przekroje - pokazują wszystkie elementy budynku po przecięciu go wzdłuż lub w poprzek od dachu do fundamentów tj. warstwy podłogi, stropów i dachu
- elewacje - pokazują dokładny wygląd domu od frontu, z tyłu i z boków

Dodatkowo w projekcie znajduje się:
- aksonometria więźby dachowej - przedstawia widok aksonometryczny więźby i jej elementów (dla dachów skomplikowanych)
- zestawienia stolarki okiennej i drzwiowej - wykazy okien i drzwi zawartych w projekcie i sposób ich otwierania

Projekt techniczny zawiera:

- projekt konstrukcji: zawiera opis techniczny, obliczenia statyczno-wytrzymałościowe, rzuty fundamentów i płyt stropowych w skali 1:50, rysunki detali konstrukcyjnych (zbrojenie schodów, słupów, wieńców, nadproży), zestawienia stali konstrukcyjnej

- projekt instalacji sanitarnych: zawiera opis techniczny oraz rysunki z rozmieszczeniem elementów instalacji: wodno-kanalizacyjnej, centralnego ogrzewania, gazowej - w skali 1:50
- projekt instalacji elektrycznej: zawiera opis techniczny, schemat ideowy oraz rysunki z rozmieszczeniem elementów instalacji: wodno-kanalizacyjnej, centralnego ogrzewania, gazowej - w skali 1:50 oraz opis zastosowanych rozwiązań
- projekt instalacji wentylacji mechanicznej (o ile występuje): zawiera opis techniczny oraz rysunki z rozmieszczeniem elementów instalacji

 
Zawartość projektu nie dotyczy budynków gospodarczych, garaży oraz obiektów malej architektury.
Zawartość projektów bez rozrysowanej na rzucie kotłowni/łazienki/kuchni może nie obejmować schematów c.o. i wodno-kanalizacyjnych. W przypadku obiektów małej architektury - również może nie zawierać schematów instalacji elektrycznej.

Rzuty gotowego projektu domu Jagoda Rex

1. Pokój dzienny 26,60 m²
2. Kuchnia 13,08 m²
3. Spiżarka 4,49 (5,90) m²
4. Hol 3,14 m²
5. Sień 4,19 m²
6. Kotłownia 4,60 m²
7. łazienka 3,46 m²
8. Gabinet 11,90 m²
9. Klatka schodowa 2,90 m²
10. Garaż 19,20 m²
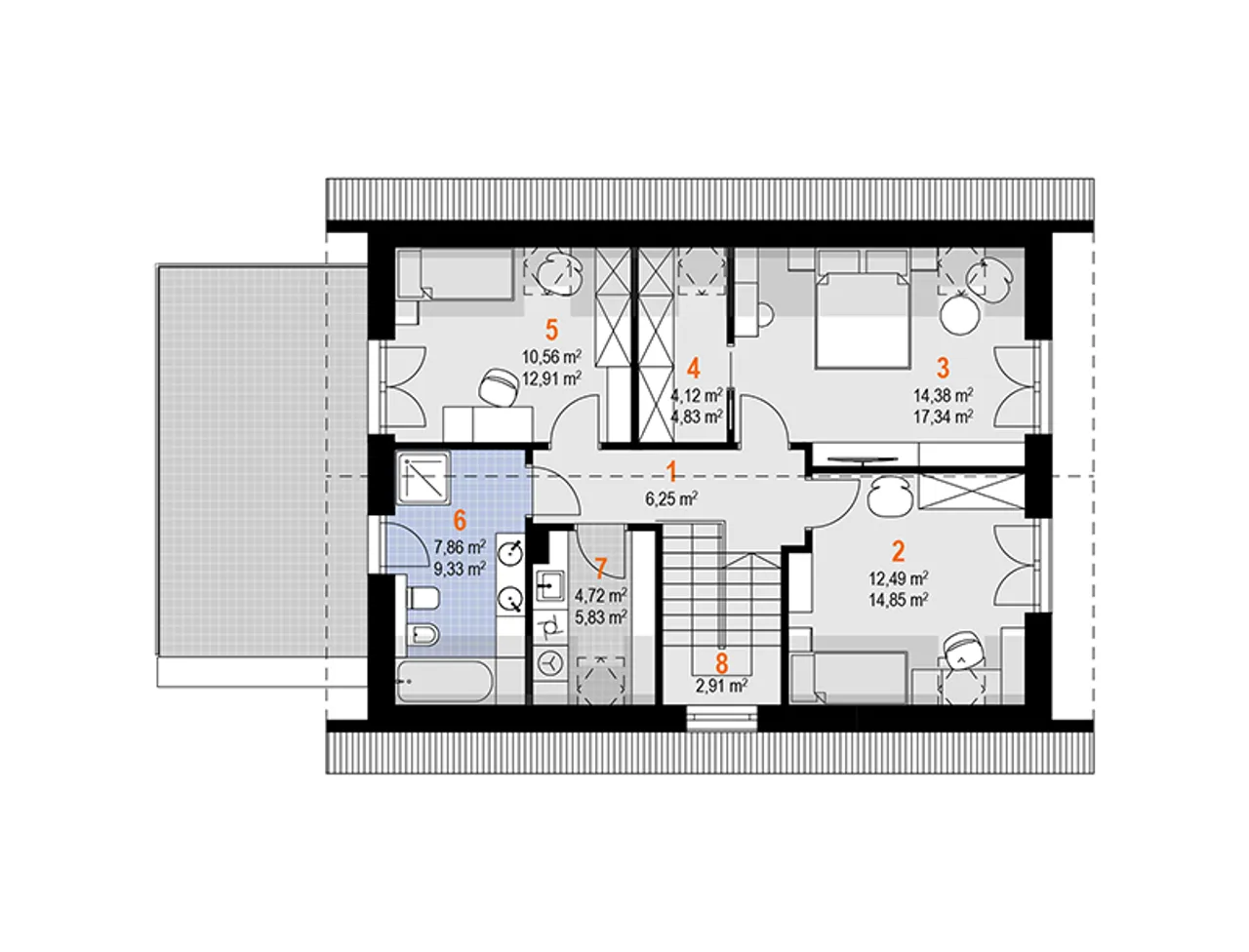
1. Przedpokój 6,25 (6,30) m²
2. Pokój 12,49 (14,90) m²
3. Sypialnia 14,38 (17,30) m²
4. Garderoba 4,12 (4,80) m²
5. Pokój 10,56 (12,90) m²
6. łazienka 7,86 (9,30) m²
7. Pralnia 4,72 (5,80) m²
8. Klatka schodowa 2,90 (2,90) m²

Zapoznaj się ze szczegółami projektu - pobierz bezpłatne rysunki do: Jagoda Rex

Wypełnij formularz i otrzymaj rysunki w pdf z dokładnymi wymiarami budynku i pomieszczeń (długość, szerokość, wysokość) dla projektu Jagoda Rex

Parametry Techniczne gotowego projektu domu Jagoda Rex

Pow. użytkowa 127.7 m²
Powierzchnia zabudowy 123.4 m²
Kondygnacje parterowy+poddasze
Garaż 1 stanowisko
Technologia murowany
Szerokość działki 23 m
Obiekt dom
Typ domu jednorodzinny całoroczny
Długość działki 16.6 m
Wysokość budynku 8.35 m
Styl budynku nowoczesny
Szerokość budynku 15 m
Kominek kominek opcjonalnie
Kąt nachylenia dachu 39 °
Długość budynku 8.6 m
Rodzaj dachu dwuspadowy
Piwnica bez podpiwniczenia
Kubatura 729.1 m³
Powierzchnia dachu 159.86 m²
Kalenica równoległa do drogi

Nasze prawdziwe opinie z Google

Opis projektu domu Jagoda Rex

Technologia wykonania:

  • Wersja technologiczna: murowana - ceramika.
  • Izolacja termiczna ścian zewnętrznych: Termo Organika TERMONIUM FASADA / alternatywnie termPIR ETX.
  • Strop: nad parterem: żelbetowy, nad poddaszem: drewniany.
  • Typ schodów: płytowe żelbetowe.
  • Konstrukcja dachu: drewniana krokwiowo-jętkowa.
  • Pokrycie dachowe:OKRYCIE DACHOWE dachówka ceramiczna.
  • Typ ogrzewania: Kocioł na gaz.
  • Dostępna wersja z paliwem gazowym: Tak.
  • Dostępna wersja z pompą ciepła: Tak.
  • Dostępna wersja z fotowoltaiką: Tak.
  • Ściany zewnętrzne: 25 cm ceramika.
  • Ściany wewnętrzne: 25 cm ceramika.
  • Ściany wewnętrzne działowe: 11 cm ceramika.
  • Wentylacja: mechaniczna Thessla Green.

Częste pytania

Czy projekty z Planz.pl są kompletne?

Tak. Projekty dostępne na Planz.pl zawierają pełną dokumentację potrzebną do uzyskania pozwolenia na budowę i stanowią gwarancję sprawnej realizacji budowy.

Jesteśmy oficjalnym partnerem ponad 50 pracowni architektonicznych z całej Polski - dlatego każdy projekt pochodzi wyłącznie od autorów zrzeszonych w Izbie Architektów RP. 

Planz.pl to polska firma działającą na rynku od 15 lat. Mamy tysiące zadowolonych klientów, doskonałe opinie i oferujemy wsparcie również po zakupie, doradzamy, pomagamy w adaptacji i pozostajemy w kontakcie na każdym etapie inwestycji.

Dodatkowo do każdego projektu dodajemy tablicę informacyjną, dziennik budowy oraz 16 projektów elektronicznych drewnianej architektury ogrodowej. A dzięki naszej współpracy z producentami sprzętu elektrycznego, oferujemy możliwość otrzymania np. Wiertarki udarowej w formie atrakcyjnego gratisu.

Wybierając Planz.pl, otrzymujesz ten sam oryginalny projekt od autora, wzbogacony o realne dodatki, które ułatwiają rozpoczęcie budowy.

Czy mogę wprowadzić zmiany w projekcie?

Co zrobić gdy wybrany dom nie mieści się na działce?

Jakie zmiany można wprowadzić w projekcie?

Porady ekspertów

Poznaj praktyczne porady ekspertów, które ułatwią Ci każdy etap budowy i od wyboru wymarzonego domu po jego wykończenie. Zyskaj pewność, że podejmujesz najlepsze decyzje dzięki sprawdzonym wskazówkom od specjalistów z planz.pl

Co zawiera projekt

  • ✓ 3 x projekt architektoniczno-budowlany ➞ szczegóły
  • ✓ Projekty techniczne ➞ szczegóły
  • ✓ charakterystyka energetyczna (do projektów domów)
  • ✓ zgoda na zmiany w projekcie ➞ szczegóły
  • ✓ GRATIS: Wiertarka (do projektów w cenie od 3000 zł)
  • ✓ GRATIS: 16 projektów (drewutni, altany i wiaty)
  • ✓ GRATIS: tablica i dziennik budowy
  • ✓ GRATIS: przesyłka kurierska

Dodatki do projektu Jagoda Rex

Dodatki możesz kupić razem z projektem lub dokupić po czasie

[Archeton] Dodatkowy egzemplarz projektu budowlany i techniczny, roboczy (350 zł)

[Archeton] Kosztorys wersja elektroniczna (450 zł)

[Archeton] Kosztorys wersja drukowana (260 zł)

[Archeton] Dodatkowy egzemplarz projektu budowlany i techniczny, opieczętowany, oryginał (550 zł)

[Archeton] Pompa ciepła + ogrzewanie podłogowe z charakterystyką (500 zł)

[Archeton] Paliwo stałe + charakterysytka (500 zł)

[Archeton] Architektura w pdf (0 zł)

[Planz] Tablica budowlana (0 zł)

[Planz] Dziennik budowy (0 zł)

[Planz] Wiertarka udarowa (0 zł)

[Planz] Zgoda na zmiany w projekcie (0 zł)

[Planz] Projekty architektury ogrodowej (0 zł)

[Planz] Charakterystyka energetyczna, tylko dla domów całorocznych (0 zł)

Wysyłka i płatność za projekt Jagoda Rex

Koszty wysyłki

bezpłatnie (0zł)

Formy płatności

przelew zwykły / PayNow
przy odbiorze

Czas oczekiwania

2-5 dni roboczych (jeśli projekt nie wymaga aktualizacji)

 

Komentarze / pytania do projektu domu Jagoda Rex

Anna

Projekt domu Jagoda Rex to prawdziwa perełka w świecie współczesnej architektury. Jego zewnętrzny wygląd urzeka eleganckim stylem, a wnętrza zachwycają funkcjonalnością i nowoczesnymi rozwiązaniami. Duże okna zapewniają obfitość naturalnego światła, a dach wyróżnia się ciekawą linią. Główne wejście jest zaprojektowane z wielką klasą, a detale architektoniczne przyciągają wzrok. Urok tego projektu jest absolutnie niepowtarzalny, a proporcje budynku zostały starannie wyważone, co czyni bryłę domu harmonijną i spójną. Taki dom z pewnością zrobi wrażenie na gościach, a jego wyjątkowa przestrzeń daje ogromne możliwości aranżacyjne. Zdecydowanie rozważam zakup tego projektu oraz budowę domu na jego podstawie.

Ryszard Czapla LinkedIn
PRACOWNIA: Archeton