Figa Neo



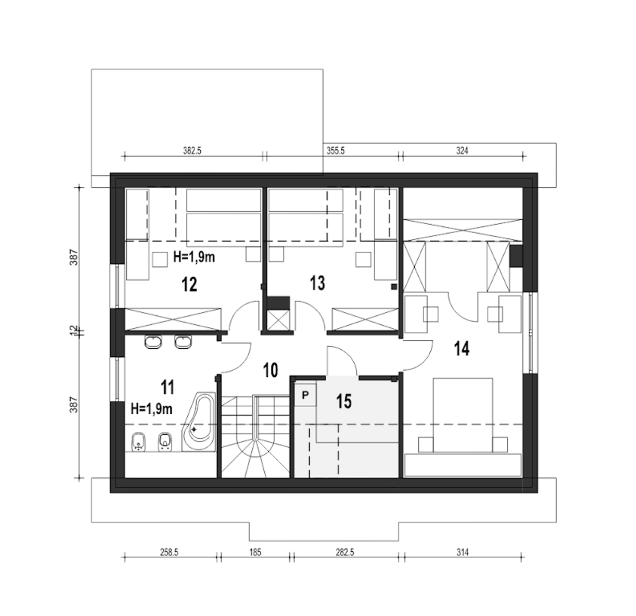
1. Przedpokój | 6,20 (6,20) m² |
2. łazienka | 6,70 (9,90) m² |
3. Sypialnia | 9,90 (14,70) m² |
4. Sypialnia | 9,00 (13,70) m² |
5. Sypialnia z garderobą | 17,00 (25,00) m² |
6. Pralnia* | 3,90 (7,40) m² |
1. Wiatrołap | 4,70 m² |
2. Hol | 2,00 m² |
3. Schody | 2,90 m² |
4. Spiżarnia | 0,90 m² |
5. Salon z kuchnią | 31,00 m² |
6. Pokój | 9,70 m² |
7. łazienka | 2,70 m² |
8. Kotłownia* | 6,50 m² |
9. Garaż* | 18,00 m² |
Wypełnij formularz i otrzymaj rysunki w pdf z dokładnymi wymiarami budynku i pomieszczeń (długość, szerokość, wysokość) dla projektu Inka IV z garażem 1-st. A
Ilość pokoi 5 |
Pow. użytkowa 102.7 m² |
Powierzchnia zabudowy 103.6 m² |
Kondygnacje parterowy+poddasze |
Garaż 1 stanowisko |
Technologia murowany |
Szerokość działki 19.8 m |
Obiekt dom |
Typ domu jednorodzinny całoroczny |
Funkcje dodatkowe z pralnią |
Powierzchnia dachu 185 m² |
Rodzaj dachu dwuspadowy |
Wysokość budynku 8.1 m |
Przechowywanie w kuchni spiżarnia |
Długość działki 17.1 m |
Bryła budynku prosta bryła |
Styl budynku tradycyjny |
Liczba łazieniek 2 |
Kominek kominek w projekcie |
Kąt nachylenia dachu 40 ° |
Strop gęstożebrowy |
Szerokość budynku 11.8 m |
Kotłownia duża kotłownia |
Kalenica równoległa do drogi |
Długość budynku 8.8 m |
Rodzaj garażu w bryle |
Piwnica bez podpiwniczenia |
Koszty budowy 300-350 tys., tylko z kosztorysem |
Ilość pokoi 5 |
Powierzchnia zabudowy 103.6 m² |
Garaż 1 stanowisko |
Szerokość działki 19.8 m |
Typ domu jednorodzinny całoroczny |
Powierzchnia dachu 185 m² |
Wysokość budynku 8.1 m |
Długość działki 17.1 m |
Styl budynku tradycyjny |
Kominek kominek w projekcie |
Strop gęstożebrowy |
Kotłownia duża kotłownia |
Długość budynku 8.8 m |
Piwnica bez podpiwniczenia |
Pow. użytkowa 102.7 m² |
Kondygnacje parterowy+poddasze |
Technologia murowany |
Obiekt dom |
Funkcje dodatkowe z pralnią |
Rodzaj dachu dwuspadowy |
Przechowywanie w kuchni spiżarnia |
Bryła budynku prosta bryła |
Liczba łazieniek 2 |
Kąt nachylenia dachu 40 ° |
Szerokość budynku 11.8 m |
Kalenica równoległa do drogi |
Rodzaj garażu w bryle |
Koszty budowy 300-350 tys., tylko z kosztorysem |
Kupując projekt w technologii murowanej powinieneś budować dom murowany. Zupełna zmiana technologii na szkieletową wymaga przeprojektowania całego budynku ( zmieniają się obciążenia, fundamenty, konstrukcja dachu). Wydamy zgodę na takie przeprojektowanie jednak wiążę się to z dużymi kosztami. Istnieją firmy wykonawcze, które podejmują się zmiany technologii budowy bezpłatnie przy skorzystaniu z ich usług wykonawczych. Zdarza się, że pracownia architektoniczna przygotowuje warianty konkretnego projektu przewidując także inne technologie. Prosimy o sprawdzenie czy istnieje poszukiwana wersja projektu, w zakładce - warianty projektu.
Zwężenie/poszerzenie budynku* to nic innego jak zmiana w projekcie. Istnieje możliwość wprowadzenia takich zmian, we własnym zakresie (podczas adaptacji). *zwężenie/poszerzenie budynku nie powinno stanowić problemu w przypadku domów o dachu dwuspadowym jeśli wiąże się to z wydłużeniem/skróceniem kalenicy dachu.
Poznaj praktyczne porady ekspertów, które ułatwią Ci każdy etap budowy i od wyboru wymarzonego domu po jego wykończenie. Zyskaj pewność, że podejmujesz najlepsze decyzje dzięki sprawdzonym wskazówkom od specjalistów z planz.pl
Wycena szacunkowa, w kwotach netto, nie zawiera instalacji.
bezpłatnie (0zł)
przelew zwykły / PayNow
przy odbiorze
3-5 dni roboczych (jeśli projekt nie jest koncepcją)
Wybierz wygodny dla Ciebie czas kontaktu z naszym Doradcą Technicznym.