Szeherezada



1. Wiatrołap | 5,30 m² |
2. Kuchnia | 11,80 m² |
3. Hol | 4,00 m² |
4. Pokój dzienny | 42,20 m² |
5. W.c. | 3,20 m² |
6. Pom. gospodarcze | 8,10 m² |
7. Pom. gosp. / kotłownia | 6,00 m² |
8. Garaż | 20,10 m² |
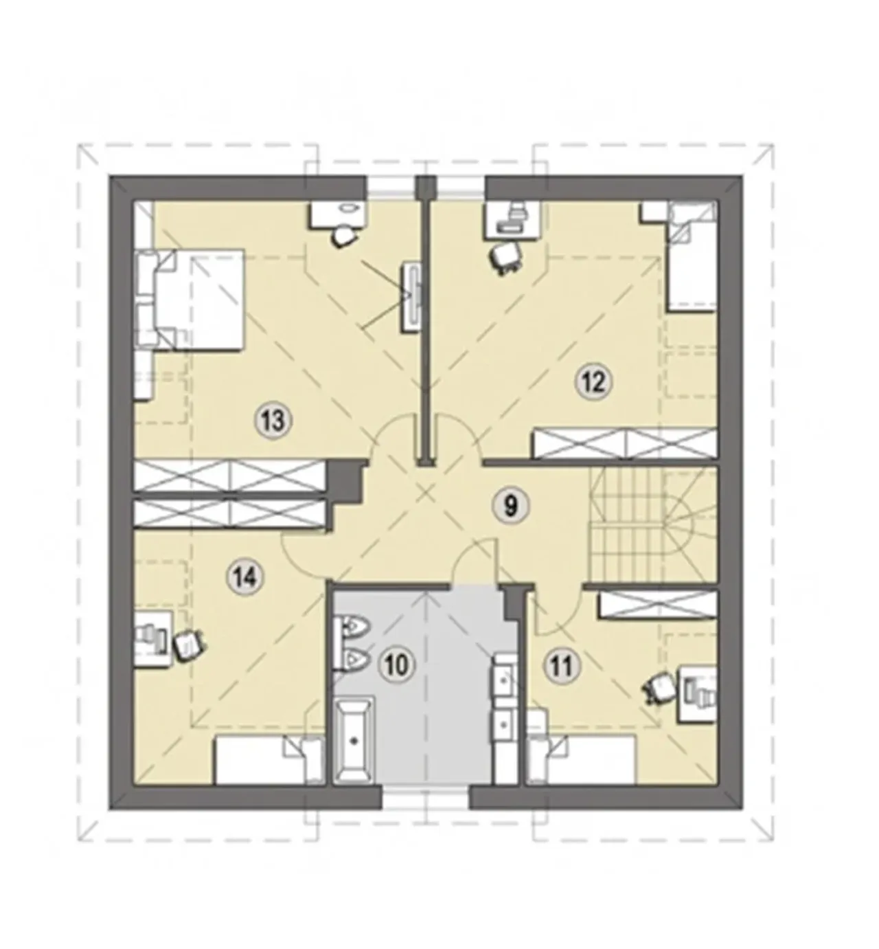
1. Hol | 9,40 (9,40) m² |
2. łazienka | 11,80 (11,80) m² |
3. Pokój | 6,90 (12,20) m² |
4. Pokój | 16,70 (24,60) m² |
5. Pokój | 18,20 (26,70) m² |
6. Pokój | 11,10 (17,90) m² |
Wypełnij formularz i otrzymaj rysunki w pdf z dokładnymi wymiarami budynku i pomieszczeń (długość, szerokość, wysokość) dla projektu Ibiza
Pow. użytkowa 140.84 m² |
Powierzchnia zabudowy 128.59 m² |
Kondygnacje parterowy+poddasze |
Garaż 1 stanowisko |
Technologia murowany |
Szerokość działki 19.34 m |
Obiekt dom |
Typ domu jednorodzinny całoroczny |
Kubatura 440 m³ |
Bryła budynku prosta bryła |
Wysokość budynku 8.96 m |
Długość działki 19.34 m |
Styl budynku nowoczesny |
Kalenica bez znaczenia |
Kąt nachylenia dachu 35 ° |
Szerokość budynku 11.34 m |
Rodzaj garażu w bryle |
Długość budynku 11.34 m |
Rodzaj dachu wielospadowy |
Piwnica bez podpiwniczenia |
Koszty budowy 350-400 tys., tylko z kosztorysem |
Pow. użytkowa 140.84 m² |
Kondygnacje parterowy+poddasze |
Technologia murowany |
Obiekt dom |
Kubatura 440 m³ |
Wysokość budynku 8.96 m |
Styl budynku nowoczesny |
Kąt nachylenia dachu 35 ° |
Rodzaj garażu w bryle |
Rodzaj dachu wielospadowy |
Koszty budowy 350-400 tys., tylko z kosztorysem |
Powierzchnia zabudowy 128.59 m² |
Garaż 1 stanowisko |
Szerokość działki 19.34 m |
Typ domu jednorodzinny całoroczny |
Bryła budynku prosta bryła |
Długość działki 19.34 m |
Kalenica bez znaczenia |
Szerokość budynku 11.34 m |
Długość budynku 11.34 m |
Piwnica bez podpiwniczenia |
Kupując projekt w technologii murowanej powinieneś budować dom murowany. Zupełna zmiana technologii na szkieletową wymaga przeprojektowania całego budynku ( zmieniają się obciążenia, fundamenty, konstrukcja dachu). Wydamy zgodę na takie przeprojektowanie jednak wiążę się to z dużymi kosztami. Istnieją firmy wykonawcze, które podejmują się zmiany technologii budowy bezpłatnie przy skorzystaniu z ich usług wykonawczych. Zdarza się, że pracownia architektoniczna przygotowuje warianty konkretnego projektu przewidując także inne technologie. Prosimy o sprawdzenie czy istnieje poszukiwana wersja projektu, w zakładce - warianty projektu.
Zwężenie/poszerzenie budynku* to nic innego jak zmiana w projekcie. Istnieje możliwość wprowadzenia takich zmian, we własnym zakresie (podczas adaptacji). *zwężenie/poszerzenie budynku nie powinno stanowić problemu w przypadku domów o dachu dwuspadowym jeśli wiąże się to z wydłużeniem/skróceniem kalenicy dachu.
Poznaj praktyczne porady ekspertów, które ułatwią Ci każdy etap budowy i od wyboru wymarzonego domu po jego wykończenie. Zyskaj pewność, że podejmujesz najlepsze decyzje dzięki sprawdzonym wskazówkom od specjalistów z planz.pl
Wycena szacunkowa, w kwotach netto, nie zawiera instalacji.
bezpłatnie (0zł)
przelew zwykły / PayNow
przy odbiorze
3-5 dni roboczych (jeśli projekt nie wymaga aktualizacji)
Wybierz wygodny dla Ciebie czas kontaktu z naszym Doradcą Technicznym.