22 299 20 00 (pn-nd 9.30 do 19.30)

Projekt wycofany z oferty.


Sprawdź Inne Projekty Lub zadzwoń 22 299 20 00 jeśli chcesz jednak kupić ten projekt, sprawdzimy czy to możliwe.

Gotowy projekt domu HomeKoncept 79

ID: 25421
  • Promocja GRATISOWA do 10.11.2025 ➞ sprawdź zasady
  • GRATIS: Wiertarka
  • GRATIS: 16 projektów (drewutni, altany i wiaty)
  • GRATIS: tablica i dziennik budowy
  • GRATIS: przesyłka kurierska
  • Czas na zwrot:30 dni
Udostępnij projekt:

Rzuty gotowego projektu domu HomeKoncept 79

1. Wiatrołap 4,52 m²
2. Komunikacja 15,20 (17,02) m²
3. Pralnia + kotłownia 5,00 m²
4. Garderoba 5,38 m²
5. Gabinet 8,97 m²
6. łazienka 4,42 m²
7. Spiżarnia 3,07 m²
8. Kuchnia 14,11 m²
9. Jadalnia 14,11 m²
10. Salon 20,74 m²
11. Garaż 38,33 m²
12. Taras 121,71 m²
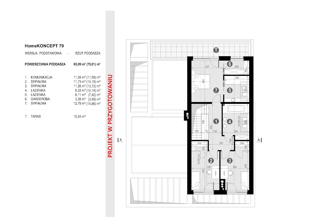
1. Komunikacja 11,59 (11,59) m²
2. Sypialnia 11,73 (14,19) m²
3. Sypialnia 11,26 (13,72) m²
4. łazienka 8,33 (10,14) m²
5. łazienka 6,11 (7,42) m²
6. Garderoba 3,28 (3,99) m²
7. Sypialnia 12,79 (14,86) m²
8. Taras 15,24 m²

Parametry Techniczne gotowego projektu domu HomeKoncept 79

Pow. użytkowa 162.18 m²
Powierzchnia zabudowy 174.64 m²
Garaż 2 stanowiska
Technologia murowany
Szerokość działki 20.42 m
Obiekt dom
Typ domu jednorodzinny całoroczny
Powierzchnia dachu 123 m²
Długość działki 22.72 m
Styl budynku nowoczesny
Wysokość budynku 7.96 m
Liczba łazieniek 3
Szerokość budynku 13.7 m
Rodzaj dachu dwuspadowy
Kominek kominek w projekcie
Kąt nachylenia dachu 37 °
Długość budynku 17.85 m
Piwnica bez podpiwniczenia
Kubatura 982 m³
Kalenica prostopadła do drogi

Nasze prawdziwe opinie z Google

Opis projektu domu HomeKoncept 79

Technologia wykonania:

  • Fundamenty: tradycyjne – na ławach fundamentowych.
  • Ściany: dwuwarstwowe – pustak ceramiczny 25 cm + styropian 20 cm/wełna mineralna 18 cm.
  • Strop: żelbetowy wylewany.
  • Schody: żelbetowe dwubiegowe.
  • Dach: tradycyjna więźba dachowa pokryta dachówką ceramiczną lub cementową.
  • Elewacja: tynk silikonowy połączony z deskami elewacyjnymi Thermory Jesion profil C6 firmy Komplex Market.
  • Ogrzewanie: gazowe – piec kondensacyjny, ogrzewanie podłogowe w strefie dziennej, komunikacji, łazienkach, wiatrołapie.
  • Wentylacja: mechaniczna z rekuperacją.

Częste pytania

Czy projekty z Planz.pl są kompletne?

Tak. Projekty dostępne na Planz.pl zawierają pełną dokumentację potrzebną do uzyskania pozwolenia na budowę i stanowią gwarancję sprawnej realizacji budowy.

Jesteśmy oficjalnym partnerem ponad 50 pracowni architektonicznych z całej Polski - dlatego każdy projekt pochodzi wyłącznie od autorów zrzeszonych w Izbie Architektów RP. 

Planz.pl to polska firma działającą na rynku od 12 lat. Mamy tysiące zadowolonych klientów, doskonałe opinie i oferujemy wsparcie również po zakupie, doradzamy, pomagamy w adaptacji i pozostajemy w kontakcie na każdym etapie inwestycji.

Dodatkowo do każdego projektu dodajemy tablicę informacyjną, dziennik budowy oraz 16 projektów elektronicznych drewnianej architektury ogrodowej. A dzięki naszej współpracy z markami Blaupunkt i PRIME3 oferujemy możliwość otrzymania sprzętu elektrycznego w formie atrakcyjnego gratisu.

Wybierając Planz.pl, otrzymujesz ten sam oryginalny projekt od autora, wzbogacony o realne dodatki, które ułatwiają rozpoczęcie budowy.

Czy mogę wprowadzić zmiany w projekcie?

Co zrobić gdy wybrany dom nie mieści się na działce?

Jakie zmiany można wprowadzić w projekcie?

Porady ekspertów

Poznaj praktyczne porady ekspertów, które ułatwią Ci każdy etap budowy i od wyboru wymarzonego domu po jego wykończenie. Zyskaj pewność, że podejmujesz najlepsze decyzje dzięki sprawdzonym wskazówkom od specjalistów z planz.pl

Co zawiera projekt

  • ✓ 3 x projekt architektoniczno-budowlany ➞ szczegóły
  • ✓ Projekty techniczne ➞ szczegóły
  • ✓ charakterystyka energetyczna (do projektów domów)
  • ✓ zgoda na zmiany w projekcie ➞ szczegóły
  • ✓ GRATIS: Wiertarka (do projektów w cenie od 3000 zł)
  • ✓ GRATIS: 16 projektów (drewutni, altany i wiaty)
  • ✓ GRATIS: tablica i dziennik budowy
  • ✓ GRATIS: przesyłka kurierska

Dodatki do projektu HomeKoncept 79

Dodatki możesz kupić razem z projektem lub dokupić po czasie

[Planz] Tablica budowlana (0 zł)

[Planz] Dziennik budowy (0 zł)

[Planz] Wiertarka udarowa (0 zł)

[Planz] Zgoda na zmiany w projekcie (0 zł)

[Planz] Projekty architektury ogrodowej (0 zł)

[Planz] Charakterystyka energetyczna, tylko dla domów całorocznych (0 zł)

Wysyłka i płatność za projekt HomeKoncept 79

Koszty wysyłki

bezpłatnie (0zł)

Formy płatności

przelew zwykły / PayNow
przy odbiorze

Czas oczekiwania

3-5 dni roboczych (jeśli projekt nie jest koncepcją)

Projekt w kategoriach

PRACOWNIA: HomeKoncept