- Promocja GRATISOWA do 10.11.2025 ➞ sprawdź zasady
- ✓ GRATIS: Wiertarka
- ✓ GRATIS: 16 projektów (drewutni, altany i wiaty)
- ✓ GRATIS: tablica i dziennik budowy
- ✓ GRATIS: przesyłka kurierska
- ✓ Czas na zwrot:30 dni
- Potrzebujesz ADAPTACJI lub architekta do ZMIAN w projekcie? ➞ sprawdź jak pomożemy bez dodatkowej opłaty
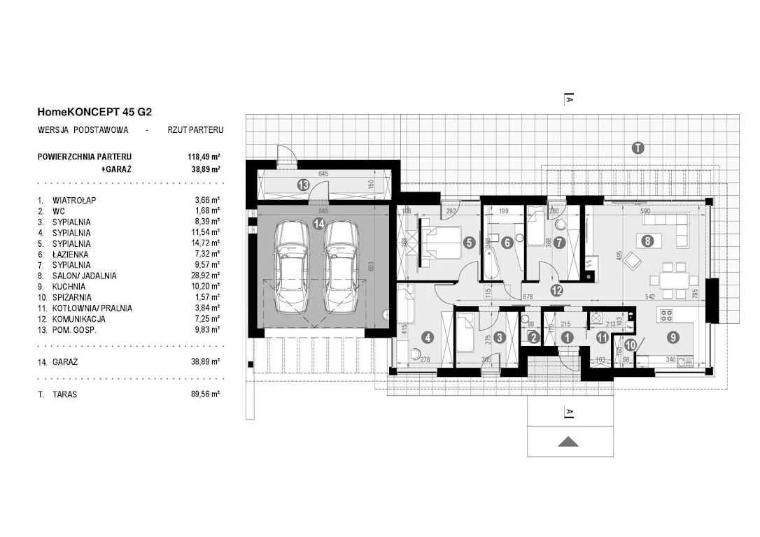
Rzuty gotowego projektu domu HomeKoncept 45 G2
| 1. Wiatrołap | 3,66 m² |
| 2. Wc | 1,68 m² |
| 3. Sypialnia 1-os. | 8,39 m² |
| 4. Sypialnia 1-os. | 11,54 m² |
| 5. Sypialnia 2-os. | 14,72 m² |
| 6. łazienka | 7,32 m² |
| 7. Sypialnia 1-os. | 9,57 m² |
| 8. Salon / jadalnia | 28,92 m² |
| 9. Kuchnia | 10,20 m² |
| 10. Spiżarnia | 1,57 m² |
| 11. Kotłownia / pralnia | 3,84 m² |
| 12. Komunikacja | 7,25 m² |
| 13. Pom. gospodarcze | 9,83 m² |
| 14. Garaż | 38,89 m² |
| 15. Taras | 89,56 m² |
Parametry Techniczne gotowego projektu domu HomeKoncept 45 G2
| Pow. użytkowa 118.49 m² |
| Powierzchnia zabudowy 200.74 m² |
| Garaż 2 stanowiska |
| Technologia murowany |
| Szerokość działki 29.8 m |
| Obiekt dom |
| Typ domu jednorodzinny całoroczny |
| Szerokość budynku 23.1 m |
| Kominek kominek w projekcie |
| Długość budynku 12.68 m |
| Piwnica bez podpiwniczenia |
| Kąt nachylenia dachu 35 ° |
| Kubatura 1053 m³ |
| Rodzaj dachu dwuspadowy |
| Powierzchnia dachu 211 m² |
| Długość działki 18.6 m |
| Ogrzewanie gaz, paliwo stałe |
| Wysokość budynku 7.36 m |
| Kalenica równoległa do drogi |
| Ep 61.98 |
| Styl budynku nowoczesny |
| Liczba łazieniek 1 |
| Pow. użytkowa 118.49 m² |
| Garaż 2 stanowiska |
| Szerokość działki 29.8 m |
| Typ domu jednorodzinny całoroczny |
| Kominek kominek w projekcie |
| Piwnica bez podpiwniczenia |
| Kubatura 1053 m³ |
| Powierzchnia dachu 211 m² |
| Ogrzewanie gaz, paliwo stałe |
| Kalenica równoległa do drogi |
| Styl budynku nowoczesny |
| Powierzchnia zabudowy 200.74 m² |
| Technologia murowany |
| Obiekt dom |
| Szerokość budynku 23.1 m |
| Długość budynku 12.68 m |
| Kąt nachylenia dachu 35 ° |
| Rodzaj dachu dwuspadowy |
| Długość działki 18.6 m |
| Wysokość budynku 7.36 m |
| Ep 61.98 |
| Liczba łazieniek 1 |
Energia i ogrzewanie gotowego projektu domu HomeKoncept 45 G2
Nasze prawdziwe opinie z Google
Opis projektu domu HomeKoncept 45 G2
Technologia wykonania:
- Fundamenty: tradycyjne - na ławach fundamentowych.
- Ściany: dwuwarstwowe - pustak ceramiczny 25 cm + styropian 20 cm.
- Strop: żelbetowy wylewany.
- Dach: tradycyjna więźba dachowa pokryta dachówką ceramiczną lub cementową.
- Elewacja: tynk silikonowy + deski elewacyjne.
- Ogrzewanie: gazowe - piec kondensacyjny.
- Wentylacja: mechaniczna z rekuperacją.
Częste pytania
Czy projekty z Planz.pl są kompletne?
Tak. Projekty dostępne na Planz.pl zawierają pełną dokumentację potrzebną do uzyskania pozwolenia na budowę i stanowią gwarancję sprawnej realizacji budowy.
Jesteśmy oficjalnym partnerem ponad 50 pracowni architektonicznych z całej Polski - dlatego każdy projekt pochodzi wyłącznie od autorów zrzeszonych w Izbie Architektów RP.
Planz.pl to polska firma działającą na rynku od 12 lat. Mamy tysiące zadowolonych klientów, doskonałe opinie i oferujemy wsparcie również po zakupie, doradzamy, pomagamy w adaptacji i pozostajemy w kontakcie na każdym etapie inwestycji.
Dodatkowo do każdego projektu dodajemy tablicę informacyjną, dziennik budowy oraz 16 projektów elektronicznych drewnianej architektury ogrodowej. A dzięki naszej współpracy z markami Blaupunkt i PRIME3 oferujemy możliwość otrzymania sprzętu elektrycznego w formie atrakcyjnego gratisu.
Wybierając Planz.pl, otrzymujesz ten sam oryginalny projekt od autora, wzbogacony o realne dodatki, które ułatwiają rozpoczęcie budowy.
Czy mogę wprowadzić zmiany w projekcie?
Co zrobić gdy wybrany dom nie mieści się na działce?
Zwężenie/poszerzenie budynku* to nic innego jak zmiana w projekcie. Istnieje możliwość wprowadzenia takich zmian, we własnym zakresie (podczas adaptacji). *zwężenie/poszerzenie budynku nie powinno stanowić problemu w przypadku domów o dachu dwuspadowym jeśli wiąże się to z wydłużeniem/skróceniem kalenicy dachu.
Jakie zmiany można wprowadzić w projekcie?
- Rozmieszczenie ścian działowych.
- Zmiany funkcji pomieszczeń.
- Modyfikacje wielkości, ilości i kształtu otworów okiennych i drzwiowych.
- Użycie innych materiałów na elementy konstrukcyjne budynku (ściany, stropy) przy zachowaniu wymagań konstrukcji, parametrów cieplnych budynku i elewacji.
- Wprowadzenie częściowego lub całkowitego podpiwniczenia budynku.
- Zmiana kąta nachylenia, kształtu i konstrukcji dachu.
- Zmiana sposobu ogrzewania i prowadzenia instalacji CO, zmiany instalacji wodno-kanalizacyjnej, gazowej, oraz elektrycznej (zachowując obowiązujące normy, zgodnie z prawem budowlanym).
- Zmiana materiałów wykończeniowych: posadzek, tynków, dachówki, izolacji cieplnej i przeciwwilgociowej (przy zachowaniu niezbędnych parametrów wytrzymałości oraz parametrów przenikania ciepła).
- Zmiany wynikające z dostosowania budynku do warunków gruntowych.
- Zmiany wymiarów fundamentów.
- Zmiany wymiarów przekrojów lub rozstawu elementów więźby dachowej wynikające z dostosowania budynku do strefy śniegowej lub wiatrowej.
- Zmiany szerokości schodów, liczby stopni i wymiarów schodów wewnętrznych oraz zewnętrznych.
- Zmiany pokrycia dachowego (uwzględniając istniejące spadki i ciężar).
- Zmiany kształtu, wielkości, usytuowania elementów takich jak tarasy, wiaty, murki.
- Zmiany wysokości ścianki kolankowej.
- Zmiany usytuowania i ilości kominów.
- Dobudowanie lub usunięcie garażu lub wiaty garażowej.
- Dobudowanie lub usunięcie lukarn.
- Dobudowanie lub usunięcie balkonów.
- Dobudowanie lub usunięcie wykuszy.
- Zabudowanie podcienia.
Poznaj praktyczne porady ekspertów, które ułatwią Ci każdy etap budowy i od wyboru wymarzonego domu po jego wykończenie. Zyskaj pewność, że podejmujesz najlepsze decyzje dzięki sprawdzonym wskazówkom od specjalistów z planz.pl
Co zawiera projekt
- ✓ 3 x projekt architektoniczno-budowlany ➞ szczegóły
- ✓ Projekty techniczne ➞ szczegóły
- ✓ charakterystyka energetyczna (do projektów domów)
- ✓ zgoda na zmiany w projekcie ➞ szczegóły
- ✓ GRATIS: Wiertarka (do projektów w cenie od 3000 zł)
- ✓ GRATIS: 16 projektów (drewutni, altany i wiaty)
- ✓ GRATIS: tablica i dziennik budowy
- ✓ GRATIS: przesyłka kurierska
Dodatki do projektu HomeKoncept 45 G2
Dodatki możesz kupić razem z projektem lub dokupić po czasie
[Planz] Tablica budowlana (0 zł)
[Planz] Dziennik budowy (0 zł)
[Planz] Wiertarka udarowa (0 zł)
[Planz] Zgoda na zmiany w projekcie (0 zł)
[Planz] Projekty architektury ogrodowej (0 zł)
[Planz] Charakterystyka energetyczna, tylko dla domów całorocznych (0 zł)
Wysyłka i płatność za projekt HomeKoncept 45 G2
Koszty wysyłki
bezpłatnie (0zł)
Formy płatności
przelew zwykły / PayNow
przy odbiorze
Czas oczekiwania
3-5 dni roboczych (jeśli projekt nie jest koncepcją)
Projekt w kategoriach
Zamów rozmowę
Wybierz wygodny dla Ciebie czas kontaktu z naszym Doradcą Technicznym.
2 stanowiska
murowany 
[Planz] Dziennik budowy (0 zł)
[Planz] Zgoda na zmiany w projekcie (0 zł)
[Planz] Charakterystyka energetyczna, tylko dla domów całorocznych (0 zł)