22 299 20 00 (pn-nd 9.30 do 19.30)

Gotowy projekt domu Helena Prima (1356) (ID: 18315)

4290 2026-01-18
Helena Prima (1356) - 112.2m²
Dostawa w ciągu 3-10 dni
Gwarantujemy najniższą cenę
4290 zł
(4690 zł brutto)
TANIEJ 400 zł do 12.01.2026
Najniższa cena z 30 dni przed obniżką: 4290 zł
4290 2026-01-18
W cenie projektu:
📣 GRATIS: WIERTARKA UDAROWA
  • Tablica + dziennik budowy
  • 16 projektów ogrodowych
  • Darmowa wysyłka (kurier, paczkomat, pobranie)
  • 30 dni na zwrot
  • Pozwolenie na zmiany z podpisem i pieczęcią autora
  • GRATIS: Wiertarka Udarowa
22 299 20 00 (pn-nd 9.30 do 19.30)

Zawartość projektu

3 egzemplarze projektu archtektoniczno budowlanego + 3 egzemplarze projektu technicznego.

Dokumentacja projektowa zgodnie z nowymi przepisami WT2021 dostarczana jest w formie: 3+3 egzemplarze.
Czyli w dwóch częściach zawierających:
I - projekt architektoniczno-budowlany złożony z opisu technicznego oraz rysunków;
II - projekt techniczny, obejmujący: konstrukcję, instalacje (wodno-kanalizacyjną, c.o., elektryczną, gazową – jeśli występują) ze szczegółowym opisem i rysunkami oraz charakterystykę energetyczną.
 
W branży architektonicznej znajdują się:

- opis techniczny (wraz z analizą techniczną, środowiskową i ekonomiczną)
- rzuty wszystkich kondygnacji- pokazuje rozmieszczenie poszczególnych pomieszczeń i ich wymiary, powierzchnie, rozmieszczenie ścian, rozmieszczenie otworów drzwiowych, okiennych, urządzeń kuchennych i sanitarnych
- rzut więźby dachowej - pokazuje układ elementów konstrukcyjnych dachu i ich przekroje, zestawienie elementów więźby dachowej
- rzut dachu - ukazuje jego kształt, wymiary, kąt nachylenia połaci, rozmieszczenie okien połaciowych, lukarn, świetlików i rur spustowych, pokazuje rozmieszczenie kominów i informuje o sposobie odwodnienia: rozmieszczeniu i rozmiarach rynien
- przekroje - pokazują wszystkie elementy budynku po przecięciu go wzdłuż lub w poprzek od dachu do fundamentów tj. warstwy podłogi, stropów i dachu
- elewacje - pokazują dokładny wygląd domu od frontu, z tyłu i z boków

Dodatkowo w projekcie znajduje się:
- aksonometria więźby dachowej - przedstawia widok aksonometryczny więźby i jej elementów (dla dachów skomplikowanych)
- zestawienia stolarki okiennej i drzwiowej - wykazy okien i drzwi zawartych w projekcie i sposób ich otwierania

Projekt techniczny zawiera:

- projekt konstrukcji: zawiera opis techniczny, obliczenia statyczno-wytrzymałościowe, rzuty fundamentów i płyt stropowych w skali 1:50, rysunki detali konstrukcyjnych (zbrojenie schodów, słupów, wieńców, nadproży), zestawienia stali konstrukcyjnej

- projekt instalacji sanitarnych: zawiera opis techniczny oraz rysunki z rozmieszczeniem elementów instalacji: wodno-kanalizacyjnej, centralnego ogrzewania, gazowej - w skali 1:50
- projekt instalacji elektrycznej: zawiera opis techniczny, schemat ideowy oraz rysunki z rozmieszczeniem elementów instalacji: wodno-kanalizacyjnej, centralnego ogrzewania, gazowej - w skali 1:50 oraz opis zastosowanych rozwiązań
- projekt instalacji wentylacji mechanicznej (o ile występuje): zawiera opis techniczny oraz rysunki z rozmieszczeniem elementów instalacji

 
Zawartość projektu nie dotyczy budynków gospodarczych, garaży oraz obiektów malej architektury.
Zawartość projektów bez rozrysowanej na rzucie kotłowni/łazienki/kuchni może nie obejmować schematów c.o. i wodno-kanalizacyjnych. W przypadku obiektów małej architektury - również może nie zawierać schematów instalacji elektrycznej.

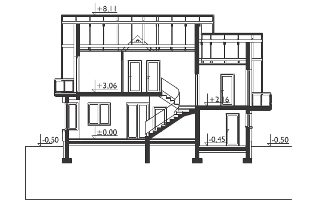
Rzuty gotowego projektu domu Helena Prima (1356)

1. Sień 3,30 m²
2. Garderoba 3,80 m²
3. Hol 3,00 m²
4. Kuchnia 6,90 m²
5. Pokój dzienny 25,90 m²
6. Pokój 7,70 m²
7. łazienka 3,20 m²
8. Klatka schodowa 3,00 m²
9. Schowek 2,90 m²
10. Korytarz 1,60 m²
11. Kotłownia 3,90 m²
12. Garaż 17,50 m²
1. Klatka schodowa 3,00 m²
2. Przedpokój 4,60 m²
3. Pokój 10,20 (12,70) m²
4. Pokój 11,00 (13,70) m²
5. Pokój 11,00 (13,50) m²
6. Pokój 12,50 (16,00) m²
7. łazienka 2,60 (5,80) m²
8. łazienka 5,70 (8,50) m²

Zapoznaj się ze szczegółami projektu - zamów bezpłatne rysunki do: Helena Prima (1356)

Wypełnij formularz i otrzymaj na podany adres e-mail rysunki w pdf z dokładnymi wymiarami budynku i pomieszczeń (długość, szerokość, wysokość) dla projektu Helena Prima (1356)

Parametry Techniczne gotowego projektu domu Helena Prima (1356)

Pow. użytkowa 112.2 m²
Ilość pokoi 6
Powierzchnia zabudowy 102.8 m²
Kondygnacje parterowy+poddasze
Garaż 1 stanowisko
Technologia murowany
Szerokość działki 20.4 m
Obiekt dom
Typ domu jednorodzinny całoroczny
Rodzaj garażu przyklejony
Powierzchnia dachu 193.2 m²
Rodzaj dachu wielospadowy
Długość działki 18.9 m
Wysokość budynku 8.6 m
Bryła budynku prosta bryła
Styl budynku nowoczesny
Kalenica równoległa do drogi
Szerokość budynku 12.4 m
Kominek kominek w projekcie
Kąt nachylenia dachu 42 °
Funkcje dodatkowe z lukarnami
Długość budynku 8.9 m
Piwnica bez podpiwniczenia
Kubatura 760 m³
Koszty budowy 300-350 tys., tylko z kosztorysem

Nasze prawdziwe opinie z Google

Opis projektu domu Helena Prima (1356)

Przedstawiony projekt domu o nazwie Helena Prima 1123-MB to bardzo ciekawa, funkcjonalna i ergonomiczna propozycja sprzyjająca energooszczędności i oszczędnościom. Helena Prima 1123-MB po wybudowaniu będzie domem wygodnym w użytkowaniu i zamieszkaniu. W projekcie znajdzie się miejsce garażowe dla jednego auta. Projekt spełnia aktualne normy i warunki techniczne na bieżący rok. W prezentowanym projekcie dach będzie miał 42 stopni nachylenia. Będzie to dom parterowy z użytkowym poddaszem, bez podpiwniczenia.Autor proponuje wykonanie budynku jako murowany.

Technologia wykonania:

  • murowana – beton komórkowy
  • ŚCIANY ZEWNĘTRZNE: Bloczki SOLBET Optimal gr. 24 cm + docieplenie płyty FASROCK lub FRONTROCK MAX E gr. 15 cm
  • ŚCIANY WEWNĘTRZNE: Bloczki SOLBET Optimal gr. 24 cm i 12 cm
  • STROP: system DENNERT
  • KONSTRUKCJA DACHU: drewniana, jętkowa
  • RODZAJ SCHODÓW: żelbetowe
  • Pokrycie dachu: dachówka betonowa lub ceramiczna BRAAS
  • Elewacja: tynki mineralne, silikonowe, akrylowe lub mozaikowe, częściowo kamień naturalny

Częste pytania

Czy projekty z Planz.pl są kompletne?

Tak. Projekty dostępne na Planz.pl zawierają pełną dokumentację potrzebną do uzyskania pozwolenia na budowę i stanowią gwarancję sprawnej realizacji budowy.

Jesteśmy oficjalnym partnerem ponad 50 pracowni architektonicznych z całej Polski - dlatego każdy projekt pochodzi wyłącznie od autorów zrzeszonych w Izbie Architektów RP. 

Planz.pl to polska firma działającą na rynku od 15 lat. Mamy tysiące zadowolonych klientów, doskonałe opinie i oferujemy wsparcie również po zakupie, doradzamy, pomagamy w adaptacji i pozostajemy w kontakcie na każdym etapie inwestycji.

Dodatkowo do każdego projektu dodajemy tablicę informacyjną, dziennik budowy oraz 16 projektów elektronicznych drewnianej architektury ogrodowej. A dzięki naszej współpracy z producentami sprzętu elektrycznego, oferujemy możliwość otrzymania np. Wiertarki udarowej w formie atrakcyjnego gratisu.

Wybierając Planz.pl, otrzymujesz ten sam oryginalny projekt od autora, wzbogacony o realne dodatki, które ułatwiają rozpoczęcie budowy.

Czy mogę wprowadzić zmiany w projekcie?

Co zrobić gdy wybrany dom nie mieści się na działce?

Jakie zmiany można wprowadzić w projekcie?

Porady ekspertów

Poznaj praktyczne porady ekspertów, które ułatwią Ci każdy etap budowy i od wyboru wymarzonego domu po jego wykończenie. Zyskaj pewność, że podejmujesz najlepsze decyzje dzięki sprawdzonym wskazówkom od specjalistów z planz.pl

Co zawiera projekt

  • ✓ 3 x projekt architektoniczno-budowlany ➞ szczegóły
  • ✓ Projekty techniczne ➞ szczegóły
  • ✓ charakterystyka energetyczna (do projektów domów)
  • ✓ zgoda na zmiany w projekcie ➞ szczegóły
  • ✓ GRATIS: Wiertarka (do projektów w cenie od 3000 zł)
  • ✓ GRATIS: 16 projektów (drewutni, altany i wiaty)
  • ✓ GRATIS: tablica i dziennik budowy
  • ✓ GRATIS: przesyłka kurierska

Dodatki do projektu Helena Prima (1356)

Dodatki możesz kupić razem z projektem lub dokupić po czasie

[Archeton] Dodatkowy egzemplarz projektu budowlany i techniczny, roboczy (350 zł)

[Archeton] Kosztorys wersja elektroniczna (450 zł)

[Archeton] Kosztorys wersja drukowana (260 zł)

[Archeton] Dodatkowy egzemplarz projektu budowlany i techniczny, opieczętowany, oryginał (550 zł)

[Archeton] Pompa ciepła + ogrzewanie podłogowe z charakterystyką (500 zł)

[Archeton] Paliwo stałe + charakterysytka (500 zł)

[Archeton] Architektura w pdf (0 zł)

[Planz] Tablica budowlana (0 zł)

[Planz] Dziennik budowy (0 zł)

[Planz] Wiertarka udarowa (0 zł)

[Planz] Zgoda na zmiany w projekcie (0 zł)

[Planz] Projekty architektury ogrodowej (0 zł)

[Planz] Charakterystyka energetyczna, tylko dla domów całorocznych (0 zł)

Wysyłka i płatność za projekt Helena Prima (1356)

Koszty wysyłki

bezpłatnie (0zł)

Formy płatności

przelew zwykły / PayNow
przy odbiorze

Czas oczekiwania

2-5 dni roboczych (jeśli projekt nie wymaga aktualizacji)

 

Podobne projekty do domu Helena Prima (1356)

Szacunkowy kosztorys dla projektu Helena Prima (1356)

Stan surowy zamknięty 203000 zł
Stan surowy zamknięty
Stan deweloperski 314000 zł
Stan deweloperski

Wycena szacunkowa, w kwotach netto, nie zawiera instalacji.

Ryszard Czapla LinkedIn
PRACOWNIA: Archeton Ryszard Czapla