22 299 20 00 (pn-nd 9.30 do 19.30)

Gotowy projekt budynku G99 (ID: 31542)

749 2025-12-23
G99 - 26.66m²
Projekt dostępny od ręki
Gwarantujemy najniższą cenę
749 zł
W cenie projektu:
  • Tablica + dziennik budowy
  • 16 projektów ogrodowych
  • Darmowa wysyłka (kurier, paczkomat, pobranie)
  • 30 dni na zwrot
  • Pozwolenie na zmiany z podpisem i pieczęcią autora
22 299 20 00 (pn-nd 9.30 do 19.30)

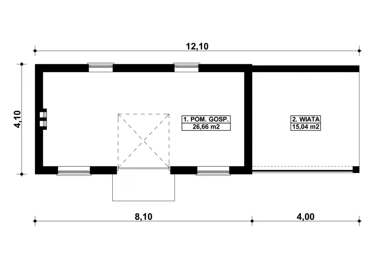
Rzuty gotowego projektu budynku G99

1. Pom. gosp. 26,66 m²
2. Wiata 15,04 m²

Zapoznaj się ze szczegółami projektu - pobierz bezpłatne rysunki do: G99

Wypełnij formularz i otrzymaj rysunki w pdf z dokładnymi wymiarami budynku i pomieszczeń (długość, szerokość, wysokość) dla projektu G99

Parametry Techniczne gotowego projektu domu G99

Pow. użytkowa 26.66 m²
Powierzchnia zabudowy 49.21 m²
Kondygnacje parterowy
Garaż 1 stanowisko
Technologia murowany
Obiekt inny
Obiekt inny (szczegóły) garaże
Kąt nachylenia dachu 25 °
Szerokość budynku 4.1 m
Kalenica prostopadła do drogi
Długość budynku 12.1 m
Przestrzeń z pom. gospodarczym, z wiatą/altaną
Kubatura 166.5 m³
Wysokość budynku 3.61 m
Rodzaj dachu dwuspadowy

Nasze prawdziwe opinie z Google

Dodatki do projektu G99

Dodatki możesz kupić razem z projektem lub dokupić po czasie

[Planz] Tablica budowlana (0 zł)

[Planz] Dziennik budowy (0 zł)

[Planz] Wiertarka udarowa (0 zł)

[Planz] Zgoda na zmiany w projekcie (0 zł)

[Planz] Projekty architektury ogrodowej (0 zł)

[Planz] Charakterystyka energetyczna, tylko dla domów całorocznych (0 zł)

Wysyłka i płatność za projekt G99

Koszty wysyłki

bezpłatnie (0zł)

Formy płatności

przelew zwykły / PayNow
przy odbiorze

Czas oczekiwania

3-5 dni roboczych (jeśli projekt nie wymaga aktualizacji)

Podobne projekty do budynku G99

PRACOWNIA: Kup Projekt