Gotowy projekt budynku G95 (ID: 31546)
G95
2290
2025-12-23
Możliwy dłuzszy czas realizacji
Gwarantujemy najniższą cenę
G95 - 62.63m²
Możliwy dłuzszy czas realizacji
Gwarantujemy najniższą cenę
2290 zł
W cenie projektu:
- Tablica + dziennik budowy
- 16 projektów ogrodowych
- Darmowa wysyłka (kurier, paczkomat, pobranie)
- 30 dni na zwrot
- Pozwolenie na zmiany z podpisem i pieczęcią autora
22 299 20 00 (pn-nd 9.30 do 19.30)
Zapoznaj się ze szczegółami projektu - pobierz bezpłatne rysunki do: G95
Wypełnij formularz i otrzymaj rysunki w pdf z dokładnymi wymiarami budynku i pomieszczeń (długość, szerokość, wysokość) dla projektu G95
Parametry Techniczne gotowego projektu domu G95
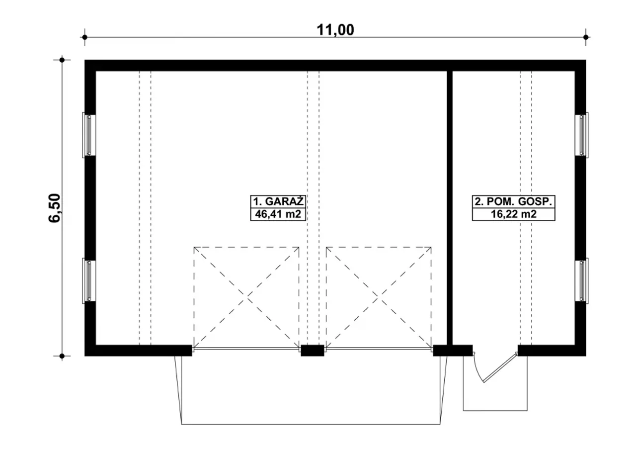
| Pow. użytkowa 62.63 m² |
| Powierzchnia zabudowy 71.53 m² |
| Kondygnacje parterowy |
| Garaż 2 stanowiska |
| Technologia murowany |
| Obiekt inny |
| Wysokość budynku 5.44 m |
| Przestrzeń z pom. gospodarczym |
| Rodzaj dachu naczółkowy |
| Kąt nachylenia dachu drugiego 45 |
| Kąt nachylenia dachu 35 ° |
| Obiekt inny (szczegóły) garaże |
| Szerokość budynku 11 m |
| Długość budynku 6.5 m |
| Kubatura 306.9 m³ |
| Kalenica równoległa do drogi |
| Pow. użytkowa 62.63 m² |
| Kondygnacje parterowy |
| Technologia murowany |
| Wysokość budynku 5.44 m |
| Rodzaj dachu naczółkowy |
| Kąt nachylenia dachu 35 ° |
| Szerokość budynku 11 m |
| Kubatura 306.9 m³ |
| Powierzchnia zabudowy 71.53 m² |
| Garaż 2 stanowiska |
| Obiekt inny |
| Przestrzeń z pom. gospodarczym |
| Kąt nachylenia dachu drugiego 45 |
| Obiekt inny (szczegóły) garaże |
| Długość budynku 6.5 m |
| Kalenica równoległa do drogi |
Nasze prawdziwe opinie z Google
Dodatki do projektu G95
Dodatki możesz kupić razem z projektem lub dokupić po czasie
[Planz] Tablica budowlana (0 zł)
Decydując się na zakup projektu domu w planz.pl, każdy nasz klient otrzyma wyjątkowy bonus, elastyczną i odporną na warunki atmosferyczne tablicę budowlaną o wymiarach 90x70 cm. Ta praktyczna tablica jest niezbędnym elementem na każdym placu budowy. Dzięki swojej elastyczności i odporności, tablica ta stanie się trwałym i widocznym punktem orientacyjnym dla ekipy budowlanej oraz inspektorów. Wybierz planz.pl i ciesz się nie tylko profesjonalnym projektem, ale i dodatkami, które ułatwią realizację Twojej budowy.
[Planz] Dziennik budowy (0 zł)
Przy zakupie projektu domu na planz.pl otrzymasz dziennik budowy gratis – niezbędny dokument urzędowy, który szczegółowo rejestruje przebieg prac budowlanych. Jest on wymagany przez Prawo Budowlane i służy nie tylko do porządkowania procesu budowy, ale również jako dowód w ewentualnych sporach. Dziennik w formacie A4 z ponumerowanymi stronami ułatwia chronologiczne dokonywanie wpisów. Każdy egzemplarz posiada unikatowy numer i jest urzędowo rejestrowany. Nasz dziennik budowy jest do tego atrakcyjny wizualnie, w twardej okładce.
[Planz] Wiertarka udarowa (0 zł)
Wybierając projekt domu na planz.pl, otrzymasz praktyczny prezent. Dla każdego, kto zdecyduje się na zakup projektu o wartości przekraczającej 3000 zł, przygotowaliśmy specjalny bonus: wiertarkę gratis! To doskonałe narzędzie, które z pewnością przyda się podczas prac wykończeniowych lub drobnych napraw w nowym domu.
[Planz] Zgoda na zmiany w projekcie (0 zł)
Do każdego projektu załączamy zgodę na podstawowe zmiany (np. rodzaj i umiejscowienie okien i drzwi, przestawienie ścian działowych, zmiana materiałów wykończeniowych). Rozszerzona zgoda na zmiany jest również bezpłatna, szczegółowy zakres dodatkowych zmian w projekcie prosimy podać na formularzu zamówienia, w polu komentarz. GRATIS!!!
[Planz] Projekty architektury ogrodowej (0 zł)
16 gotowych projektów drewnianej architektury ogrodowej w wersji elektronicznej. Wśród nich:
Altana 3x3m, Zadaszenie 2,34x1,2m (typ 1,typ 2, typ 3), Drewutnia 2,78x1,44 m, Domek ogrodowy 2,78x1,44 m, Garaż Jodła 6,01x3,76 m, Garaż, Sosna 6,01x6,27 m, Ambona myśliwska (typ 1,typ 2), Wiata Grillowa 5x5 m, Wiata Grillowa 6x4 m, Brama (typ 1, typ 2, typ 3), Szoposzklarnia.
Cena: 0zł
[Planz] Charakterystyka energetyczna, tylko dla domów całorocznych (0 zł)
Dotyczy tylko projektów domów całorocznych. Charakterystyka energetyczna w projekcie domu, znana również jako świadectwo charakterystyki energetycznej lub certyfikat energetyczny, to dokument oceniający efektywność energetyczną budynku. Określa ona, ile energii (na ogrzewanie, wentylację, ciepłą wodę użytkową i oświetlenie) będzie potrzebował dany budynek do prawidłowego funkcjonowania w standardowych warunkach użytkowania. Charakterystyka ta jest wyrażana w kWh na metr kwadratowy powierzchni użytkowej budynku na rok (kWh/(m²·rok)).
Opracowanie charakterystyki energetycznej jest wymagane, zarówno dla nowo budowanych domów, jak i przy sprzedaży nieruchomości.
Wysyłka i płatność za projekt G95
Koszty wysyłki
bezpłatnie (0zł)
Formy płatności
przelew zwykły / PayNow
przy odbiorze
Czas oczekiwania
3-5 dni roboczych (jeśli projekt nie wymaga aktualizacji)
Projekt w kategoriach
PRACOWNIA:
Kup Projekt
Zamów rozmowę
Wybierz wygodny dla Ciebie czas kontaktu z naszym Doradcą Technicznym.
parterowy
2 stanowiska
murowany
[Planz] Dziennik budowy (0 zł)
[Planz] Zgoda na zmiany w projekcie (0 zł)
[Planz] Charakterystyka energetyczna, tylko dla domów całorocznych (0 zł)