22 299 20 00 (pn-nd 9.30 do 19.30)

Gotowy projekt budynku G94 (ID: 31492)

1590 2025-12-22
G94 - 36m²
Projekt dostępny od ręki
Gwarantujemy najniższą cenę
1590 zł
W cenie projektu:
  • Tablica + dziennik budowy
  • 16 projektów ogrodowych
  • Darmowa wysyłka (kurier, paczkomat, pobranie)
  • 30 dni na zwrot
  • Pozwolenie na zmiany z podpisem i pieczęcią autora
22 299 20 00 (pn-nd 9.30 do 19.30)

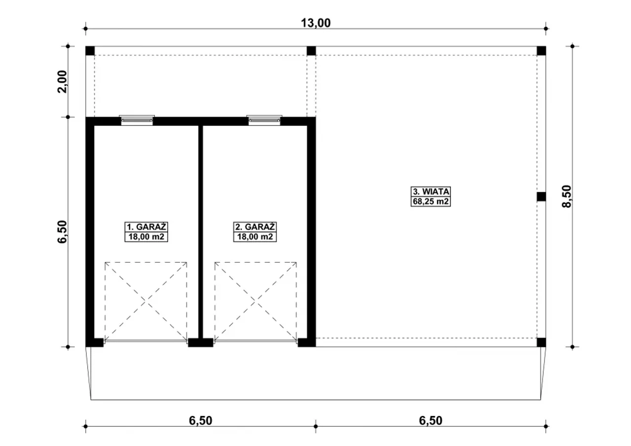
Rzuty gotowego projektu budynku G94

1. Garaż 18,00 m²
2. Garaż 18,00 m²
3. Wiata 68,25 m²

Zapoznaj się ze szczegółami projektu - pobierz bezpłatne rysunki do: G94

Wypełnij formularz i otrzymaj rysunki w pdf z dokładnymi wymiarami budynku i pomieszczeń (długość, szerokość, wysokość) dla projektu G94

Parametry Techniczne gotowego projektu domu G94

Pow. użytkowa 36 m²
Powierzchnia zabudowy 110.5 m²
Kondygnacje parterowy
Garaż 2 stanowiska
Technologia murowany
Obiekt inny
Wysokość budynku 4.67 m
Rodzaj dachu dwuspadowy
Obiekt inny (szczegóły) garaże
Kąt nachylenia dachu 25 °
Szerokość budynku 13 m
Kalenica równoległa do drogi
Długość budynku 8.5 m
Przestrzeń z wiatą/altaną
Kubatura 423.8 m³

Nasze prawdziwe opinie z Google

Dodatki do projektu G94

Dodatki możesz kupić razem z projektem lub dokupić po czasie

[Planz] Tablica budowlana (0 zł)

[Planz] Dziennik budowy (0 zł)

[Planz] Wiertarka udarowa (0 zł)

[Planz] Zgoda na zmiany w projekcie (0 zł)

[Planz] Projekty architektury ogrodowej (0 zł)

[Planz] Charakterystyka energetyczna, tylko dla domów całorocznych (0 zł)

Wysyłka i płatność za projekt G94

Koszty wysyłki

bezpłatnie (0zł)

Formy płatności

przelew zwykły / PayNow
przy odbiorze

Czas oczekiwania

3-5 dni roboczych (jeśli projekt nie wymaga aktualizacji)

Podobne projekty do budynku G94

PRACOWNIA: Kup Projekt