22 299 20 00 (pn-nd 9.30 do 19.30)

Gotowy projekt budynku G83 (ID: 31453)

1050 2025-12-22
G83 - 46.89m²
Możliwy dłuzszy czas realizacji
Gwarantujemy najniższą cenę
1050 zł
W cenie projektu:
  • Tablica + dziennik budowy
  • 16 projektów ogrodowych
  • Darmowa wysyłka (kurier, paczkomat, pobranie)
  • 30 dni na zwrot
  • Pozwolenie na zmiany z podpisem i pieczęcią autora
22 299 20 00 (pn-nd 9.30 do 19.30)

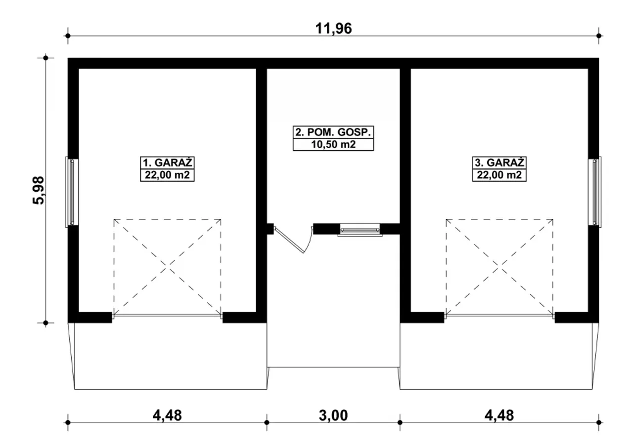
Rzuty gotowego projektu budynku G83

1. Garaż 22,00 m²
2. Pom. gospodarcze 10,50 m²
3. Garaż 22,00 m²

Zapoznaj się ze szczegółami projektu - pobierz bezpłatne rysunki do: G83

Wypełnij formularz i otrzymaj rysunki w pdf z dokładnymi wymiarami budynku i pomieszczeń (długość, szerokość, wysokość) dla projektu G83

Parametry Techniczne gotowego projektu domu G83

Pow. użytkowa 46.89 m²
Powierzchnia zabudowy 65.52 m²
Kondygnacje parterowy
Garaż 2 stanowiska
Technologia murowany
Obiekt inny
Szerokość budynku 5.98 m
Kalenica równoległa do drogi
Długość budynku 11.96 m
Przestrzeń z pom. gospodarczym
Kubatura 242.3 m³
Rodzaj dachu dwuspadowy
Obiekt inny (szczegóły) garaże
Kąt nachylenia dachu 25 °

Nasze prawdziwe opinie z Google

Dodatki do projektu G83

Dodatki możesz kupić razem z projektem lub dokupić po czasie

[Planz] Tablica budowlana (0 zł)

[Planz] Dziennik budowy (0 zł)

[Planz] Wiertarka udarowa (0 zł)

[Planz] Zgoda na zmiany w projekcie (0 zł)

[Planz] Projekty architektury ogrodowej (0 zł)

[Planz] Charakterystyka energetyczna, tylko dla domów całorocznych (0 zł)

Wysyłka i płatność za projekt G83

Koszty wysyłki

bezpłatnie (0zł)

Formy płatności

przelew zwykły / PayNow
przy odbiorze

Czas oczekiwania

3-5 dni roboczych (jeśli projekt nie wymaga aktualizacji)

Podobne projekty do budynku G83

PRACOWNIA: Kup Projekt