22 299 20 00 (pn-nd 9.30 do 19.30)

Gotowy projekt budynku G82 (ID: 31452)

790 2025-12-23
G82 - 19.43m²
Projekt dostępny od ręki
Gwarantujemy najniższą cenę
790 zł
W cenie projektu:
  • Tablica + dziennik budowy
  • 16 projektów ogrodowych
  • Darmowa wysyłka (kurier, paczkomat, pobranie)
  • 30 dni na zwrot
  • Pozwolenie na zmiany z podpisem i pieczęcią autora
22 299 20 00 (pn-nd 9.30 do 19.30)

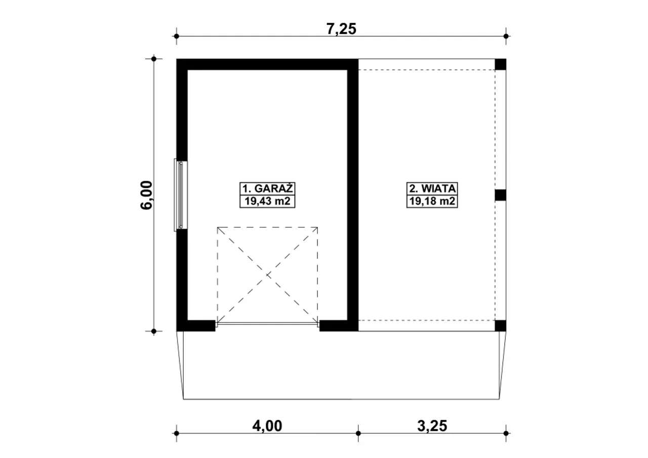
Rzuty gotowego projektu budynku G82

1. Garaż 19,43 m²
2. Wiata 19,18 m²

Zapoznaj się ze szczegółami projektu - pobierz bezpłatne rysunki do: G82

Wypełnij formularz i otrzymaj rysunki w pdf z dokładnymi wymiarami budynku i pomieszczeń (długość, szerokość, wysokość) dla projektu G82

Parametry Techniczne gotowego projektu domu G82

Pow. użytkowa 19.43 m²
Powierzchnia zabudowy 43.5 m²
Kondygnacje parterowy
Garaż 1 stanowisko
Technologia murowany
Obiekt inny
Obiekt inny (szczegóły) garaże
Kalenica równoległa do drogi
Przestrzeń z wiatą/altaną
Szerokość budynku 7.25 m
Długość budynku 6 m
Rodzaj dachu płaski
Kubatura 137.1 m³

Nasze prawdziwe opinie z Google

Dodatki do projektu G82

Dodatki możesz kupić razem z projektem lub dokupić po czasie

[Planz] Tablica budowlana (0 zł)

[Planz] Dziennik budowy (0 zł)

[Planz] Wiertarka udarowa (0 zł)

[Planz] Zgoda na zmiany w projekcie (0 zł)

[Planz] Projekty architektury ogrodowej (0 zł)

[Planz] Charakterystyka energetyczna, tylko dla domów całorocznych (0 zł)

Wysyłka i płatność za projekt G82

Koszty wysyłki

bezpłatnie (0zł)

Formy płatności

przelew zwykły / PayNow
przy odbiorze

Czas oczekiwania

3-5 dni roboczych (jeśli projekt nie wymaga aktualizacji)

Podobne projekty do budynku G82

PRACOWNIA: Kup Projekt