22 299 20 00 (pn-nd 9.30 do 19.30)

Gotowy projekt budynku G78 (ID: 31448)

790 2025-12-22
G78 - 32.5m²
Projekt dostępny od ręki
Gwarantujemy najniższą cenę
790 zł
W cenie projektu:
  • Tablica + dziennik budowy
  • 16 projektów ogrodowych
  • Darmowa wysyłka (kurier, paczkomat, pobranie)
  • 30 dni na zwrot
  • Pozwolenie na zmiany z podpisem i pieczęcią autora
22 299 20 00 (pn-nd 9.30 do 19.30)

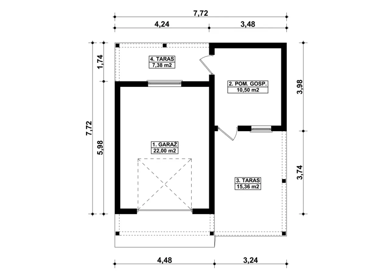
Rzuty gotowego projektu budynku G78

1. Garaż 22,00 m²
2. Pom. gospodarcze 10,50 m²
3. Taras 15,36 m²
4. Taras 7,38 m²

Zapoznaj się ze szczegółami projektu - pobierz bezpłatne rysunki do: G78

Wypełnij formularz i otrzymaj rysunki w pdf z dokładnymi wymiarami budynku i pomieszczeń (długość, szerokość, wysokość) dla projektu G78

Parametry Techniczne gotowego projektu domu G78

Pow. użytkowa 32.5 m²
Powierzchnia zabudowy 59.6 m²
Kondygnacje parterowy
Garaż 1 stanowisko
Technologia murowany
Obiekt inny
Obiekt inny (szczegóły) garaże
Szerokość budynku 7.72 m
Kalenica prostopadła do drogi
Długość budynku 7.72 m
Przestrzeń z pom. gospodarczym, z wiatą/altaną
Kubatura 240.6 m³
Rodzaj dachu dwuspadowy
Kąt nachylenia dachu drugiego 31
Kąt nachylenia dachu 25 °

Nasze prawdziwe opinie z Google

Dodatki do projektu G78

Dodatki możesz kupić razem z projektem lub dokupić po czasie

[Planz] Tablica budowlana (0 zł)

[Planz] Dziennik budowy (0 zł)

[Planz] Wiertarka udarowa (0 zł)

[Planz] Zgoda na zmiany w projekcie (0 zł)

[Planz] Projekty architektury ogrodowej (0 zł)

[Planz] Charakterystyka energetyczna, tylko dla domów całorocznych (0 zł)

Wysyłka i płatność za projekt G78

Koszty wysyłki

bezpłatnie (0zł)

Formy płatności

przelew zwykły / PayNow
przy odbiorze

Czas oczekiwania

3-5 dni roboczych (jeśli projekt nie wymaga aktualizacji)

Podobne projekty do budynku G78

PRACOWNIA: Kup Projekt