22 299 20 00 (pn-nd 9.30 do 19.30)

Gotowy projekt budynku G70 (ID: 31442)

790 2025-12-23
G70 - 52.3m²
Projekt dostępny od ręki
Gwarantujemy najniższą cenę
790 zł
W cenie projektu:
  • Tablica + dziennik budowy
  • 16 projektów ogrodowych
  • Darmowa wysyłka (kurier, paczkomat, pobranie)
  • 30 dni na zwrot
  • Pozwolenie na zmiany z podpisem i pieczęcią autora
22 299 20 00 (pn-nd 9.30 do 19.30)

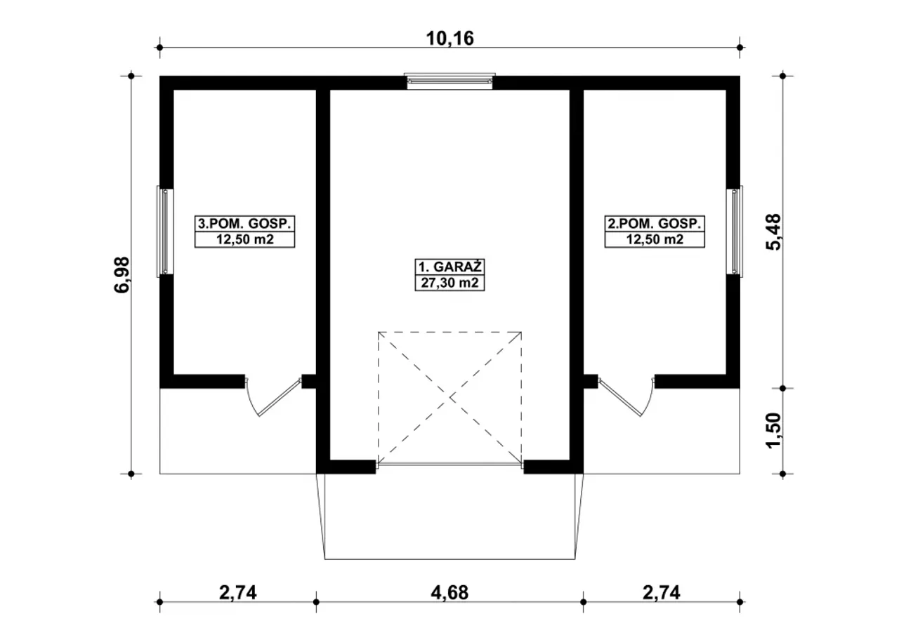
Rzuty gotowego projektu budynku G70

1. Garaż 27,30 m²
2. Pom. gospodarcze 12,50 m²
3. Pom. gospodarcze 12,50 m²

Zapoznaj się ze szczegółami projektu - pobierz bezpłatne rysunki do: G70

Wypełnij formularz i otrzymaj rysunki w pdf z dokładnymi wymiarami budynku i pomieszczeń (długość, szerokość, wysokość) dla projektu G70

Parametry Techniczne gotowego projektu domu G70

Pow. użytkowa 52.3 m²
Powierzchnia zabudowy 62.7 m²
Kondygnacje parterowy
Garaż 1 stanowisko
Technologia murowany
Obiekt inny
Rodzaj dachu dwuspadowy
Obiekt inny (szczegóły) garaże
Kąt nachylenia dachu 17 °
Kalenica równoległa do drogi
Szerokość budynku 6.98 m
Przestrzeń z pom. gospodarczym
Długość budynku 10.16 m
Kubatura 216.6 m³

Nasze prawdziwe opinie z Google

Dodatki do projektu G70

Dodatki możesz kupić razem z projektem lub dokupić po czasie

[Planz] Tablica budowlana (0 zł)

[Planz] Dziennik budowy (0 zł)

[Planz] Wiertarka udarowa (0 zł)

[Planz] Zgoda na zmiany w projekcie (0 zł)

[Planz] Projekty architektury ogrodowej (0 zł)

[Planz] Charakterystyka energetyczna, tylko dla domów całorocznych (0 zł)

Wysyłka i płatność za projekt G70

Koszty wysyłki

bezpłatnie (0zł)

Formy płatności

przelew zwykły / PayNow
przy odbiorze

Czas oczekiwania

3-5 dni roboczych (jeśli projekt nie wymaga aktualizacji)

Podobne projekty do budynku G70

PRACOWNIA: Kup Projekt