22 299 20 00 (pn-nd 9.30 do 19.30)

Gotowy projekt budynku G68 (ID: 31440)

790 2025-12-23
G68 - 40.04m²
Możliwy dłuzszy czas realizacji
Gwarantujemy najniższą cenę
790 zł
W cenie projektu:
  • Tablica + dziennik budowy
  • 16 projektów ogrodowych
  • Darmowa wysyłka (kurier, paczkomat, pobranie)
  • 30 dni na zwrot
  • Pozwolenie na zmiany z podpisem i pieczęcią autora
22 299 20 00 (pn-nd 9.30 do 19.30)

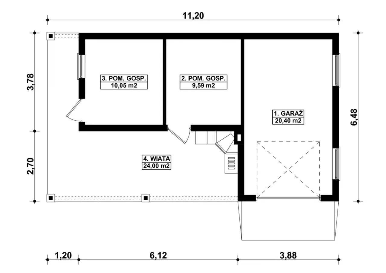
Rzuty gotowego projektu budynku G68

1. Garaż 20,40 m²
2. Pom. gospodarcze 9,59 m²
3. Pom. gospodarcze 10,05 m²
4. Wiata 24,00 m²

Zapoznaj się ze szczegółami projektu - pobierz bezpłatne rysunki do: G68

Wypełnij formularz i otrzymaj rysunki w pdf z dokładnymi wymiarami budynku i pomieszczeń (długość, szerokość, wysokość) dla projektu G68

Parametry Techniczne gotowego projektu domu G68

Pow. użytkowa 40.04 m²
Powierzchnia zabudowy 72.58 m²
Kondygnacje parterowy
Garaż 1 stanowisko
Technologia murowany
Obiekt inny
Szerokość budynku 6.48 m
Kalenica równoległa do drogi
Długość budynku 10 m
Przestrzeń z pom. gospodarczym, z wiatą/altaną
Kubatura 269.6 m³
Rodzaj dachu dwuspadowy
Obiekt inny (szczegóły) garaże
Kąt nachylenia dachu 25 °

Nasze prawdziwe opinie z Google

Dodatki do projektu G68

Dodatki możesz kupić razem z projektem lub dokupić po czasie

[Planz] Tablica budowlana (0 zł)

[Planz] Dziennik budowy (0 zł)

[Planz] Wiertarka udarowa (0 zł)

[Planz] Zgoda na zmiany w projekcie (0 zł)

[Planz] Projekty architektury ogrodowej (0 zł)

[Planz] Charakterystyka energetyczna, tylko dla domów całorocznych (0 zł)

Wysyłka i płatność za projekt G68

Koszty wysyłki

bezpłatnie (0zł)

Formy płatności

przelew zwykły / PayNow
przy odbiorze

Czas oczekiwania

3-5 dni roboczych (jeśli projekt nie wymaga aktualizacji)

Podobne projekty do budynku G68

PRACOWNIA: Kup Projekt