22 299 20 00 (pn-nd 9.30 do 19.30)

Gotowy projekt budynku G54 (ID: 31401)

990 2025-12-23
G54 - 46.56m²
Możliwy dłuzszy czas realizacji
Gwarantujemy najniższą cenę
990 zł
W cenie projektu:
  • Tablica + dziennik budowy
  • 16 projektów ogrodowych
  • Darmowa wysyłka (kurier, paczkomat, pobranie)
  • 30 dni na zwrot
  • Pozwolenie na zmiany z podpisem i pieczęcią autora
22 299 20 00 (pn-nd 9.30 do 19.30)

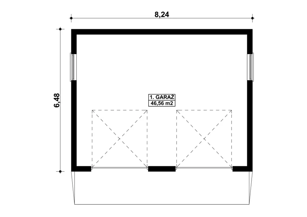
Rzuty gotowego projektu budynku G54

1. Garaż 46,56 m²

Zapoznaj się ze szczegółami projektu - pobierz bezpłatne rysunki do: G54

Wypełnij formularz i otrzymaj rysunki w pdf z dokładnymi wymiarami budynku i pomieszczeń (długość, szerokość, wysokość) dla projektu G54

Parametry Techniczne gotowego projektu domu G54

Pow. użytkowa 46.56 m²
Powierzchnia zabudowy 53.4 m²
Kondygnacje parterowy
Garaż 2 stanowiska
Technologia murowany
Obiekt inny
Wysokość budynku 4.71 m
Rodzaj dachu wielospadowy
Obiekt inny (szczegóły) garaże
Kąt nachylenia dachu 25 °
Szerokość budynku 6.48 m
Długość budynku 8.24 m
Kalenica równoległa do drogi
Kubatura 212.7 m³

Nasze prawdziwe opinie z Google

Dodatki do projektu G54

Dodatki możesz kupić razem z projektem lub dokupić po czasie

[Planz] Tablica budowlana (0 zł)

[Planz] Dziennik budowy (0 zł)

[Planz] Wiertarka udarowa (0 zł)

[Planz] Zgoda na zmiany w projekcie (0 zł)

[Planz] Projekty architektury ogrodowej (0 zł)

[Planz] Charakterystyka energetyczna, tylko dla domów całorocznych (0 zł)

Wysyłka i płatność za projekt G54

Koszty wysyłki

bezpłatnie (0zł)

Formy płatności

przelew zwykły / PayNow
przy odbiorze

Czas oczekiwania

3-5 dni roboczych (jeśli projekt nie wymaga aktualizacji)

Podobne projekty do budynku G54

PRACOWNIA: Kup Projekt