22 299 20 00 (pn-nd 9.30 do 19.30)

Gotowy projekt budynku G43 (ID: 31207)

849 2025-12-22
G43 - 41.12m²
Możliwy dłuzszy czas realizacji
Gwarantujemy najniższą cenę
849 zł
W cenie projektu:
  • Tablica + dziennik budowy
  • 16 projektów ogrodowych
  • Darmowa wysyłka (kurier, paczkomat, pobranie)
  • 30 dni na zwrot
  • Pozwolenie na zmiany z podpisem i pieczęcią autora
22 299 20 00 (pn-nd 9.30 do 19.30)

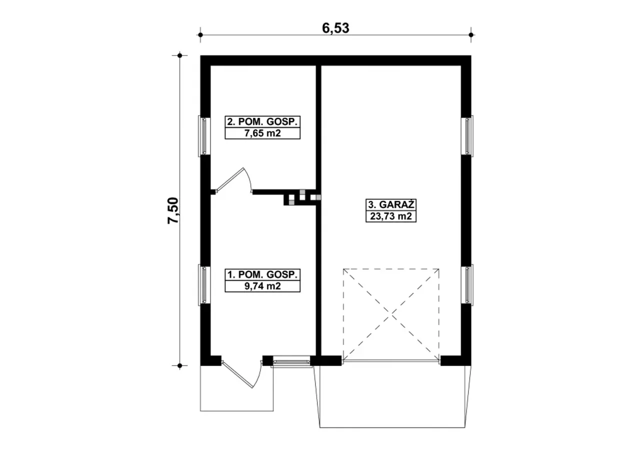
Rzuty gotowego projektu budynku G43

1. Pom.gosp. 9,74 m²
2. Pom.gosp. 7,65 m²
3. Garaż 23,73 m²

Zapoznaj się ze szczegółami projektu - pobierz bezpłatne rysunki do: G43

Wypełnij formularz i otrzymaj rysunki w pdf z dokładnymi wymiarami budynku i pomieszczeń (długość, szerokość, wysokość) dla projektu G43

Parametry Techniczne gotowego projektu domu G43

Pow. użytkowa 41.12 m²
Powierzchnia zabudowy 48.98 m²
Kondygnacje parterowy
Garaż 1 stanowisko
Technologia murowany
Obiekt inny
Rodzaj dachu dwuspadowy
Obiekt inny (szczegóły) garaże
Kąt nachylenia dachu 20 °
Szerokość budynku 6.53 m
Długość budynku 7.5 m
Kubatura 174.1 m³
Kalenica prostopadła do drogi
Wysokość budynku 2.5 m
Przestrzeń z pom. gospodarczym
Wysokość pomieszczeń 2.5 m

Nasze prawdziwe opinie z Google

Dodatki do projektu G43

Dodatki możesz kupić razem z projektem lub dokupić po czasie

[Planz] Tablica budowlana (0 zł)

[Planz] Dziennik budowy (0 zł)

[Planz] Wiertarka udarowa (0 zł)

[Planz] Zgoda na zmiany w projekcie (0 zł)

[Planz] Projekty architektury ogrodowej (0 zł)

[Planz] Charakterystyka energetyczna, tylko dla domów całorocznych (0 zł)

Wysyłka i płatność za projekt G43

Koszty wysyłki

bezpłatnie (0zł)

Formy płatności

przelew zwykły / PayNow
przy odbiorze

Czas oczekiwania

3-5 dni roboczych (jeśli projekt nie wymaga aktualizacji)

Podobne projekty do budynku G43

PRACOWNIA: Kup Projekt