22 299 20 00 (pn-nd 9.30 do 19.30)

Gotowy projekt budynku G378 - Budynek garażowo-gospodarczy (ID: 32695)

890 2025-12-23
G378 - Budynek garażowo-gospodarczy - 58.16m²
Projekt dostępny od ręki
Gwarantujemy najniższą cenę
890 zł
W cenie projektu:
  • Tablica + dziennik budowy
  • 16 projektów ogrodowych
  • Darmowa wysyłka (kurier, paczkomat, pobranie)
  • 30 dni na zwrot
  • Pozwolenie na zmiany z podpisem i pieczęcią autora
22 299 20 00 (pn-nd 9.30 do 19.30)

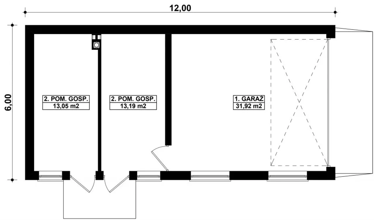
Rzuty gotowego projektu budynku G378 - Budynek garażowo-gospodarczy

1. Garaż 31,92 m²
2. Pom. gospodarcze 13,19 m²
3. Pom. gospodarcze 13,05 m²

Zapoznaj się ze szczegółami projektu - pobierz bezpłatne rysunki do: G378 - Budynek garażowo-gospodarczy

Wypełnij formularz i otrzymaj rysunki w pdf z dokładnymi wymiarami budynku i pomieszczeń (długość, szerokość, wysokość) dla projektu G378 - Budynek garażowo-gospodarczy

Parametry Techniczne gotowego projektu domu G378 - Budynek garażowo-gospodarczy

Pow. użytkowa 58.16 m²
Powierzchnia zabudowy 72 m²
Kondygnacje parterowy
Garaż 1 stanowisko
Technologia murowany
Obiekt inny
Obiekt inny (szczegóły) garaże
Kąt nachylenia dachu 25 °
Szerokość budynku 6 m
Kalenica prostopadła do drogi
Długość budynku 12 m
Przestrzeń z pom. gospodarczym
Kubatura 261.4 m³
Rodzaj dachu dwuspadowy

Nasze prawdziwe opinie z Google

Opis projektu domu G378 - Budynek garażowo-gospodarczy

Technologia wykonania:

  • Budy­nek wyko­nany w tech­no­lo­gii tra­dy­cyj­nej.
  • Ściany: muro­wane z blocz­ków z betonu komór­ko­wego gru­bo­ści 24cm, ocie­plone sty­ro­pia­nem gru­bo­ści 10cm.
  • Brama: o wymia­rach 5,00×2,20m.
  • Więźba dachowa: dwu­spa­dowa, drew­niana, pokryta dachówką cera­miczną.

Dodatki do projektu G378 - Budynek garażowo-gospodarczy

Dodatki możesz kupić razem z projektem lub dokupić po czasie

[Planz] Tablica budowlana (0 zł)

[Planz] Dziennik budowy (0 zł)

[Planz] Wiertarka udarowa (0 zł)

[Planz] Zgoda na zmiany w projekcie (0 zł)

[Planz] Projekty architektury ogrodowej (0 zł)

[Planz] Charakterystyka energetyczna, tylko dla domów całorocznych (0 zł)

Wysyłka i płatność za projekt G378 - Budynek garażowo-gospodarczy

Koszty wysyłki

bezpłatnie (0zł)

Formy płatności

przelew zwykły / PayNow
przy odbiorze

Czas oczekiwania

3-5 dni roboczych (jeśli projekt nie wymaga aktualizacji)

Podobne projekty do budynku G378 - Budynek garażowo-gospodarczy

PRACOWNIA: Kup Projekt