22 299 20 00 (pn-nd 9.30 do 19.30)

Gotowy projekt budynku G333 (ID: 32477)

990 2025-12-22
G333 - 21.19m²
Możliwy dłuzszy czas realizacji
Gwarantujemy najniższą cenę
990 zł
W cenie projektu:
  • Tablica + dziennik budowy
  • 16 projektów ogrodowych
  • Darmowa wysyłka (kurier, paczkomat, pobranie)
  • 30 dni na zwrot
  • Pozwolenie na zmiany z podpisem i pieczęcią autora
22 299 20 00 (pn-nd 9.30 do 19.30)

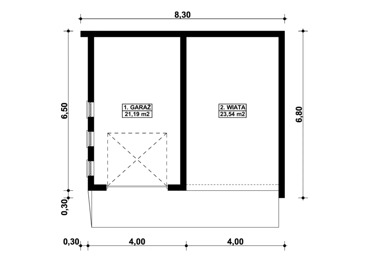
Rzuty gotowego projektu budynku G333

1. Garaż 21,19 m²
2. Wiata 23,54 m²

Zapoznaj się ze szczegółami projektu - pobierz bezpłatne rysunki do: G333

Wypełnij formularz i otrzymaj rysunki w pdf z dokładnymi wymiarami budynku i pomieszczeń (długość, szerokość, wysokość) dla projektu G333

Parametry Techniczne gotowego projektu domu G333

Pow. użytkowa 21.19 m²
Powierzchnia zabudowy 52.14 m²
Kondygnacje parterowy
Garaż 1 stanowisko
Technologia murowany
Obiekt inny
Wysokość budynku 3.5 m
Przestrzeń z wiatą/altaną
Rodzaj dachu płaski
Obiekt inny (szczegóły) garaże
Kąt nachylenia dachu 3 °
Szerokość budynku 8.3 m
Długość budynku 6.5 m
Kubatura 162.3 m³
Kalenica bez znaczenia

Nasze prawdziwe opinie z Google

Opis projektu domu G333

Technologia wykonania:

  • Budynek wykonany w technologii tradycyjnej.
  • Ściany: murowane z bloczków z betonu komórkowego grubości 24cm.
  • Brama: o wymiarach 2,50x2,20m.
  • Podciąg: żelbetowy.
  • Więźba dachowa: jednospadowa, drewniana, pokryta blachą na rąbek.

Dodatki do projektu G333

Dodatki możesz kupić razem z projektem lub dokupić po czasie

[Planz] Tablica budowlana (0 zł)

[Planz] Dziennik budowy (0 zł)

[Planz] Wiertarka udarowa (0 zł)

[Planz] Zgoda na zmiany w projekcie (0 zł)

[Planz] Projekty architektury ogrodowej (0 zł)

[Planz] Charakterystyka energetyczna, tylko dla domów całorocznych (0 zł)

Wysyłka i płatność za projekt G333

Koszty wysyłki

bezpłatnie (0zł)

Formy płatności

przelew zwykły / PayNow
przy odbiorze

Czas oczekiwania

3-5 dni roboczych (jeśli projekt nie wymaga aktualizacji)

Podobne projekty do budynku G333

PRACOWNIA: Kup Projekt