22 299 20 00 (pn-nd 9.30 do 19.30)

Gotowy projekt budynku G315 (ID: 32446)

990 2025-12-23
G315 - 45.9m²
Możliwy dłuzszy czas realizacji
Gwarantujemy najniższą cenę
990 zł
W cenie projektu:
  • Tablica + dziennik budowy
  • 16 projektów ogrodowych
  • Darmowa wysyłka (kurier, paczkomat, pobranie)
  • 30 dni na zwrot
  • Pozwolenie na zmiany z podpisem i pieczęcią autora
22 299 20 00 (pn-nd 9.30 do 19.30)

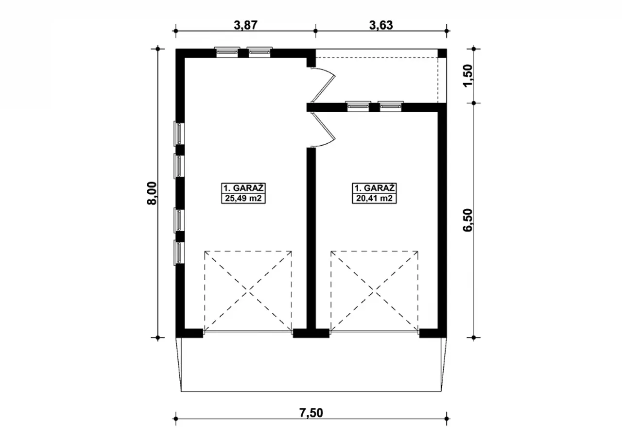
Rzuty gotowego projektu budynku G315

1. Garaż 25,46 m²
2. Garaż 20,41 m²

Zapoznaj się ze szczegółami projektu - pobierz bezpłatne rysunki do: G315

Wypełnij formularz i otrzymaj rysunki w pdf z dokładnymi wymiarami budynku i pomieszczeń (długość, szerokość, wysokość) dla projektu G315

Parametry Techniczne gotowego projektu domu G315

Pow. użytkowa 45.9 m²
Powierzchnia zabudowy 60 m²
Kondygnacje parterowy
Garaż 2 stanowiska
Technologia murowany
Obiekt inny
Wysokość budynku 3.3 m
Kalenica bez znaczenia
Wysokość pomieszczeń 2.5 m
Rodzaj dachu płaski
Szerokość budynku 7.5 m
Obiekt inny (szczegóły) garaże
Kąt nachylenia dachu 3 °
Długość budynku 8 m
Kubatura 171.6 m³

Nasze prawdziwe opinie z Google

Opis projektu domu G315

Technologia wykonania:

  • Budynek wykonany w technologii tradycyjnej.
  • Ściany: murowane z bloczków z betonu komórkowego grubości 24cm.
  • Bramy: o wymiarach 2,50x2,20m.
  • Słup: żelbetowy.
  • Więźba dachowa: jednospadowa, drewniana, pokryta blachą na rąbek.

Dodatki do projektu G315

Dodatki możesz kupić razem z projektem lub dokupić po czasie

[Planz] Tablica budowlana (0 zł)

[Planz] Dziennik budowy (0 zł)

[Planz] Wiertarka udarowa (0 zł)

[Planz] Zgoda na zmiany w projekcie (0 zł)

[Planz] Projekty architektury ogrodowej (0 zł)

[Planz] Charakterystyka energetyczna, tylko dla domów całorocznych (0 zł)

Wysyłka i płatność za projekt G315

Koszty wysyłki

bezpłatnie (0zł)

Formy płatności

przelew zwykły / PayNow
przy odbiorze

Czas oczekiwania

3-5 dni roboczych (jeśli projekt nie wymaga aktualizacji)

Podobne projekty do budynku G315

699 zł

GP4 garaż dostawiany dwustanowiskowy

powierzchnia 34.5 m²
technologia murowany
stanowisk w garażu 2 stanowiska
kondygnacja parterowy
Zobacz projekt
PRACOWNIA: Kup Projekt