22 299 20 00 (pn-nd 9.30 do 19.30)

Gotowy projekt budynku G312 (ID: 32443)

1190 2025-12-22
G312 - 65.54m²
Możliwy dłuzszy czas realizacji
Gwarantujemy najniższą cenę
1190 zł
W cenie projektu:
  • Tablica + dziennik budowy
  • 16 projektów ogrodowych
  • Darmowa wysyłka (kurier, paczkomat, pobranie)
  • 30 dni na zwrot
  • Pozwolenie na zmiany z podpisem i pieczęcią autora
22 299 20 00 (pn-nd 9.30 do 19.30)

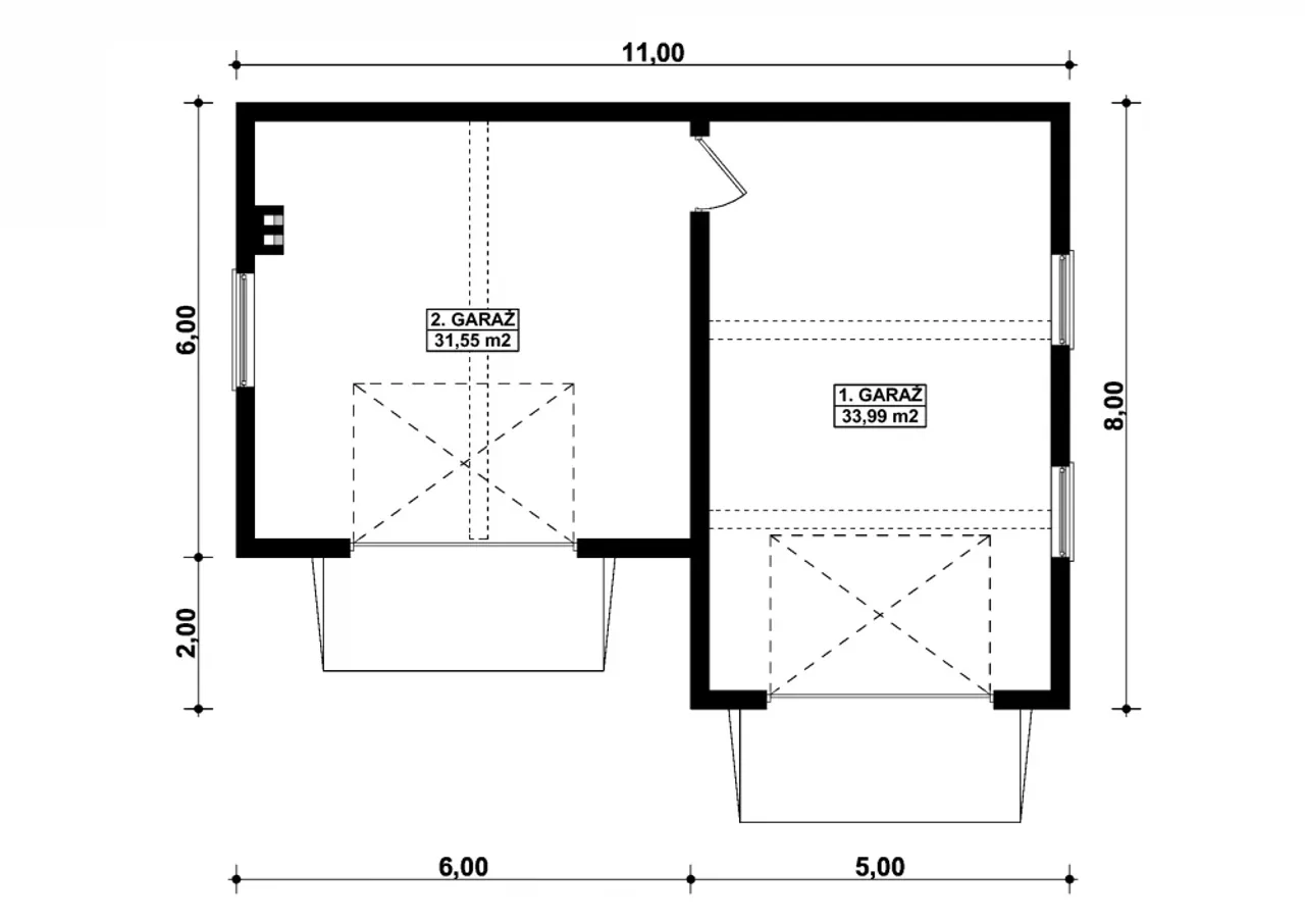
Rzuty gotowego projektu budynku G312

1. Garaż 33,99 m²
2. Garaż 31,55 m²

Zapoznaj się ze szczegółami projektu - pobierz bezpłatne rysunki do: G312

Wypełnij formularz i otrzymaj rysunki w pdf z dokładnymi wymiarami budynku i pomieszczeń (długość, szerokość, wysokość) dla projektu G312

Parametry Techniczne gotowego projektu domu G312

Pow. użytkowa 65.54 m²
Powierzchnia zabudowy 76 m²
Kondygnacje parterowy
Garaż 2 stanowiska
Technologia murowany
Obiekt inny
Kalenica równoległa do drogi
Rodzaj dachu wielospadowy
Szerokość budynku 11 m
Kąt nachylenia dachu drugiego 21
Kąt nachylenia dachu 25 °
Długość budynku 8 m
Obiekt inny (szczegóły) garaże
Kubatura 253.6 m³
Wysokość budynku 3.85 m
Wysokość pomieszczeń 2.5 m

Nasze prawdziwe opinie z Google

Opis projektu domu G312

Technologia wykonania:

  • Budynek wykonany w technologii tradycyjnej.
  • Ściany: murowane z bloczków z betonu komórkowego grubości 24cm.
  • Bramy: o wymiarach 3,00x2,10m.
  • Komin: z cegły ceramicznej pełnej.
  • Podciągi: żelbetowe.
  • Więźba dachowa: wielospadowa, drewniana, pokryta blachodachówką.

Dodatki do projektu G312

Dodatki możesz kupić razem z projektem lub dokupić po czasie

[Planz] Tablica budowlana (0 zł)

[Planz] Dziennik budowy (0 zł)

[Planz] Wiertarka udarowa (0 zł)

[Planz] Zgoda na zmiany w projekcie (0 zł)

[Planz] Projekty architektury ogrodowej (0 zł)

[Planz] Charakterystyka energetyczna, tylko dla domów całorocznych (0 zł)

Wysyłka i płatność za projekt G312

Koszty wysyłki

bezpłatnie (0zł)

Formy płatności

przelew zwykły / PayNow
przy odbiorze

Czas oczekiwania

3-5 dni roboczych (jeśli projekt nie wymaga aktualizacji)

Podobne projekty do budynku G312

PRACOWNIA: Kup Projekt