22 299 20 00 (pn-nd 9.30 do 19.30)

Gotowy projekt budynku G310 (ID: 32442)

890 2025-12-23
G310 - 39.19m²
Możliwy dłuzszy czas realizacji
Gwarantujemy najniższą cenę
890 zł
W cenie projektu:
  • Tablica + dziennik budowy
  • 16 projektów ogrodowych
  • Darmowa wysyłka (kurier, paczkomat, pobranie)
  • 30 dni na zwrot
  • Pozwolenie na zmiany z podpisem i pieczęcią autora
22 299 20 00 (pn-nd 9.30 do 19.30)

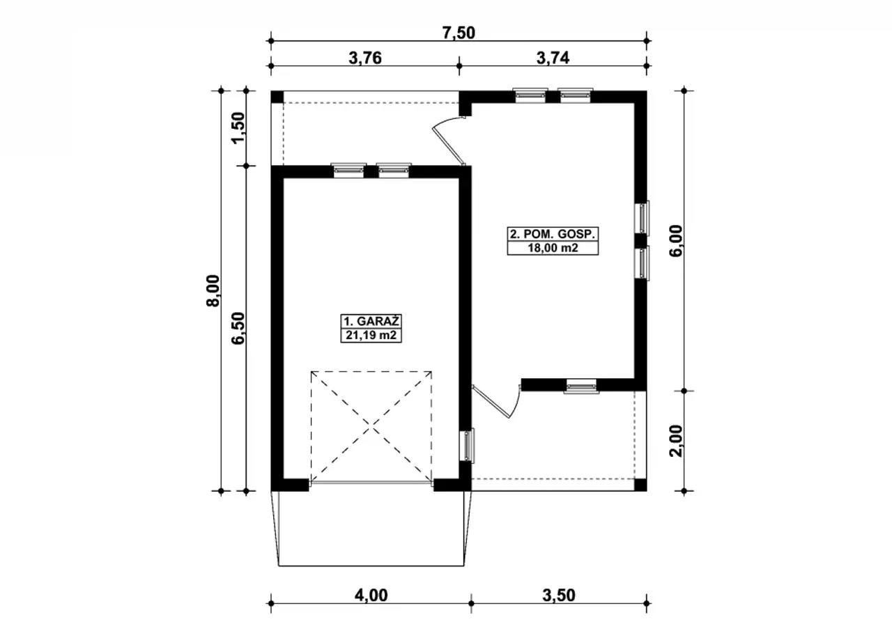
Rzuty gotowego projektu budynku G310

1. Garaż 21,19 m²
2. Pom. gospodarcze 18,00 m²

Zapoznaj się ze szczegółami projektu - pobierz bezpłatne rysunki do: G310

Wypełnij formularz i otrzymaj rysunki w pdf z dokładnymi wymiarami budynku i pomieszczeń (długość, szerokość, wysokość) dla projektu G310

Parametry Techniczne gotowego projektu domu G310

Pow. użytkowa 39.19 m²
Powierzchnia zabudowy 60 m²
Kondygnacje parterowy
Garaż 2 stanowiska
Technologia murowany
Obiekt inny
Przestrzeń z pom. gospodarczym
Rodzaj dachu płaski
Szerokość budynku 7.5 m
Obiekt inny (szczegóły) garaże
Kąt nachylenia dachu 3 °
Długość budynku 8 m
Kubatura 171.6 m³
Wysokość budynku 3.3 m
Kalenica bez znaczenia
Wysokość pomieszczeń 2.5 m

Nasze prawdziwe opinie z Google

Opis projektu domu G310

Technologia wykonania:

  • Budynek wykonany w technologii tradycyjnej.
  • Ściany: murowane z bloczków z betonu komórkowego grubości 24cm.
  • Brama: o wymiarach 2,50x2,20m.
  • Słupy: żelbetowe.
  • Więźba dachowa: jednospadowa, drewniana, pokryta blachą na rąbek.

Dodatki do projektu G310

Dodatki możesz kupić razem z projektem lub dokupić po czasie

[Planz] Tablica budowlana (0 zł)

[Planz] Dziennik budowy (0 zł)

[Planz] Wiertarka udarowa (0 zł)

[Planz] Zgoda na zmiany w projekcie (0 zł)

[Planz] Projekty architektury ogrodowej (0 zł)

[Planz] Charakterystyka energetyczna, tylko dla domów całorocznych (0 zł)

Wysyłka i płatność za projekt G310

Koszty wysyłki

bezpłatnie (0zł)

Formy płatności

przelew zwykły / PayNow
przy odbiorze

Czas oczekiwania

3-5 dni roboczych (jeśli projekt nie wymaga aktualizacji)

Podobne projekty do budynku G310

699 zł

GP4 garaż dostawiany dwustanowiskowy

powierzchnia 34.5 m²
technologia murowany
stanowisk w garażu 2 stanowiska
kondygnacja parterowy
Zobacz projekt
PRACOWNIA: Kup Projekt