22 299 20 00 (pn-nd 9.30 do 19.30)

Gotowy projekt budynku G306 (ID: 32438)

890 2025-12-23
G306 - 39.25m²
Projekt dostępny od ręki
Gwarantujemy najniższą cenę
890 zł
W cenie projektu:
  • Tablica + dziennik budowy
  • 16 projektów ogrodowych
  • Darmowa wysyłka (kurier, paczkomat, pobranie)
  • 30 dni na zwrot
  • Pozwolenie na zmiany z podpisem i pieczęcią autora
22 299 20 00 (pn-nd 9.30 do 19.30)

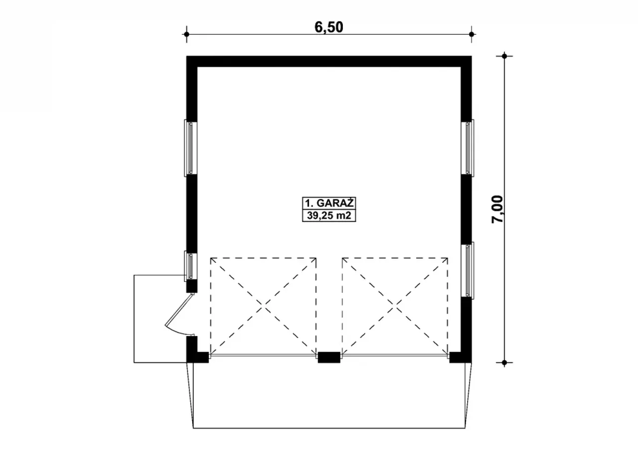
Rzuty gotowego projektu budynku G306

1. Garaż 39,25 m²

Zapoznaj się ze szczegółami projektu - pobierz bezpłatne rysunki do: G306

Wypełnij formularz i otrzymaj rysunki w pdf z dokładnymi wymiarami budynku i pomieszczeń (długość, szerokość, wysokość) dla projektu G306

Parametry Techniczne gotowego projektu domu G306

Pow. użytkowa 39.25 m²
Powierzchnia zabudowy 45.5 m²
Kondygnacje parterowy
Garaż 2 stanowiska
Technologia murowany
Obiekt inny
Rodzaj dachu płaski
Szerokość budynku 6.5 m
Obiekt inny (szczegóły) garaże
Kąt nachylenia dachu 3 °
Długość budynku 7 m
Kubatura 140.7 m³
Kalenica bez znaczenia
Wysokość budynku 3.2 m
Wysokość pomieszczeń 2.5 m

Nasze prawdziwe opinie z Google

Opis projektu domu G306

Technologia wykonania:

  • Budynek wykonany w technologii tradycyjnej.
  • Ściany: murowane z bloczków z betonu komórkowego grubości 24cm.
  • Bramy: o wymiarach 2,50x2,20m.
  • Więźba dachowa: jednospadowa, drewniana, pokryta blachą na rąbek.

Dodatki do projektu G306

Dodatki możesz kupić razem z projektem lub dokupić po czasie

[Planz] Tablica budowlana (0 zł)

[Planz] Dziennik budowy (0 zł)

[Planz] Wiertarka udarowa (0 zł)

[Planz] Zgoda na zmiany w projekcie (0 zł)

[Planz] Projekty architektury ogrodowej (0 zł)

[Planz] Charakterystyka energetyczna, tylko dla domów całorocznych (0 zł)

Wysyłka i płatność za projekt G306

Koszty wysyłki

bezpłatnie (0zł)

Formy płatności

przelew zwykły / PayNow
przy odbiorze

Czas oczekiwania

3-5 dni roboczych (jeśli projekt nie wymaga aktualizacji)

Podobne projekty do budynku G306

699 zł

GP4 garaż dostawiany dwustanowiskowy

powierzchnia 34.5 m²
technologia murowany
stanowisk w garażu 2 stanowiska
kondygnacja parterowy
Zobacz projekt
TANIEJ O 350 zł
1299 zł 949 zł

MS-G4

powierzchnia 43.2 m²
technologia murowany
stanowisk w garażu 2 stanowiska
kondygnacja parterowy
Zobacz projekt
PRACOWNIA: Kup Projekt