22 299 20 00 (pn-nd 9.30 do 19.30)

Gotowy projekt budynku G298 (ID: 32430)

1790 2025-12-23
G298 - 42.51m²
Możliwy dłuzszy czas realizacji
Gwarantujemy najniższą cenę
1790 zł
W cenie projektu:
  • Tablica + dziennik budowy
  • 16 projektów ogrodowych
  • Darmowa wysyłka (kurier, paczkomat, pobranie)
  • 30 dni na zwrot
  • Pozwolenie na zmiany z podpisem i pieczęcią autora
22 299 20 00 (pn-nd 9.30 do 19.30)

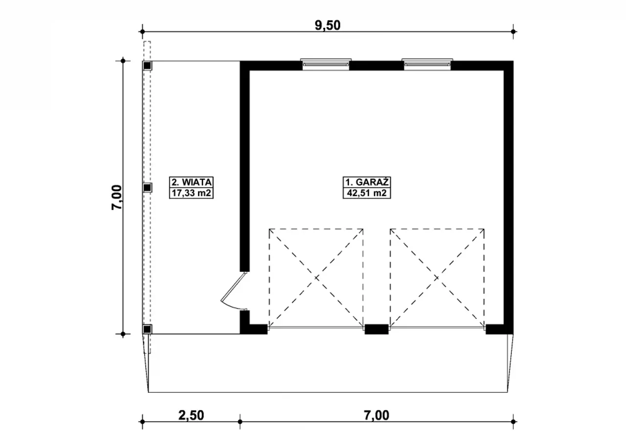
Rzuty gotowego projektu budynku G298

1. Garaż 42,51 m²
2. Wiata 17,33 m²

Zapoznaj się ze szczegółami projektu - pobierz bezpłatne rysunki do: G298

Wypełnij formularz i otrzymaj rysunki w pdf z dokładnymi wymiarami budynku i pomieszczeń (długość, szerokość, wysokość) dla projektu G298

Parametry Techniczne gotowego projektu domu G298

Pow. użytkowa 42.51 m²
Powierzchnia zabudowy 66.5 m²
Kondygnacje parterowy
Garaż 2 stanowiska
Technologia murowany
Obiekt inny
Wysokość pomieszczeń 3.15 m
Przestrzeń z wiatą/altaną
Rodzaj dachu dwuspadowy
Szerokość budynku 9.5 m
Obiekt inny (szczegóły) garaże
Kąt nachylenia dachu 30 °
Długość budynku 7 m
Kubatura 270.3 m³
Wysokość budynku 5.38 m
Kalenica prostopadła do drogi

Nasze prawdziwe opinie z Google

Opis projektu domu G298

Technologia wykonania:

  • Budynek wykonany w technologii tradycyjnej.
  • Ściany: murowane z bloczków z betonu komórkowego grubości 24cm.
  • Bramy: o wymiarach 2,50x2,50m.
  • Słupy: drewniane.
  • Więźba dachowa: dwuspadowa, drewniana, pokryta blachodachówką.

Dodatki do projektu G298

Dodatki możesz kupić razem z projektem lub dokupić po czasie

[Planz] Tablica budowlana (0 zł)

[Planz] Dziennik budowy (0 zł)

[Planz] Wiertarka udarowa (0 zł)

[Planz] Zgoda na zmiany w projekcie (0 zł)

[Planz] Projekty architektury ogrodowej (0 zł)

[Planz] Charakterystyka energetyczna, tylko dla domów całorocznych (0 zł)

Wysyłka i płatność za projekt G298

Koszty wysyłki

bezpłatnie (0zł)

Formy płatności

przelew zwykły / PayNow
przy odbiorze

Czas oczekiwania

3-5 dni roboczych (jeśli projekt nie wymaga aktualizacji)

Podobne projekty do budynku G298

PRACOWNIA: Kup Projekt