22 299 20 00 (pn-nd 9.30 do 19.30)

Gotowy projekt budynku G288 (ID: 32420)

2190 2025-12-22
G288 - 113.05m²
Projekt dostępny od ręki
Gwarantujemy najniższą cenę
2190 zł
W cenie projektu:
  • Tablica + dziennik budowy
  • 16 projektów ogrodowych
  • Darmowa wysyłka (kurier, paczkomat, pobranie)
  • 30 dni na zwrot
  • Pozwolenie na zmiany z podpisem i pieczęcią autora
22 299 20 00 (pn-nd 9.30 do 19.30)

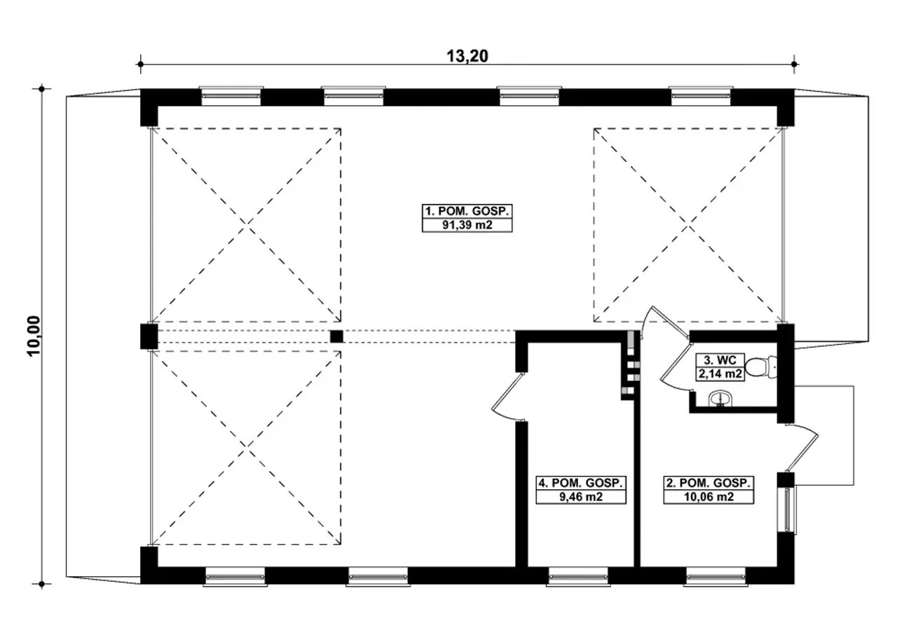
Rzuty gotowego projektu budynku G288

1. Pom. gospodarcze 91,39 m²
2. Pom. gospodarcze 10,06 m²
3. Wc 2,14 m²
4. Pom. gospodarcze 9,46 m²

Zapoznaj się ze szczegółami projektu - pobierz bezpłatne rysunki do: G288

Wypełnij formularz i otrzymaj rysunki w pdf z dokładnymi wymiarami budynku i pomieszczeń (długość, szerokość, wysokość) dla projektu G288

Parametry Techniczne gotowego projektu domu G288

Pow. użytkowa 113.05 m²
Powierzchnia zabudowy 132 m²
Kondygnacje parterowy
Garaż 2 stanowiska
Technologia murowany
Obiekt inny
Rodzaj dachu dwuspadowy
Szerokość budynku 10 m
Obiekt inny (szczegóły) garaże
Kąt nachylenia dachu 20 °
Długość budynku 13.2 m
Kubatura 671.9 m³
Kalenica prostopadła do drogi
Wysokość budynku 5.85 m
Przestrzeń z pom. gospodarczym
Wysokość pomieszczeń 3 m

Nasze prawdziwe opinie z Google

Opis projektu domu G288

Technologia wykonania:

  • Budynek wykonany w technologii tradycyjnej.
  • Ściany: warstwowe grubości 34cm, murowane z bloczków z betonu komórkowego grubości 24cm, ocieplone styropianem grubości 10cm.
  • Ściany wewnętrzne: z betonu komórkowego grubości 24cm i 12cm.
  • Bramy: o wymiarach 4,00x3,80m.
  • Słupy i podciągi: żelbetowe.
  • Więźba dachowa: dwuspadowa, drewniana, pokryta blachą trapezową.

Dodatki do projektu G288

Dodatki możesz kupić razem z projektem lub dokupić po czasie

[Planz] Tablica budowlana (0 zł)

[Planz] Dziennik budowy (0 zł)

[Planz] Wiertarka udarowa (0 zł)

[Planz] Zgoda na zmiany w projekcie (0 zł)

[Planz] Projekty architektury ogrodowej (0 zł)

[Planz] Charakterystyka energetyczna, tylko dla domów całorocznych (0 zł)

Wysyłka i płatność za projekt G288

Koszty wysyłki

bezpłatnie (0zł)

Formy płatności

przelew zwykły / PayNow
przy odbiorze

Czas oczekiwania

3-5 dni roboczych (jeśli projekt nie wymaga aktualizacji)

Podobne projekty do budynku G288

PRACOWNIA: Kup Projekt