22 299 20 00 (pn-nd 9.30 do 19.30)

Gotowy projekt budynku G280 (ID: 32413)

1190 2025-12-22
G280 - 55.87m²
Możliwy dłuzszy czas realizacji
Gwarantujemy najniższą cenę
1190 zł
W cenie projektu:
  • Tablica + dziennik budowy
  • 16 projektów ogrodowych
  • Darmowa wysyłka (kurier, paczkomat, pobranie)
  • 30 dni na zwrot
  • Pozwolenie na zmiany z podpisem i pieczęcią autora
22 299 20 00 (pn-nd 9.30 do 19.30)

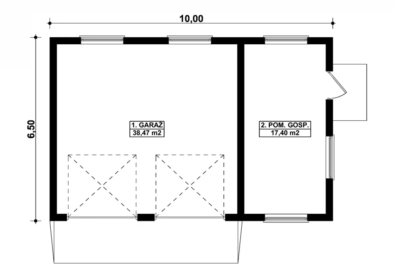
Rzuty gotowego projektu budynku G280

1. Garaż 38,47 m²
2. Pom. gospdoarcze 17,40 m²

Zapoznaj się ze szczegółami projektu - pobierz bezpłatne rysunki do: G280

Wypełnij formularz i otrzymaj rysunki w pdf z dokładnymi wymiarami budynku i pomieszczeń (długość, szerokość, wysokość) dla projektu G280

Parametry Techniczne gotowego projektu domu G280

Pow. użytkowa 55.87 m²
Powierzchnia zabudowy 65 m²
Kondygnacje parterowy
Garaż 2 stanowiska
Technologia murowany
Obiekt inny
Wysokość budynku 4.3 m
Kalenica równoległa do drogi
Wysokość pomieszczeń 2.6 m
Przestrzeń z pom. gospodarczym
Rodzaj dachu wielospadowy
Szerokość budynku 10 m
Obiekt inny (szczegóły) garaże
Kąt nachylenia dachu 25 °
Długość budynku 6.5 m
Kubatura 225.4 m³

Nasze prawdziwe opinie z Google

Opis projektu domu G280

Technologia wykonania:

  • Budynek wykonany w technologii tradycyjnej.
  • Ściany: murowane z bloczków z betonu komórkowego grubości 24cm.
  • Bramy: o wymiarach 2,50x2,20m.
  • Więźba dachowa: trzyspadowa, drewniana, pokryta blachą trapezową.

Dodatki do projektu G280

Dodatki możesz kupić razem z projektem lub dokupić po czasie

[Planz] Tablica budowlana (0 zł)

[Planz] Dziennik budowy (0 zł)

[Planz] Wiertarka udarowa (0 zł)

[Planz] Zgoda na zmiany w projekcie (0 zł)

[Planz] Projekty architektury ogrodowej (0 zł)

[Planz] Charakterystyka energetyczna, tylko dla domów całorocznych (0 zł)

Wysyłka i płatność za projekt G280

Koszty wysyłki

bezpłatnie (0zł)

Formy płatności

przelew zwykły / PayNow
przy odbiorze

Czas oczekiwania

3-5 dni roboczych (jeśli projekt nie wymaga aktualizacji)

Podobne projekty do budynku G280

PRACOWNIA: Kup Projekt