22 299 20 00 (pn-nd 9.30 do 19.30)

Gotowy projekt budynku G27mini (ID: 33000)

699 2025-12-23
G27mini - 27.5m²
Możliwy dłuzszy czas realizacji
Gwarantujemy najniższą cenę
699 zł
W cenie projektu:
  • Tablica + dziennik budowy
  • 16 projektów ogrodowych
  • Darmowa wysyłka (kurier, paczkomat, pobranie)
  • 30 dni na zwrot
  • Pozwolenie na zmiany z podpisem i pieczęcią autora
22 299 20 00 (pn-nd 9.30 do 19.30)

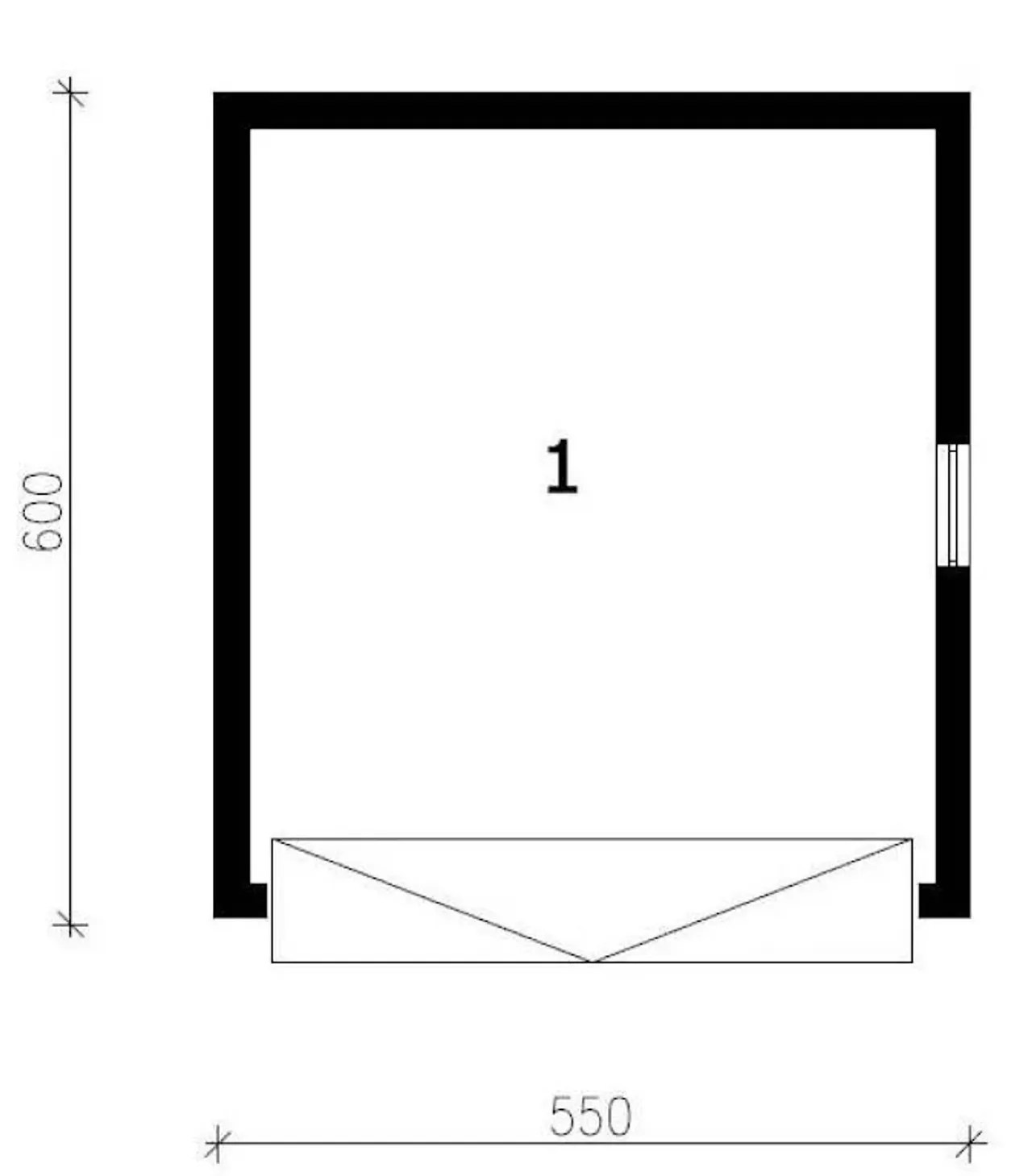
Rzuty gotowego projektu budynku G27mini

Zapoznaj się ze szczegółami projektu - pobierz bezpłatne rysunki do: G27mini

Wypełnij formularz i otrzymaj rysunki w pdf z dokładnymi wymiarami budynku i pomieszczeń (długość, szerokość, wysokość) dla projektu G27mini

Parametry Techniczne gotowego projektu domu G27mini

Pow. użytkowa 27.5 m²
Powierzchnia zabudowy 33 m²
Kondygnacje parterowy
Garaż 1 stanowisko
Technologia murowany
Obiekt inny
Szerokość budynku 5.5 m
Długość budynku 6 m
Kubatura 115 m³
Kalenica równoległa do drogi
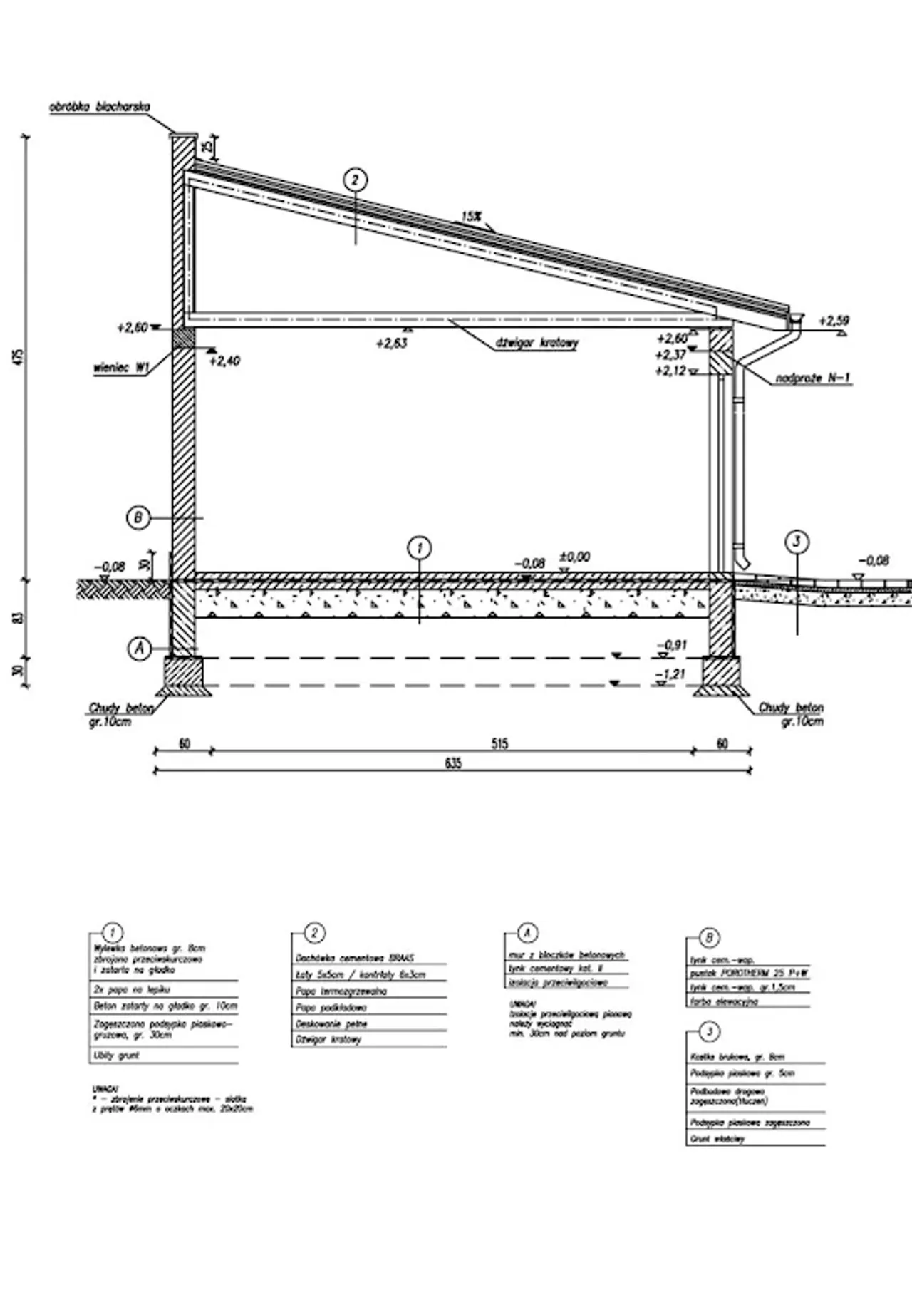
Wysokość budynku 4.78 m
Rodzaj dachu płaski
Obiekt inny (szczegóły) garaże
Kąt nachylenia dachu 15 °

Nasze prawdziwe opinie z Google

Opis projektu domu G27mini

Technologia wykonania:

  • Technologia tradycyjna , ściany murowane grubości 25 cm.
  • Konstrukcja więźby dachowej drewniana, pokrycie dachówka ceramiczna.

Dodatki do projektu G27mini

Dodatki możesz kupić razem z projektem lub dokupić po czasie

[Planz] Tablica budowlana (0 zł)

[Planz] Dziennik budowy (0 zł)

[Planz] Wiertarka udarowa (0 zł)

[Planz] Zgoda na zmiany w projekcie (0 zł)

[Planz] Projekty architektury ogrodowej (0 zł)

[Planz] Charakterystyka energetyczna, tylko dla domów całorocznych (0 zł)

Wysyłka i płatność za projekt G27mini

Koszty wysyłki

bezpłatnie (0zł)

Formy płatności

przelew zwykły / PayNow
przy odbiorze

Czas oczekiwania

3-5 dni roboczych (jeśli projekt nie wymaga aktualizacji)

Podobne projekty do budynku G27mini

PRACOWNIA: PROARTE