22 299 20 00 (pn-nd 9.30 do 19.30)

Gotowy projekt budynku G274 (ID: 32407)

890 2025-12-22
G274 - 58.52m²
Możliwy dłuzszy czas realizacji
Gwarantujemy najniższą cenę
890 zł
W cenie projektu:
  • Tablica + dziennik budowy
  • 16 projektów ogrodowych
  • Darmowa wysyłka (kurier, paczkomat, pobranie)
  • 30 dni na zwrot
  • Pozwolenie na zmiany z podpisem i pieczęcią autora
22 299 20 00 (pn-nd 9.30 do 19.30)

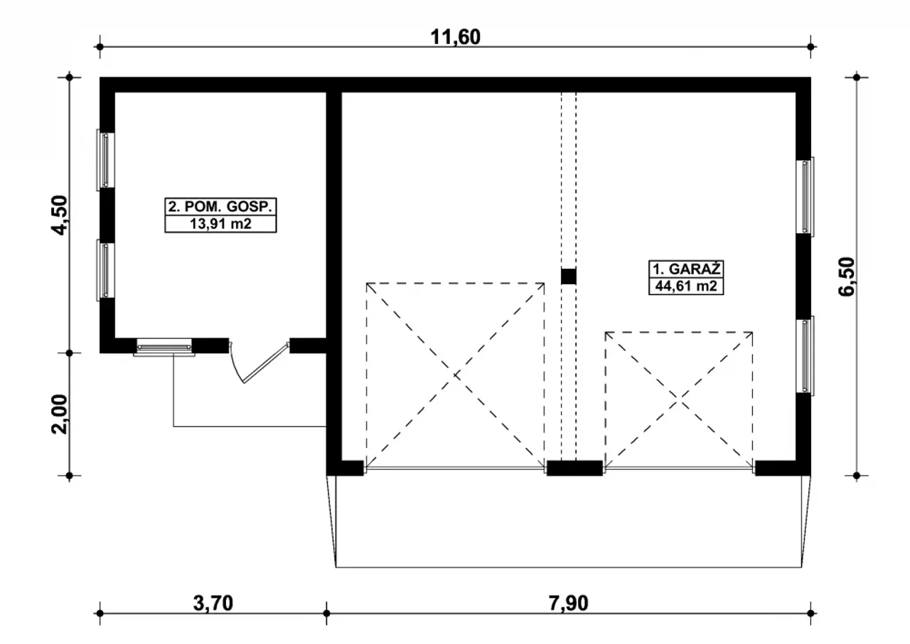
Rzuty gotowego projektu budynku G274

1. Garaż 44,61 m²
2. Pom. gospodarcze 13,91 m²

Zapoznaj się ze szczegółami projektu - pobierz bezpłatne rysunki do: G274

Wypełnij formularz i otrzymaj rysunki w pdf z dokładnymi wymiarami budynku i pomieszczeń (długość, szerokość, wysokość) dla projektu G274

Parametry Techniczne gotowego projektu domu G274

Pow. użytkowa 58.52 m²
Powierzchnia zabudowy 68 m²
Kondygnacje parterowy
Garaż 2 stanowiska
Technologia murowany
Obiekt inny
Wysokość budynku 4.08 m
Wysokość pomieszczeń 2.8 m
Kalenica prostopadła do drogi
Przestrzeń z pom. gospodarczym
Rodzaj dachu dwuspadowy
Szerokość budynku 11.6 m
Kąt nachylenia dachu drugiego 20
Kąt nachylenia dachu 10 °
Długość budynku 6.5 m
Obiekt inny (szczegóły) garaże
Kubatura 241.4 m³

Nasze prawdziwe opinie z Google

Opis projektu domu G274

Technologia wykonania:

  • Budynek wykonany w technologii tradycyjnej.
  • Ściany: murowane z bloczków z betonu komórkowego grubości 24cm.
  • Brama: o wymiarach 2,50x2,20m.
  • Słup i podciąg: żelbetowe.
  • Więźba dachowa: drewniana, pokryta blachą trapezową.

Dodatki do projektu G274

Dodatki możesz kupić razem z projektem lub dokupić po czasie

[Planz] Tablica budowlana (0 zł)

[Planz] Dziennik budowy (0 zł)

[Planz] Wiertarka udarowa (0 zł)

[Planz] Zgoda na zmiany w projekcie (0 zł)

[Planz] Projekty architektury ogrodowej (0 zł)

[Planz] Charakterystyka energetyczna, tylko dla domów całorocznych (0 zł)

Wysyłka i płatność za projekt G274

Koszty wysyłki

bezpłatnie (0zł)

Formy płatności

przelew zwykły / PayNow
przy odbiorze

Czas oczekiwania

3-5 dni roboczych (jeśli projekt nie wymaga aktualizacji)

Podobne projekty do budynku G274

PRACOWNIA: Kup Projekt