22 299 20 00 (pn-nd 9.30 do 19.30)

Gotowy projekt budynku G264 (ID: 32398)

2390 2025-12-23
G264 - 114.64m²
Projekt dostępny od ręki
Gwarantujemy najniższą cenę
2390 zł
W cenie projektu:
  • Tablica + dziennik budowy
  • 16 projektów ogrodowych
  • Darmowa wysyłka (kurier, paczkomat, pobranie)
  • 30 dni na zwrot
  • Pozwolenie na zmiany z podpisem i pieczęcią autora
22 299 20 00 (pn-nd 9.30 do 19.30)

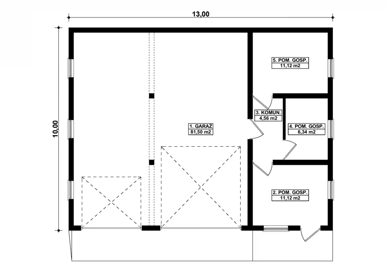
Rzuty gotowego projektu budynku G264

1. Garaż 81,50 m²
2. Pom. gospodarcze 11,12 m²
3. Komunikacja 4,56 m²
4. Pom. gospodarcze 6,34 m²
5. Pom. gospodarcze 11,12 m²

Zapoznaj się ze szczegółami projektu - pobierz bezpłatne rysunki do: G264

Wypełnij formularz i otrzymaj rysunki w pdf z dokładnymi wymiarami budynku i pomieszczeń (długość, szerokość, wysokość) dla projektu G264

Parametry Techniczne gotowego projektu domu G264

Pow. użytkowa 114.64 m²
Powierzchnia zabudowy 130 m²
Kondygnacje parterowy
Garaż 2 stanowiska
Technologia murowany
Obiekt inny
Wysokość budynku 5.75 m
Rodzaj dachu dwuspadowy
Obiekt inny (szczegóły) garaże
Kąt nachylenia dachu 25 °
Szerokość budynku 13 m
Długość budynku 10 m
Kalenica prostopadła do drogi
Kubatura 570 m³
Przestrzeń z pom. gospodarczym

Nasze prawdziwe opinie z Google

Opis projektu domu G264

Technologia wykonania:

  • Budynek wykonany w technologii tradycyjnej.
  • Ściany: murowane z bloczków z betonu komórkowego grubości 24cm i 12cm.
  • Bramy: o wymiarach 4,00x4,00m i 3,00x2,50m.
  • Słupy i podciągi: żelbetowe.
  • Więźba dachowa: dwuspadowa, drewniana, pokryta blachą trapezową.

Dodatki do projektu G264

Dodatki możesz kupić razem z projektem lub dokupić po czasie

[Planz] Tablica budowlana (0 zł)

[Planz] Dziennik budowy (0 zł)

[Planz] Wiertarka udarowa (0 zł)

[Planz] Zgoda na zmiany w projekcie (0 zł)

[Planz] Projekty architektury ogrodowej (0 zł)

[Planz] Charakterystyka energetyczna, tylko dla domów całorocznych (0 zł)

Wysyłka i płatność za projekt G264

Koszty wysyłki

bezpłatnie (0zł)

Formy płatności

przelew zwykły / PayNow
przy odbiorze

Czas oczekiwania

3-5 dni roboczych (jeśli projekt nie wymaga aktualizacji)

Podobne projekty do budynku G264

PRACOWNIA: Kup Projekt