22 299 20 00 (pn-nd 9.30 do 19.30)

Gotowy projekt budynku G252 (ID: 32389)

890 2025-12-23
G252 - 31.88m²
Możliwy dłuzszy czas realizacji
Gwarantujemy najniższą cenę
890 zł
W cenie projektu:
  • Tablica + dziennik budowy
  • 16 projektów ogrodowych
  • Darmowa wysyłka (kurier, paczkomat, pobranie)
  • 30 dni na zwrot
  • Pozwolenie na zmiany z podpisem i pieczęcią autora
22 299 20 00 (pn-nd 9.30 do 19.30)

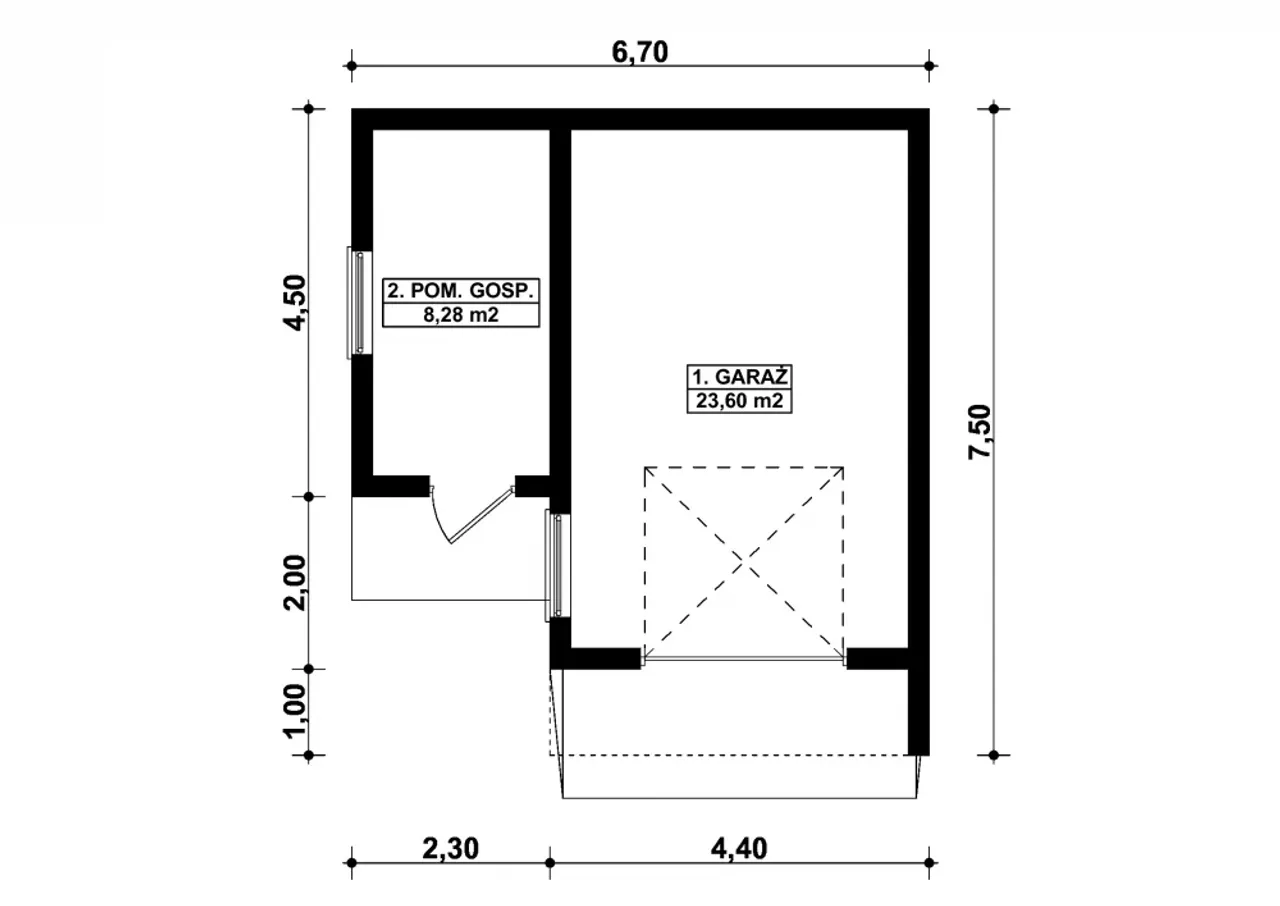
Rzuty gotowego projektu budynku G252

1. Garaż 23,60 m²
2. Pom. gospodarcze 8,28 m²

Zapoznaj się ze szczegółami projektu - pobierz bezpłatne rysunki do: G252

Wypełnij formularz i otrzymaj rysunki w pdf z dokładnymi wymiarami budynku i pomieszczeń (długość, szerokość, wysokość) dla projektu G252

Parametry Techniczne gotowego projektu domu G252

Pow. użytkowa 31.88 m²
Powierzchnia zabudowy 39.2 m²
Kondygnacje parterowy
Garaż 1 stanowisko
Technologia murowany
Obiekt inny
Wysokość budynku 3.4 m
Kalenica bez znaczenia
Wysokość pomieszczeń 2.5 m
Przestrzeń z pom. gospodarczym
Rodzaj dachu płaski
Szerokość budynku 6.7 m
Obiekt inny (szczegóły) garaże
Kąt nachylenia dachu 3 °
Długość budynku 7.5 m
Kubatura 138.8 m³

Nasze prawdziwe opinie z Google

Opis projektu domu G252

Technologia wykonania:

  • Budynek wykonany w technologii tradycyjnej.
  • Ściany: murowane z bloczków z betonu komórkowego grubości 24cm.
  • Brama: o wymiarach 2,50x2,20m.
  • Więźba dachowa: jednospadowa, drewniana, pokryta blachą trapezową.

Dodatki do projektu G252

Dodatki możesz kupić razem z projektem lub dokupić po czasie

[Planz] Tablica budowlana (0 zł)

[Planz] Dziennik budowy (0 zł)

[Planz] Wiertarka udarowa (0 zł)

[Planz] Zgoda na zmiany w projekcie (0 zł)

[Planz] Projekty architektury ogrodowej (0 zł)

[Planz] Charakterystyka energetyczna, tylko dla domów całorocznych (0 zł)

Wysyłka i płatność za projekt G252

Koszty wysyłki

bezpłatnie (0zł)

Formy płatności

przelew zwykły / PayNow
przy odbiorze

Czas oczekiwania

3-5 dni roboczych (jeśli projekt nie wymaga aktualizacji)

Podobne projekty do budynku G252

PRACOWNIA: Kup Projekt