22 299 20 00 (pn-nd 9.30 do 19.30)

Gotowy projekt budynku G247 (ID: 32204)

1690 2025-12-22
G247 - 144.83m²
Projekt dostępny od ręki
Gwarantujemy najniższą cenę
1690 zł
W cenie projektu:
  • Tablica + dziennik budowy
  • 16 projektów ogrodowych
  • Darmowa wysyłka (kurier, paczkomat, pobranie)
  • 30 dni na zwrot
  • Pozwolenie na zmiany z podpisem i pieczęcią autora
22 299 20 00 (pn-nd 9.30 do 19.30)

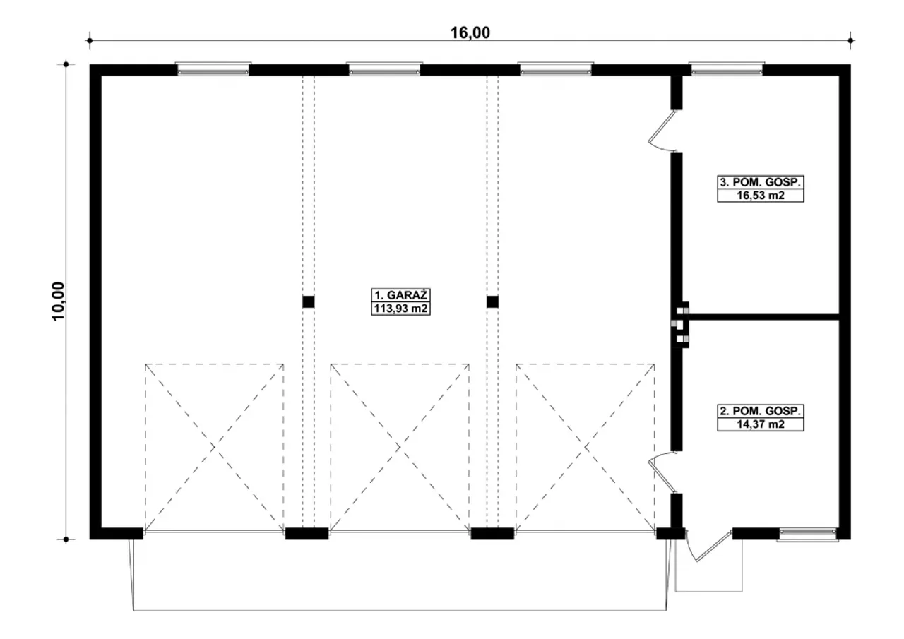
Rzuty gotowego projektu budynku G247

1. Garaż 113,93 m²
2. Pom. gospodarcze 14,37 m²
3. Pom. gospodarcze 16,53 m²

Zapoznaj się ze szczegółami projektu - pobierz bezpłatne rysunki do: G247

Wypełnij formularz i otrzymaj rysunki w pdf z dokładnymi wymiarami budynku i pomieszczeń (długość, szerokość, wysokość) dla projektu G247

Parametry Techniczne gotowego projektu domu G247

Pow. użytkowa 144.83 m²
Powierzchnia zabudowy 160 m²
Kondygnacje parterowy
Garaż wielostanowiskowy
Technologia murowany
Obiekt inny
Rodzaj dachu dwuspadowy
Obiekt inny (szczegóły) garaże
Kąt nachylenia dachu 30 °
Kalenica równoległa do drogi
Szerokość budynku 16 m
Przestrzeń z pom. gospodarczym
Długość budynku 10 m
Kubatura 978.6 m³

Nasze prawdziwe opinie z Google

Dodatki do projektu G247

Dodatki możesz kupić razem z projektem lub dokupić po czasie

[Planz] Tablica budowlana (0 zł)

[Planz] Dziennik budowy (0 zł)

[Planz] Wiertarka udarowa (0 zł)

[Planz] Zgoda na zmiany w projekcie (0 zł)

[Planz] Projekty architektury ogrodowej (0 zł)

[Planz] Charakterystyka energetyczna, tylko dla domów całorocznych (0 zł)

Wysyłka i płatność za projekt G247

Koszty wysyłki

bezpłatnie (0zł)

Formy płatności

przelew zwykły / PayNow
przy odbiorze

Czas oczekiwania

3-5 dni roboczych (jeśli projekt nie wymaga aktualizacji)

Podobne projekty do budynku G247

PRACOWNIA: Kup Projekt