22 299 20 00 (pn-nd 9.30 do 19.30)

Gotowy projekt budynku G238 (ID: 32196)

790 2025-12-23
G238 - 35.13m²
Projekt dostępny od ręki
Gwarantujemy najniższą cenę
790 zł
W cenie projektu:
  • Tablica + dziennik budowy
  • 16 projektów ogrodowych
  • Darmowa wysyłka (kurier, paczkomat, pobranie)
  • 30 dni na zwrot
  • Pozwolenie na zmiany z podpisem i pieczęcią autora
22 299 20 00 (pn-nd 9.30 do 19.30)

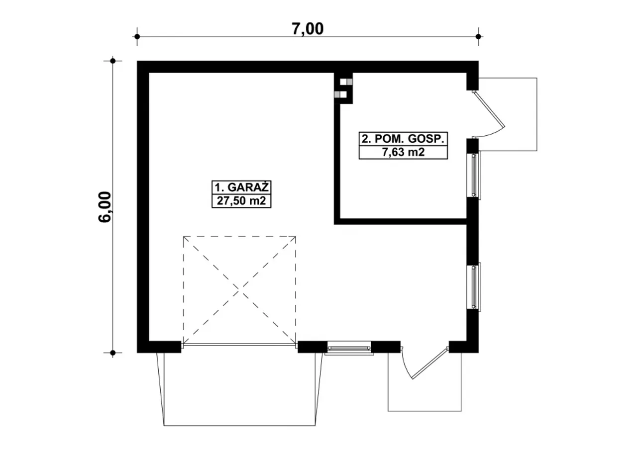
Rzuty gotowego projektu budynku G238

1. Garaż 27,50 m²
2. Pom. gospodarcze 7,63 m²

Zapoznaj się ze szczegółami projektu - pobierz bezpłatne rysunki do: G238

Wypełnij formularz i otrzymaj rysunki w pdf z dokładnymi wymiarami budynku i pomieszczeń (długość, szerokość, wysokość) dla projektu G238

Parametry Techniczne gotowego projektu domu G238

Pow. użytkowa 35.13 m²
Powierzchnia zabudowy 42 m²
Kondygnacje parterowy
Garaż 1 stanowisko
Technologia murowany
Obiekt inny
Rodzaj dachu dwuspadowy
Obiekt inny (szczegóły) garaże
Kąt nachylenia dachu 25 °
Kalenica prostopadła do drogi
Szerokość budynku 7 m
Przestrzeń z pom. gospodarczym
Długość budynku 6 m
Kubatura 150.1 m³

Nasze prawdziwe opinie z Google

Dodatki do projektu G238

Dodatki możesz kupić razem z projektem lub dokupić po czasie

[Planz] Tablica budowlana (0 zł)

[Planz] Dziennik budowy (0 zł)

[Planz] Wiertarka udarowa (0 zł)

[Planz] Zgoda na zmiany w projekcie (0 zł)

[Planz] Projekty architektury ogrodowej (0 zł)

[Planz] Charakterystyka energetyczna, tylko dla domów całorocznych (0 zł)

Wysyłka i płatność za projekt G238

Koszty wysyłki

bezpłatnie (0zł)

Formy płatności

przelew zwykły / PayNow
przy odbiorze

Czas oczekiwania

3-5 dni roboczych (jeśli projekt nie wymaga aktualizacji)

Podobne projekty do budynku G238

PRACOWNIA: Kup Projekt