22 299 20 00 (pn-nd 9.30 do 19.30)

Gotowy projekt budynku G234 (ID: 32193)

2390 2025-12-23
G234 - 128.91m²
Możliwy dłuzszy czas realizacji
Gwarantujemy najniższą cenę
2390 zł
W cenie projektu:
  • Tablica + dziennik budowy
  • 16 projektów ogrodowych
  • Darmowa wysyłka (kurier, paczkomat, pobranie)
  • 30 dni na zwrot
  • Pozwolenie na zmiany z podpisem i pieczęcią autora
22 299 20 00 (pn-nd 9.30 do 19.30)

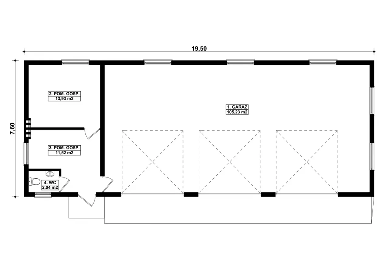
Rzuty gotowego projektu budynku G234

1. Garaż 105,23 m²
2. Pom. gospodarcze 13,93 m²
3. Pom. gospodarcze 11,52 m²
4. Wc 2,04 m²

Zapoznaj się ze szczegółami projektu - pobierz bezpłatne rysunki do: G234

Wypełnij formularz i otrzymaj rysunki w pdf z dokładnymi wymiarami budynku i pomieszczeń (długość, szerokość, wysokość) dla projektu G234

Parametry Techniczne gotowego projektu domu G234

Pow. użytkowa 128.91 m²
Powierzchnia zabudowy 148.2 m²
Kondygnacje parterowy
Garaż wielostanowiskowy
Technologia murowany
Obiekt inny
Szerokość budynku 19.5 m
Kalenica równoległa do drogi
Długość budynku 7.6 m
Przestrzeń z pom. gospodarczym
Kubatura 780 m³
Rodzaj dachu dwuspadowy
Obiekt inny (szczegóły) garaże
Kąt nachylenia dachu 25 °

Nasze prawdziwe opinie z Google

Dodatki do projektu G234

Dodatki możesz kupić razem z projektem lub dokupić po czasie

[Planz] Tablica budowlana (0 zł)

[Planz] Dziennik budowy (0 zł)

[Planz] Wiertarka udarowa (0 zł)

[Planz] Zgoda na zmiany w projekcie (0 zł)

[Planz] Projekty architektury ogrodowej (0 zł)

[Planz] Charakterystyka energetyczna, tylko dla domów całorocznych (0 zł)

Wysyłka i płatność za projekt G234

Koszty wysyłki

bezpłatnie (0zł)

Formy płatności

przelew zwykły / PayNow
przy odbiorze

Czas oczekiwania

3-5 dni roboczych (jeśli projekt nie wymaga aktualizacji)

Podobne projekty do budynku G234

PRACOWNIA: Kup Projekt