22 299 20 00 (pn-nd 9.30 do 19.30)

Gotowy projekt budynku G232 (ID: 32192)

1390 2025-12-23
G232 - 79.11m²
Projekt dostępny od ręki
Gwarantujemy najniższą cenę
1390 zł
W cenie projektu:
  • Tablica + dziennik budowy
  • 16 projektów ogrodowych
  • Darmowa wysyłka (kurier, paczkomat, pobranie)
  • 30 dni na zwrot
  • Pozwolenie na zmiany z podpisem i pieczęcią autora
22 299 20 00 (pn-nd 9.30 do 19.30)

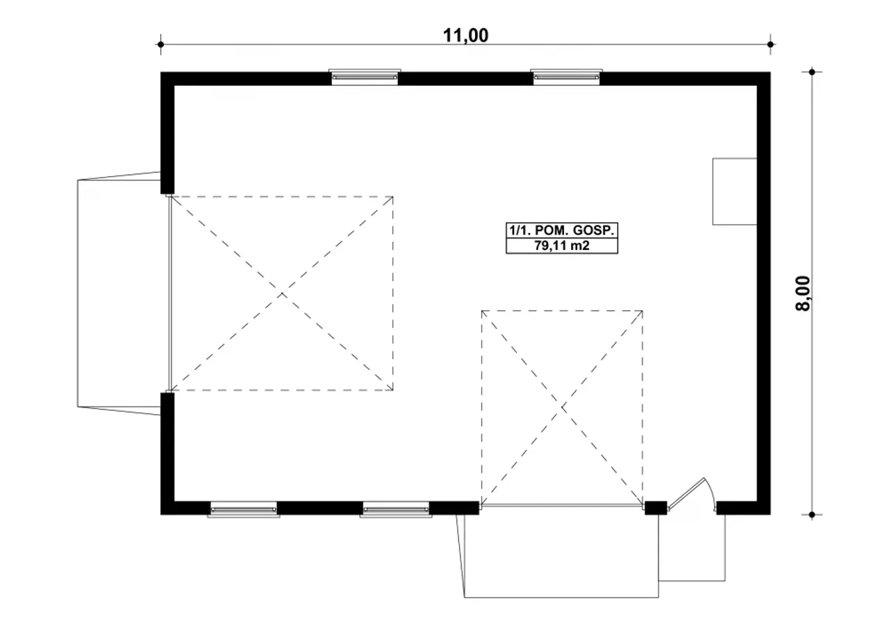
Rzuty gotowego projektu budynku G232

1. Pom. gospodarcze 79,11 m²
1. Piwnica 5,04 m²

Zapoznaj się ze szczegółami projektu - pobierz bezpłatne rysunki do: G232

Wypełnij formularz i otrzymaj rysunki w pdf z dokładnymi wymiarami budynku i pomieszczeń (długość, szerokość, wysokość) dla projektu G232

Parametry Techniczne gotowego projektu domu G232

Pow. użytkowa 79.11 m²
Powierzchnia zabudowy 88 m²
Kondygnacje parterowy
Garaż 2 stanowiska
Technologia murowany
Obiekt inny
Rodzaj dachu dwuspadowy
Obiekt inny (szczegóły) garaże
Kąt nachylenia dachu 25 °
Kalenica prostopadła do drogi
Szerokość budynku 11 m
Długość budynku 8 m
Kubatura 522.4 m³

Nasze prawdziwe opinie z Google

Dodatki do projektu G232

Dodatki możesz kupić razem z projektem lub dokupić po czasie

[Planz] Tablica budowlana (0 zł)

[Planz] Dziennik budowy (0 zł)

[Planz] Wiertarka udarowa (0 zł)

[Planz] Zgoda na zmiany w projekcie (0 zł)

[Planz] Projekty architektury ogrodowej (0 zł)

[Planz] Charakterystyka energetyczna, tylko dla domów całorocznych (0 zł)

Wysyłka i płatność za projekt G232

Koszty wysyłki

bezpłatnie (0zł)

Formy płatności

przelew zwykły / PayNow
przy odbiorze

Czas oczekiwania

3-5 dni roboczych (jeśli projekt nie wymaga aktualizacji)

Podobne projekty do budynku G232

PRACOWNIA: Kup Projekt