22 299 20 00 (pn-nd 9.30 do 19.30)

Gotowy projekt budynku G217 (ID: 32176)

890 2025-12-22
G217 - 58.12m²
Możliwy dłuzszy czas realizacji
Gwarantujemy najniższą cenę
890 zł
W cenie projektu:
  • Tablica + dziennik budowy
  • 16 projektów ogrodowych
  • Darmowa wysyłka (kurier, paczkomat, pobranie)
  • 30 dni na zwrot
  • Pozwolenie na zmiany z podpisem i pieczęcią autora
22 299 20 00 (pn-nd 9.30 do 19.30)

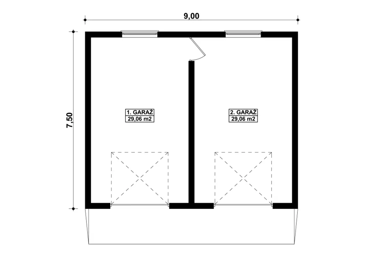
Rzuty gotowego projektu budynku G217

1. Garaż 29,06 m²
2. Garaż 29,06 m²

Zapoznaj się ze szczegółami projektu - pobierz bezpłatne rysunki do: G217

Wypełnij formularz i otrzymaj rysunki w pdf z dokładnymi wymiarami budynku i pomieszczeń (długość, szerokość, wysokość) dla projektu G217

Parametry Techniczne gotowego projektu domu G217

Pow. użytkowa 58.12 m²
Powierzchnia zabudowy 67.5 m²
Kondygnacje parterowy
Garaż 2 stanowiska
Technologia murowany
Obiekt inny
Wysokość budynku 4.9 m
Rodzaj dachu wielospadowy
Obiekt inny (szczegóły) garaże
Kąt nachylenia dachu 30 °
Szerokość budynku 9 m
Długość budynku 7.5 m
Kalenica równoległa do drogi
Kubatura 246.9 m³

Nasze prawdziwe opinie z Google

Dodatki do projektu G217

Dodatki możesz kupić razem z projektem lub dokupić po czasie

[Planz] Tablica budowlana (0 zł)

[Planz] Dziennik budowy (0 zł)

[Planz] Wiertarka udarowa (0 zł)

[Planz] Zgoda na zmiany w projekcie (0 zł)

[Planz] Projekty architektury ogrodowej (0 zł)

[Planz] Charakterystyka energetyczna, tylko dla domów całorocznych (0 zł)

Wysyłka i płatność za projekt G217

Koszty wysyłki

bezpłatnie (0zł)

Formy płatności

przelew zwykły / PayNow
przy odbiorze

Czas oczekiwania

3-5 dni roboczych (jeśli projekt nie wymaga aktualizacji)

Podobne projekty do budynku G217

PRACOWNIA: Kup Projekt