22 299 20 00 (pn-nd 9.30 do 19.30)

Gotowy projekt budynku G21 (ID: 31094)

849 2025-12-23
G21 - 21.19m²
Możliwy dłuzszy czas realizacji
Gwarantujemy najniższą cenę
849 zł
W cenie projektu:
  • Tablica + dziennik budowy
  • 16 projektów ogrodowych
  • Darmowa wysyłka (kurier, paczkomat, pobranie)
  • 30 dni na zwrot
  • Pozwolenie na zmiany z podpisem i pieczęcią autora
22 299 20 00 (pn-nd 9.30 do 19.30)

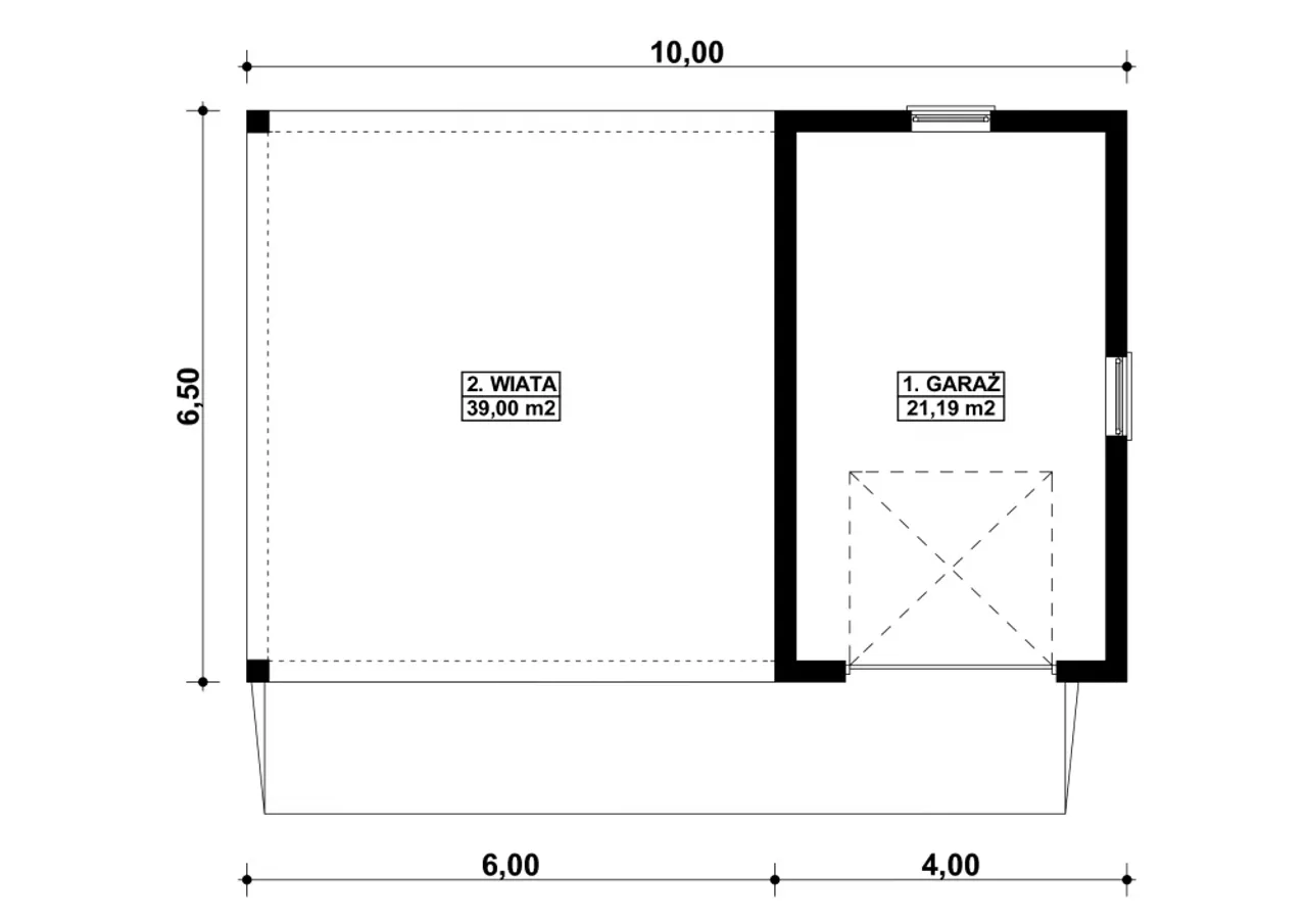
Rzuty gotowego projektu budynku G21

1. Garaż 21,19 m²
2. Wiata 39,00 m²

Zapoznaj się ze szczegółami projektu - pobierz bezpłatne rysunki do: G21

Wypełnij formularz i otrzymaj rysunki w pdf z dokładnymi wymiarami budynku i pomieszczeń (długość, szerokość, wysokość) dla projektu G21

Parametry Techniczne gotowego projektu domu G21

Pow. użytkowa 21.19 m²
Powierzchnia zabudowy 65 m²
Kondygnacje parterowy
Garaż 1 stanowisko
Technologia murowany
Obiekt inny
Rodzaj dachu dwuspadowy
Obiekt inny (szczegóły) garaże
Kąt nachylenia dachu 25 °
Szerokość budynku 6 m
Długość budynku 10 m
Kubatura 235.4 m³
Kalenica równoległa do drogi
Wysokość budynku 2.5 m
Przestrzeń z wiatą/altaną
Wysokość pomieszczeń 2.5 m

Nasze prawdziwe opinie z Google

Dodatki do projektu G21

Dodatki możesz kupić razem z projektem lub dokupić po czasie

[Planz] Tablica budowlana (0 zł)

[Planz] Dziennik budowy (0 zł)

[Planz] Wiertarka udarowa (0 zł)

[Planz] Zgoda na zmiany w projekcie (0 zł)

[Planz] Projekty architektury ogrodowej (0 zł)

[Planz] Charakterystyka energetyczna, tylko dla domów całorocznych (0 zł)

Wysyłka i płatność za projekt G21

Koszty wysyłki

bezpłatnie (0zł)

Formy płatności

przelew zwykły / PayNow
przy odbiorze

Czas oczekiwania

3-5 dni roboczych (jeśli projekt nie wymaga aktualizacji)

Podobne projekty do budynku G21

PRACOWNIA: Kup Projekt