22 299 20 00 (pn-nd 9.30 do 19.30)

Gotowy projekt budynku G1a (ID: 32845)

990 2025-12-23
G1a - 53.6m²
Projekt dostępny od ręki
Gwarantujemy najniższą cenę
990 zł
W cenie projektu:
  • Tablica + dziennik budowy
  • 16 projektów ogrodowych
  • Darmowa wysyłka (kurier, paczkomat, pobranie)
  • 30 dni na zwrot
  • Pozwolenie na zmiany z podpisem i pieczęcią autora
22 299 20 00 (pn-nd 9.30 do 19.30)

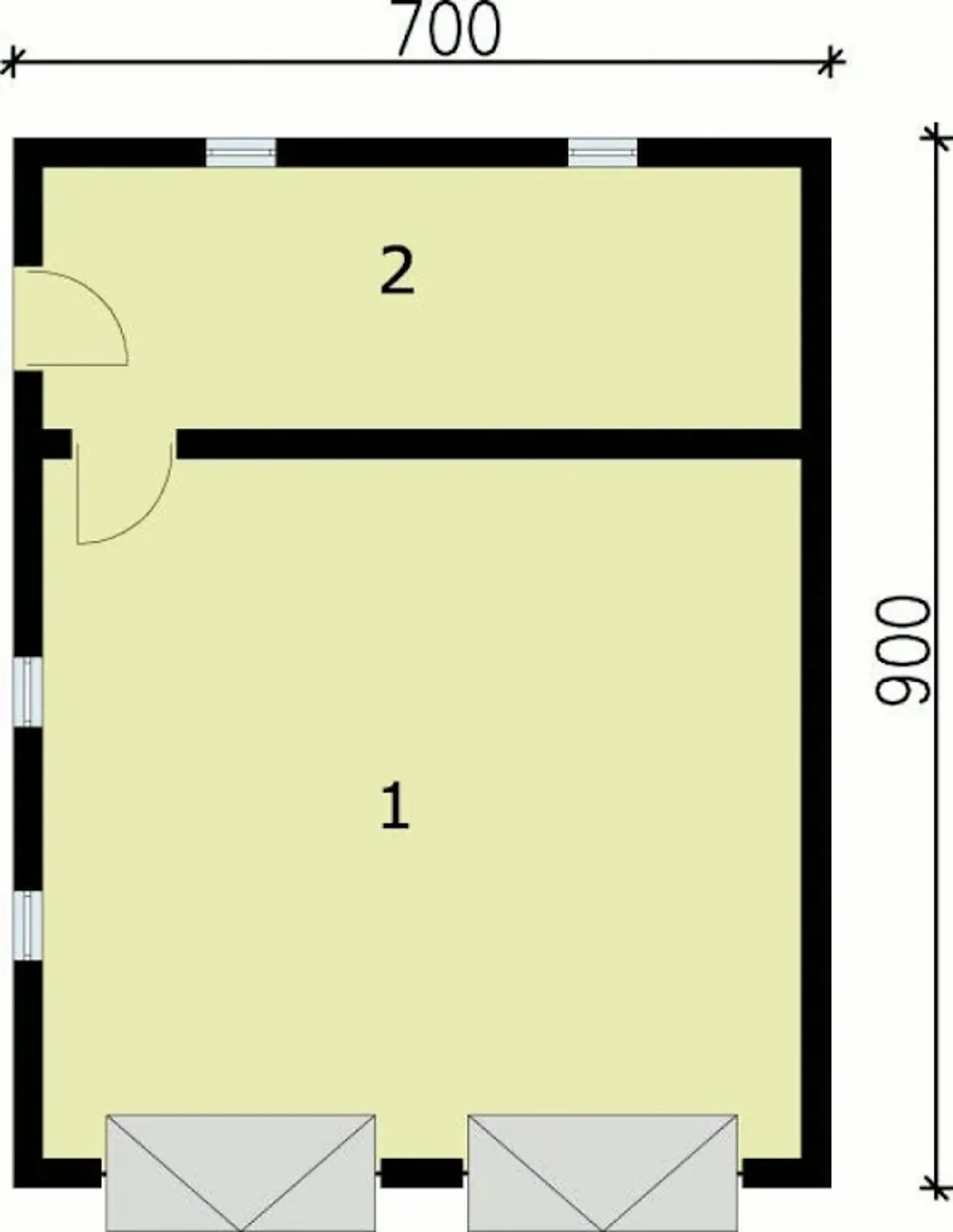
Rzuty gotowego projektu budynku G1a

1. Garaż 39,00 m²
2. Pom. gosp. 14,60 m²

Zapoznaj się ze szczegółami projektu - pobierz bezpłatne rysunki do: G1a

Wypełnij formularz i otrzymaj rysunki w pdf z dokładnymi wymiarami budynku i pomieszczeń (długość, szerokość, wysokość) dla projektu G1a

Parametry Techniczne gotowego projektu domu G1a

Pow. użytkowa 53.6 m²
Powierzchnia zabudowy 63 m²
Kondygnacje parterowy
Garaż 2 stanowiska
Technologia murowany
Obiekt inny
Wysokość budynku 5.15 m
Rodzaj dachu dwuspadowy
Obiekt inny (szczegóły) garaże
Kąt nachylenia dachu 30 °
Szerokość budynku 9 m
Kalenica prostopadła do drogi
Długość budynku 7 m
Przestrzeń z pom. gospodarczym
Kubatura 258.12 m³

Nasze prawdziwe opinie z Google

Dodatki do projektu G1a

Dodatki możesz kupić razem z projektem lub dokupić po czasie

[Planz] Tablica budowlana (0 zł)

[Planz] Dziennik budowy (0 zł)

[Planz] Wiertarka udarowa (0 zł)

[Planz] Zgoda na zmiany w projekcie (0 zł)

[Planz] Projekty architektury ogrodowej (0 zł)

[Planz] Charakterystyka energetyczna, tylko dla domów całorocznych (0 zł)

Wysyłka i płatność za projekt G1a

Koszty wysyłki

bezpłatnie (0zł)

Formy płatności

przelew zwykły / PayNow
przy odbiorze

Czas oczekiwania

3-5 dni roboczych (jeśli projekt nie wymaga aktualizacji)

Wersje gotowego projektu domu G1a

990 zł

G1a szkielet drewniany

powierzchnia 55.77 m²
technologia szkielet/drewniany
stanowisk w garażu 2 stanowiska
kondygnacja parterowy
Zobacz projekt
990 zł

G1a 2 szkielet drewniany, garaż dwustanowiskowy z pomieszczeniem gospodarczym

powierzchnia 55.12 m²
technologia szkielet/drewniany
stanowisk w garażu 2 stanowiska
kondygnacja parterowy
Zobacz projekt

Podobne projekty do budynku G1a

PRACOWNIA: PROARTE