22 299 20 00 (pn-nd 9.30 do 19.30)

Gotowy projekt budynku G191 (ID: 32170)

2490 2025-12-22
G191 - 42.16m²
Możliwy dłuzszy czas realizacji
Gwarantujemy najniższą cenę
2490 zł
W cenie projektu:
  • Tablica + dziennik budowy
  • 16 projektów ogrodowych
  • Darmowa wysyłka (kurier, paczkomat, pobranie)
  • 30 dni na zwrot
  • Pozwolenie na zmiany z podpisem i pieczęcią autora
22 299 20 00 (pn-nd 9.30 do 19.30)

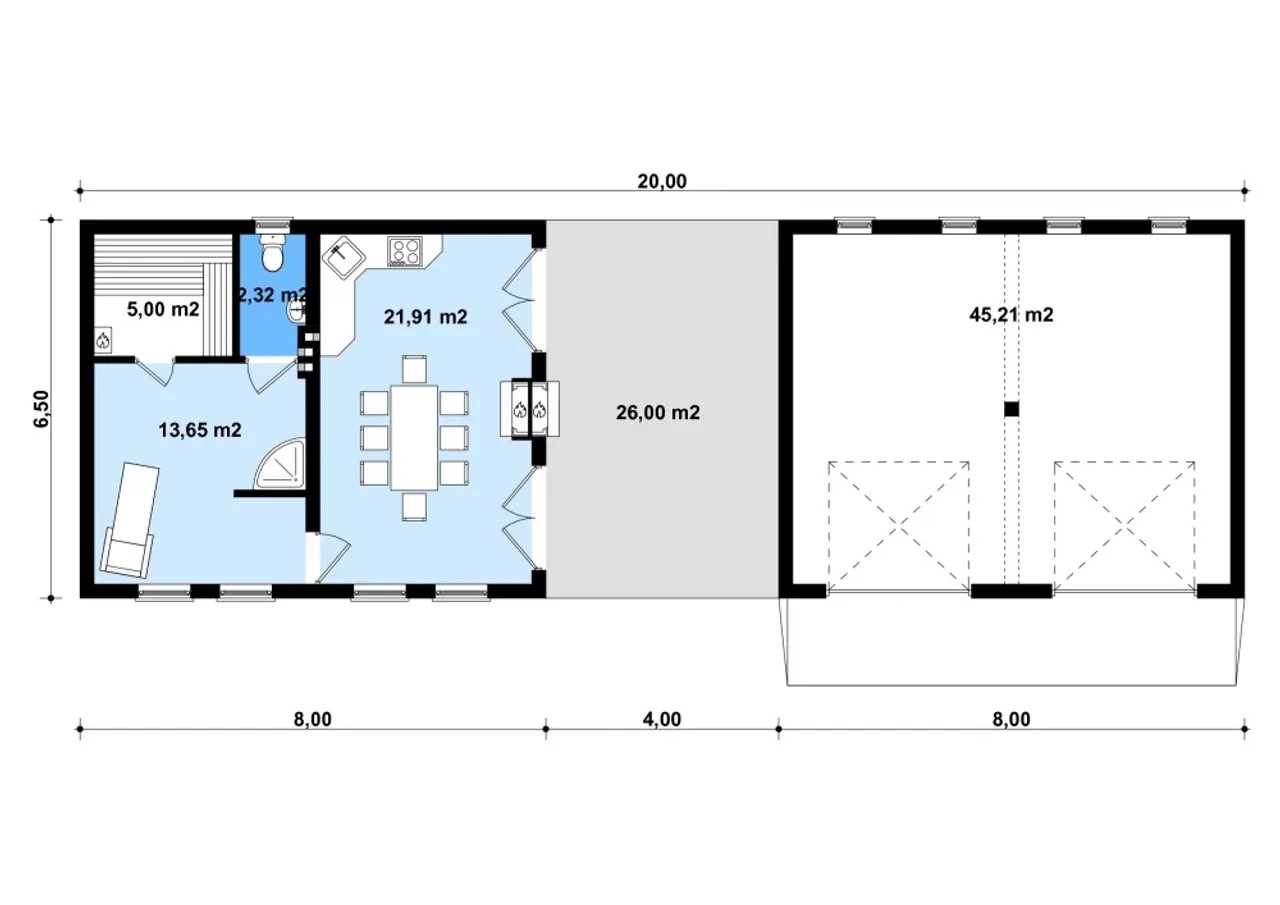
Rzuty gotowego projektu budynku G191

1. Salon z aneksem kuchennym 21,91 m²
2. łazienka 13,65 m²
3. Sauna 5,00 m²
4. Wc 2,32 m²
5. Wiata 26,00 m²
6. Garaż 45,21 m²

Zapoznaj się ze szczegółami projektu - pobierz bezpłatne rysunki do: G191

Wypełnij formularz i otrzymaj rysunki w pdf z dokładnymi wymiarami budynku i pomieszczeń (długość, szerokość, wysokość) dla projektu G191

Parametry Techniczne gotowego projektu domu G191

Pow. użytkowa 42.16 m²
Powierzchnia zabudowy 104 m²
Kondygnacje parterowy
Garaż 2 stanowiska
Technologia murowany
Obiekt inny
Wysokość budynku 3.35 m
Rodzaj dachu płaski
Obiekt inny (szczegóły) garaże
Kąt nachylenia dachu 3 °
Szerokość budynku 20 m
Długość budynku 6.5 m
Kalenica prostopadła do drogi
Kubatura 424 m³
Przestrzeń z wiatą/altaną

Nasze prawdziwe opinie z Google

Dodatki do projektu G191

Dodatki możesz kupić razem z projektem lub dokupić po czasie

[Planz] Tablica budowlana (0 zł)

[Planz] Dziennik budowy (0 zł)

[Planz] Wiertarka udarowa (0 zł)

[Planz] Zgoda na zmiany w projekcie (0 zł)

[Planz] Projekty architektury ogrodowej (0 zł)

[Planz] Charakterystyka energetyczna, tylko dla domów całorocznych (0 zł)

Wysyłka i płatność za projekt G191

Koszty wysyłki

bezpłatnie (0zł)

Formy płatności

przelew zwykły / PayNow
przy odbiorze

Czas oczekiwania

3-5 dni roboczych (jeśli projekt nie wymaga aktualizacji)

Podobne projekty do budynku G191

699 zł

GP4 garaż dostawiany dwustanowiskowy

powierzchnia 34.5 m²
technologia murowany
stanowisk w garażu 2 stanowiska
kondygnacja parterowy
Zobacz projekt
TANIEJ O 350 zł
1299 zł 949 zł

MS-G4

powierzchnia 43.2 m²
technologia murowany
stanowisk w garażu 2 stanowiska
kondygnacja parterowy
Zobacz projekt
PRACOWNIA: Kup Projekt