22 299 20 00 (pn-nd 9.30 do 19.30)

Gotowy projekt budynku G188 (ID: 31920)

890 2025-12-23
G188 - 33.51m²
Projekt dostępny od ręki
Gwarantujemy najniższą cenę
890 zł
W cenie projektu:
  • Tablica + dziennik budowy
  • 16 projektów ogrodowych
  • Darmowa wysyłka (kurier, paczkomat, pobranie)
  • 30 dni na zwrot
  • Pozwolenie na zmiany z podpisem i pieczęcią autora
22 299 20 00 (pn-nd 9.30 do 19.30)

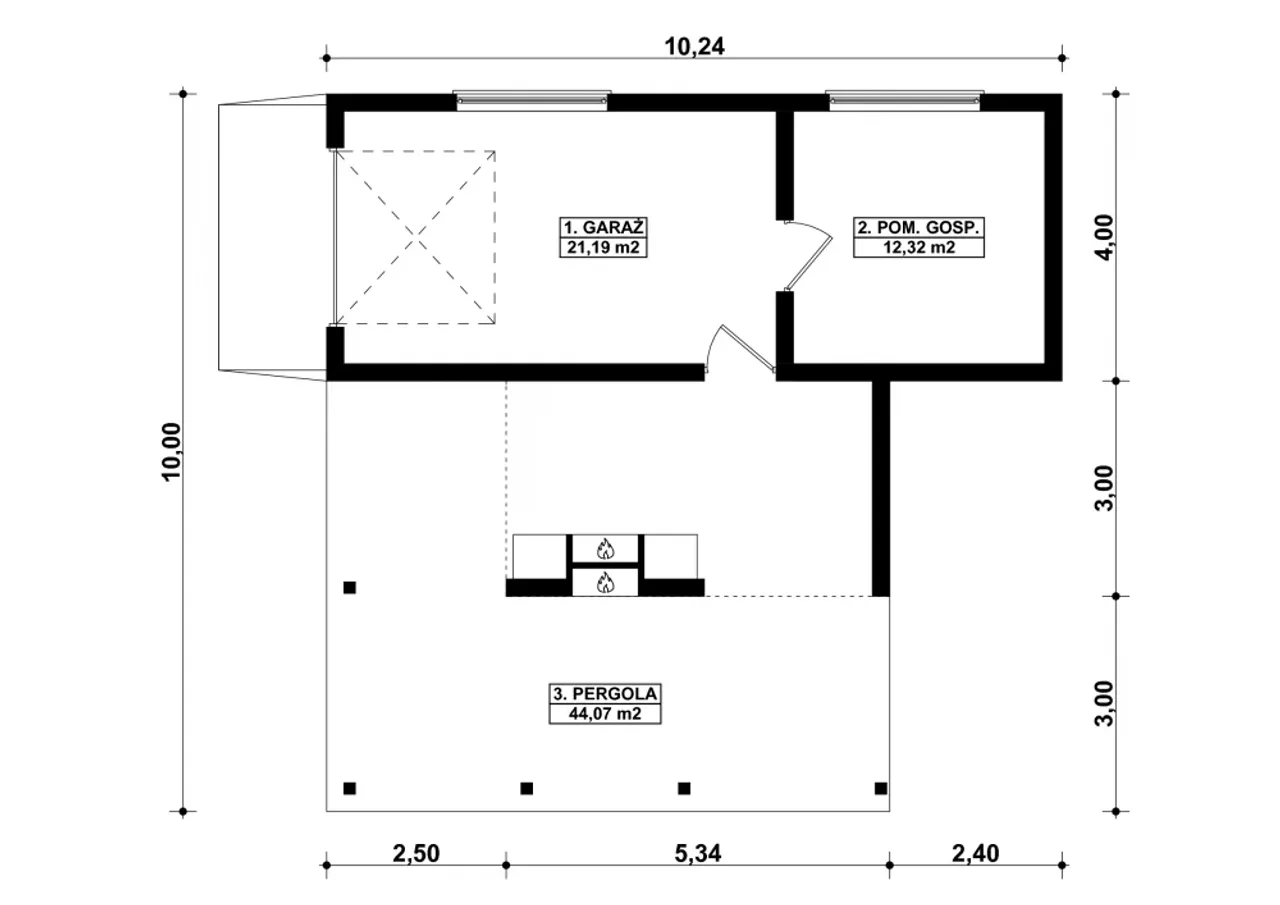
Rzuty gotowego projektu budynku G188

1. Garaż 21,19 m²
2. Pom. gospodarcze 12,32 m²
3. Pergola 44,07 m²

Zapoznaj się ze szczegółami projektu - pobierz bezpłatne rysunki do: G188

Wypełnij formularz i otrzymaj rysunki w pdf z dokładnymi wymiarami budynku i pomieszczeń (długość, szerokość, wysokość) dla projektu G188

Parametry Techniczne gotowego projektu domu G188

Pow. użytkowa 33.51 m²
Powierzchnia zabudowy 56.98 m²
Kondygnacje parterowy
Garaż 1 stanowisko
Technologia murowany
Obiekt inny
Wysokość budynku 3.77 m
Rodzaj dachu dwuspadowy
Obiekt inny (szczegóły) garaże
Kąt nachylenia dachu 25 °
Szerokość budynku 10.24 m
Kalenica prostopadła do drogi
Długość budynku 10 m
Przestrzeń z pom. gospodarczym, z wiatą/altaną
Kubatura 181.8 m³

Nasze prawdziwe opinie z Google

Dodatki do projektu G188

Dodatki możesz kupić razem z projektem lub dokupić po czasie

[Planz] Tablica budowlana (0 zł)

[Planz] Dziennik budowy (0 zł)

[Planz] Wiertarka udarowa (0 zł)

[Planz] Zgoda na zmiany w projekcie (0 zł)

[Planz] Projekty architektury ogrodowej (0 zł)

[Planz] Charakterystyka energetyczna, tylko dla domów całorocznych (0 zł)

Wysyłka i płatność za projekt G188

Koszty wysyłki

bezpłatnie (0zł)

Formy płatności

przelew zwykły / PayNow
przy odbiorze

Czas oczekiwania

3-5 dni roboczych (jeśli projekt nie wymaga aktualizacji)

Podobne projekty do budynku G188

PRACOWNIA: Kup Projekt