G202 - Budynek rekreacyjny z sauną



Wypełnij formularz i otrzymaj rysunki w pdf z dokładnymi wymiarami budynku i pomieszczeń (długość, szerokość, wysokość) dla projektu G183 - Budynek rekreacyjny
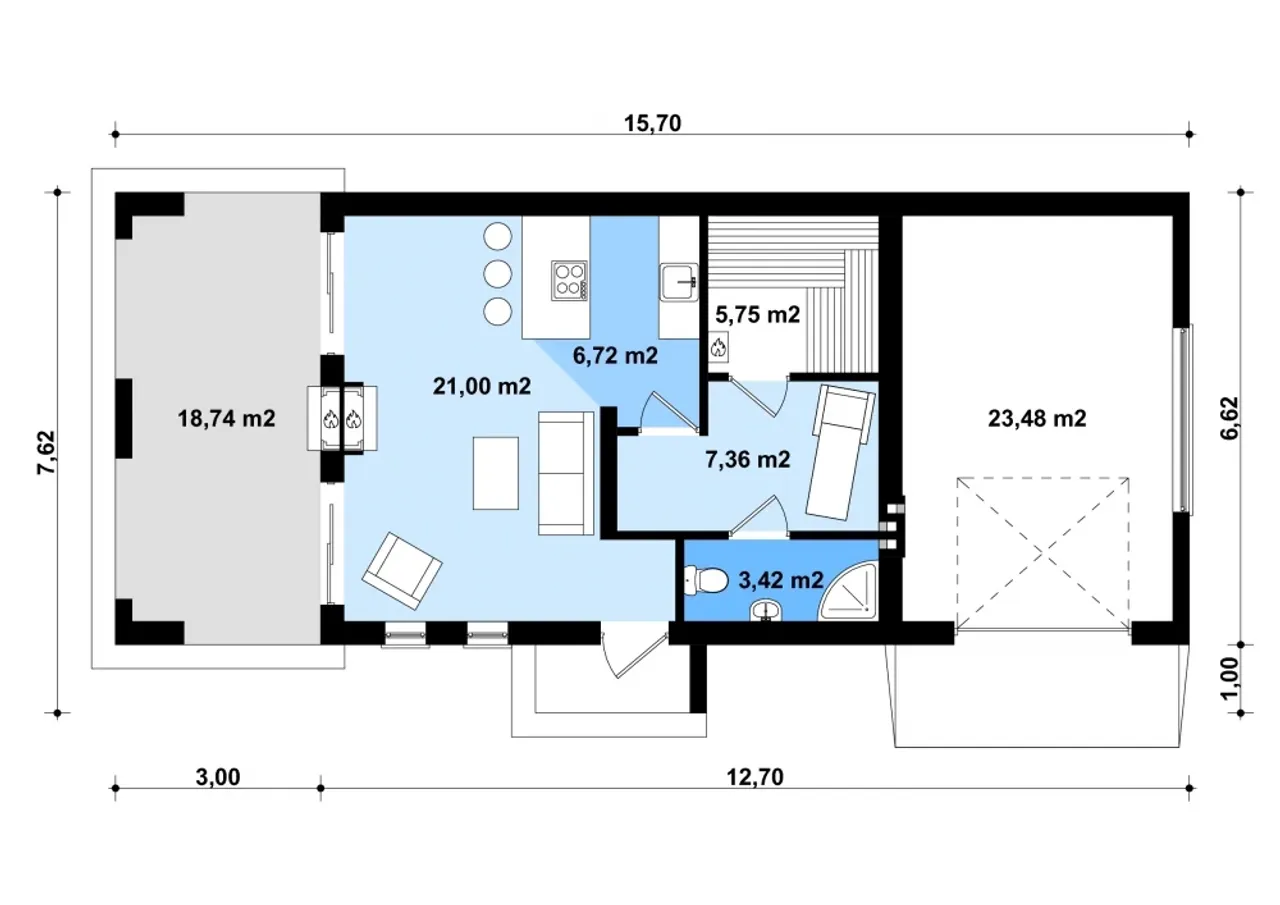
Pow. użytkowa 39.58 m² |
Powierzchnia zabudowy 102.98 m² |
Kondygnacje parterowy |
Garaż 1 stanowisko |
Technologia murowany |
Obiekt dom |
Typ domu letniskowy |
Kąt nachylenia dachu 3 ° |
Szerokość budynku 22.02 m |
Rodzaj garażu w bryle |
Długość budynku 8 m |
Rodzaj dachu płaski |
Kominek kominek w projekcie |
Kubatura 330.2 m³ |
Taras z tarasem |
Wysokość budynku 3.27 m |
Piwnica bez podpiwniczenia |
Styl budynku nowoczesny |
Kalenica bez znaczenia |
Koszty budowy tylko z kosztorysem |
Pow. użytkowa 39.58 m² |
Kondygnacje parterowy |
Technologia murowany |
Typ domu letniskowy |
Szerokość budynku 22.02 m |
Długość budynku 8 m |
Kominek kominek w projekcie |
Taras z tarasem |
Piwnica bez podpiwniczenia |
Kalenica bez znaczenia |
Powierzchnia zabudowy 102.98 m² |
Garaż 1 stanowisko |
Obiekt dom |
Kąt nachylenia dachu 3 ° |
Rodzaj garażu w bryle |
Rodzaj dachu płaski |
Kubatura 330.2 m³ |
Wysokość budynku 3.27 m |
Styl budynku nowoczesny |
Koszty budowy tylko z kosztorysem |
Kupując projekt w technologii murowanej powinieneś budować dom murowany. Zupełna zmiana technologii na szkieletową wymaga przeprojektowania całego budynku ( zmieniają się obciążenia, fundamenty, konstrukcja dachu). Wydamy zgodę na takie przeprojektowanie jednak wiążę się to z dużymi kosztami. Istnieją firmy wykonawcze, które podejmują się zmiany technologii budowy bezpłatnie przy skorzystaniu z ich usług wykonawczych. Zdarza się, że pracownia architektoniczna przygotowuje warianty konkretnego projektu przewidując także inne technologie. Prosimy o sprawdzenie czy istnieje poszukiwana wersja projektu, w zakładce - warianty projektu.
Zwężenie/poszerzenie budynku* to nic innego jak zmiana w projekcie. Istnieje możliwość wprowadzenia takich zmian, we własnym zakresie (podczas adaptacji). *zwężenie/poszerzenie budynku nie powinno stanowić problemu w przypadku domów o dachu dwuspadowym jeśli wiąże się to z wydłużeniem/skróceniem kalenicy dachu.
Poznaj praktyczne porady ekspertów, które ułatwią Ci każdy etap budowy i od wyboru wymarzonego domu po jego wykończenie. Zyskaj pewność, że podejmujesz najlepsze decyzje dzięki sprawdzonym wskazówkom od specjalistów z planz.pl
Wycena szacunkowa, w kwotach netto, nie zawiera instalacji.
bezpłatnie (0zł)
przelew zwykły / PayNow
przy odbiorze
3-5 dni roboczych (jeśli projekt nie wymaga aktualizacji)
Wybierz wygodny dla Ciebie czas kontaktu z naszym Doradcą Technicznym.