22 299 20 00 (pn-nd 9.30 do 19.30)

Gotowy projekt budynku G175 (ID: 31911)

790 2025-12-23
G175 - 36.52m²
Możliwy dłuzszy czas realizacji
Gwarantujemy najniższą cenę
790 zł
W cenie projektu:
  • Tablica + dziennik budowy
  • 16 projektów ogrodowych
  • Darmowa wysyłka (kurier, paczkomat, pobranie)
  • 30 dni na zwrot
  • Pozwolenie na zmiany z podpisem i pieczęcią autora
22 299 20 00 (pn-nd 9.30 do 19.30)

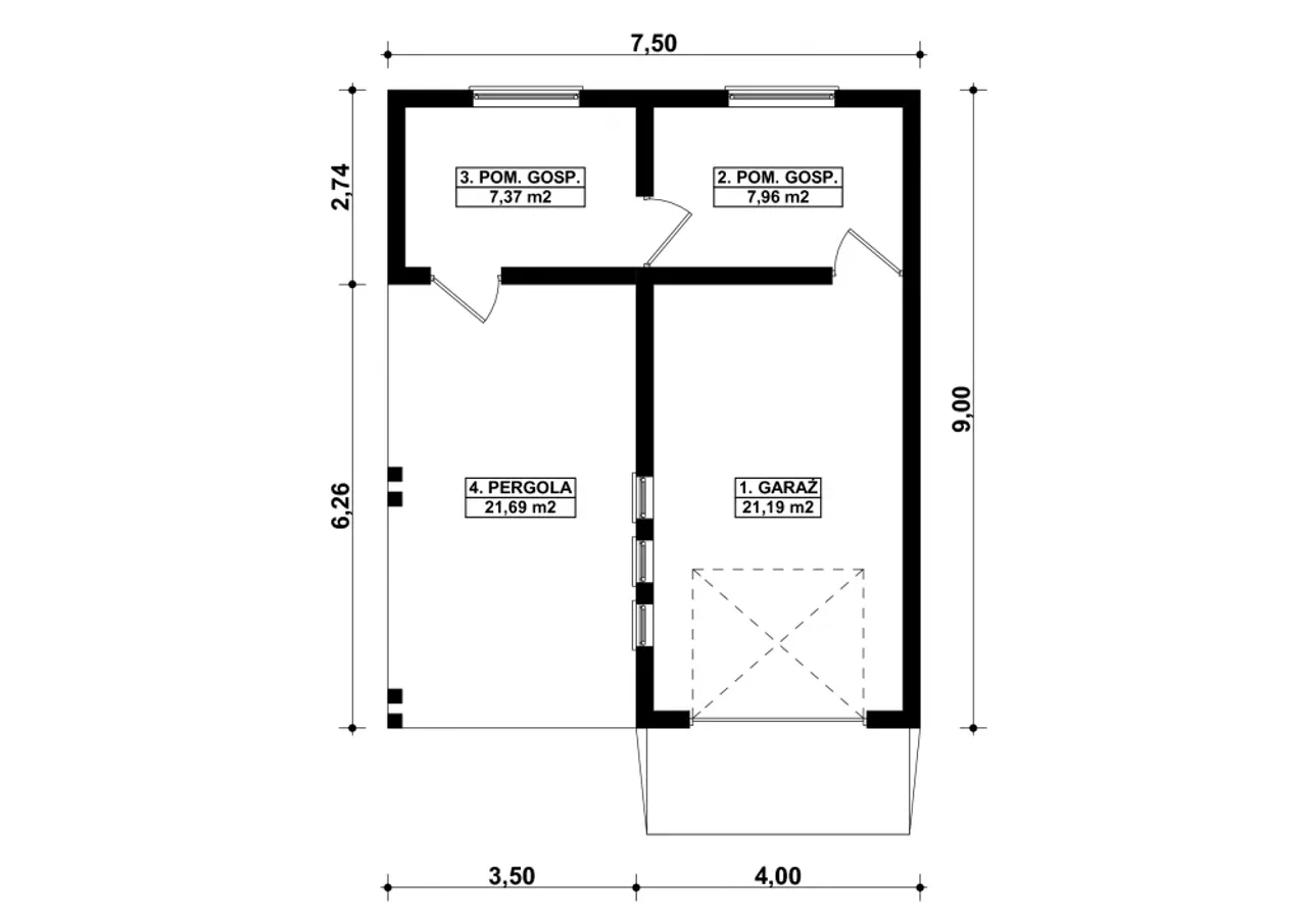
Rzuty gotowego projektu budynku G175

1. Garaż 21,19 m²
2. Pom. gospodarcze 7,96 m²
3. Pom. gospodarcze 7,37 m²
4. Pergola 21,69 m²

Zapoznaj się ze szczegółami projektu - pobierz bezpłatne rysunki do: G175

Wypełnij formularz i otrzymaj rysunki w pdf z dokładnymi wymiarami budynku i pomieszczeń (długość, szerokość, wysokość) dla projektu G175

Parametry Techniczne gotowego projektu domu G175

Pow. użytkowa 36.52 m²
Powierzchnia zabudowy 45.59 m²
Kondygnacje parterowy
Garaż 1 stanowisko
Technologia murowany
Obiekt inny
Wysokość budynku 3.45 m
Rodzaj dachu płaski
Obiekt inny (szczegóły) garaże
Kąt nachylenia dachu 3 °
Szerokość budynku 7.5 m
Długość budynku 9 m
Kalenica równoległa do drogi
Kubatura 143.2 m³
Przestrzeń z pom. gospodarczym, z wiatą/altaną

Nasze prawdziwe opinie z Google

Dodatki do projektu G175

Dodatki możesz kupić razem z projektem lub dokupić po czasie

[Planz] Tablica budowlana (0 zł)

[Planz] Dziennik budowy (0 zł)

[Planz] Wiertarka udarowa (0 zł)

[Planz] Zgoda na zmiany w projekcie (0 zł)

[Planz] Projekty architektury ogrodowej (0 zł)

[Planz] Charakterystyka energetyczna, tylko dla domów całorocznych (0 zł)

Wysyłka i płatność za projekt G175

Koszty wysyłki

bezpłatnie (0zł)

Formy płatności

przelew zwykły / PayNow
przy odbiorze

Czas oczekiwania

3-5 dni roboczych (jeśli projekt nie wymaga aktualizacji)

Podobne projekty do budynku G175

PRACOWNIA: Kup Projekt