22 299 20 00 (pn-nd 9.30 do 19.30)

Gotowy projekt budynku G164 (ID: 31896)

1950 2025-12-23
G164 - 68.58m²
Możliwy dłuzszy czas realizacji
Gwarantujemy najniższą cenę
1950 zł
W cenie projektu:
  • Tablica + dziennik budowy
  • 16 projektów ogrodowych
  • Darmowa wysyłka (kurier, paczkomat, pobranie)
  • 30 dni na zwrot
  • Pozwolenie na zmiany z podpisem i pieczęcią autora
22 299 20 00 (pn-nd 9.30 do 19.30)

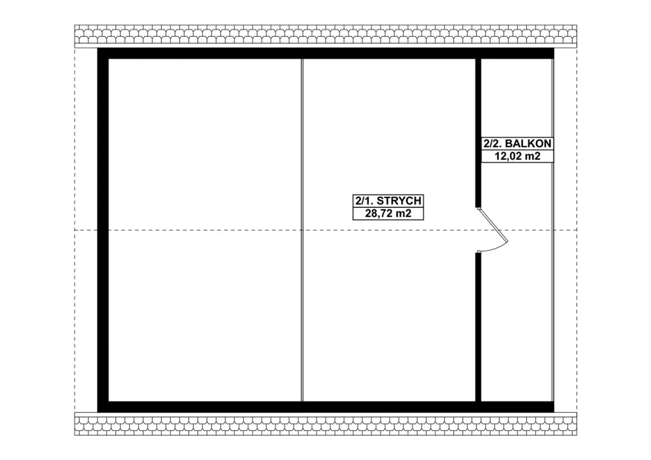
Rzuty gotowego projektu budynku G164

1. Garaż 31,73 m²
2. Pom. gospodarcze 18,57 m²
3. Pom. gospodarcze 9,14 m²
4. Pom. gospodarcze 9,14 m²
1. Strych 28,72 m²

Zapoznaj się ze szczegółami projektu - pobierz bezpłatne rysunki do: G164

Wypełnij formularz i otrzymaj rysunki w pdf z dokładnymi wymiarami budynku i pomieszczeń (długość, szerokość, wysokość) dla projektu G164

Parametry Techniczne gotowego projektu domu G164

Pow. użytkowa 68.58 m²
Powierzchnia zabudowy 80 m²
Kondygnacje parterowy+poddasze
Garaż 2 stanowiska
Technologia murowany
Obiekt inny
Kubatura 430.5 m³
Przestrzeń z pom. gospodarczym
Wysokość budynku 6.16 m
Rodzaj dachu dwuspadowy
Obiekt inny (szczegóły) garaże
Kąt nachylenia dachu 25 °
Szerokość budynku 10 m
Długość budynku 8 m
Kalenica równoległa do drogi

Nasze prawdziwe opinie z Google

Dodatki do projektu G164

Dodatki możesz kupić razem z projektem lub dokupić po czasie

[Planz] Tablica budowlana (0 zł)

[Planz] Dziennik budowy (0 zł)

[Planz] Wiertarka udarowa (0 zł)

[Planz] Zgoda na zmiany w projekcie (0 zł)

[Planz] Projekty architektury ogrodowej (0 zł)

[Planz] Charakterystyka energetyczna, tylko dla domów całorocznych (0 zł)

Wysyłka i płatność za projekt G164

Koszty wysyłki

bezpłatnie (0zł)

Formy płatności

przelew zwykły / PayNow
przy odbiorze

Czas oczekiwania

3-5 dni roboczych (jeśli projekt nie wymaga aktualizacji)

Podobne projekty do budynku G164

PRACOWNIA: Kup Projekt