22 299 20 00 (pn-nd 9.30 do 19.30)

Gotowy projekt budynku G160 (ID: 31893)

1190 2025-12-23
G160 - 31.67m²
Możliwy dłuzszy czas realizacji
Gwarantujemy najniższą cenę
1190 zł
W cenie projektu:
  • Tablica + dziennik budowy
  • 16 projektów ogrodowych
  • Darmowa wysyłka (kurier, paczkomat, pobranie)
  • 30 dni na zwrot
  • Pozwolenie na zmiany z podpisem i pieczęcią autora
22 299 20 00 (pn-nd 9.30 do 19.30)

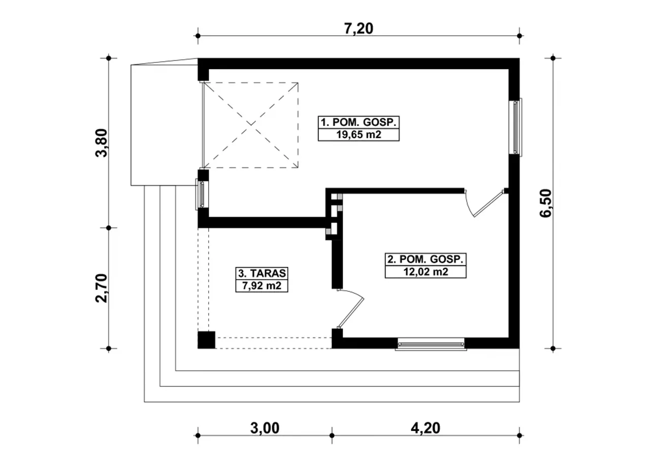
Rzuty gotowego projektu budynku G160

1. Pom. gospodarcze 19,65 m²
2. Pom. gospodarcze 12,02 m²
3. Taras 7,92 m²

Zapoznaj się ze szczegółami projektu - pobierz bezpłatne rysunki do: G160

Wypełnij formularz i otrzymaj rysunki w pdf z dokładnymi wymiarami budynku i pomieszczeń (długość, szerokość, wysokość) dla projektu G160

Parametry Techniczne gotowego projektu domu G160

Pow. użytkowa 31.67 m²
Powierzchnia zabudowy 46.8 m²
Kondygnacje parterowy
Garaż 1 stanowisko
Technologia murowany
Obiekt inny
Kubatura 214.3 m³
Przestrzeń z pom. gospodarczym, z wiatą/altaną
Wysokość budynku 5.18 m
Rodzaj dachu dwuspadowy
Obiekt inny (szczegóły) garaże
Kąt nachylenia dachu 35 °
Szerokość budynku 6.5 m
Długość budynku 7.2 m
Kalenica prostopadła do drogi

Nasze prawdziwe opinie z Google

Dodatki do projektu G160

Dodatki możesz kupić razem z projektem lub dokupić po czasie

[Planz] Tablica budowlana (0 zł)

[Planz] Dziennik budowy (0 zł)

[Planz] Wiertarka udarowa (0 zł)

[Planz] Zgoda na zmiany w projekcie (0 zł)

[Planz] Projekty architektury ogrodowej (0 zł)

[Planz] Charakterystyka energetyczna, tylko dla domów całorocznych (0 zł)

Wysyłka i płatność za projekt G160

Koszty wysyłki

bezpłatnie (0zł)

Formy płatności

przelew zwykły / PayNow
przy odbiorze

Czas oczekiwania

3-5 dni roboczych (jeśli projekt nie wymaga aktualizacji)

Podobne projekty do budynku G160

PRACOWNIA: Kup Projekt