22 299 20 00 (pn-nd 9.30 do 19.30)

Gotowy projekt budynku G137 (ID: 32158)

790 2025-12-22
G137 - 25.21m²
Możliwy dłuzszy czas realizacji
Gwarantujemy najniższą cenę
790 zł
W cenie projektu:
  • Tablica + dziennik budowy
  • 16 projektów ogrodowych
  • Darmowa wysyłka (kurier, paczkomat, pobranie)
  • 30 dni na zwrot
  • Pozwolenie na zmiany z podpisem i pieczęcią autora
22 299 20 00 (pn-nd 9.30 do 19.30)

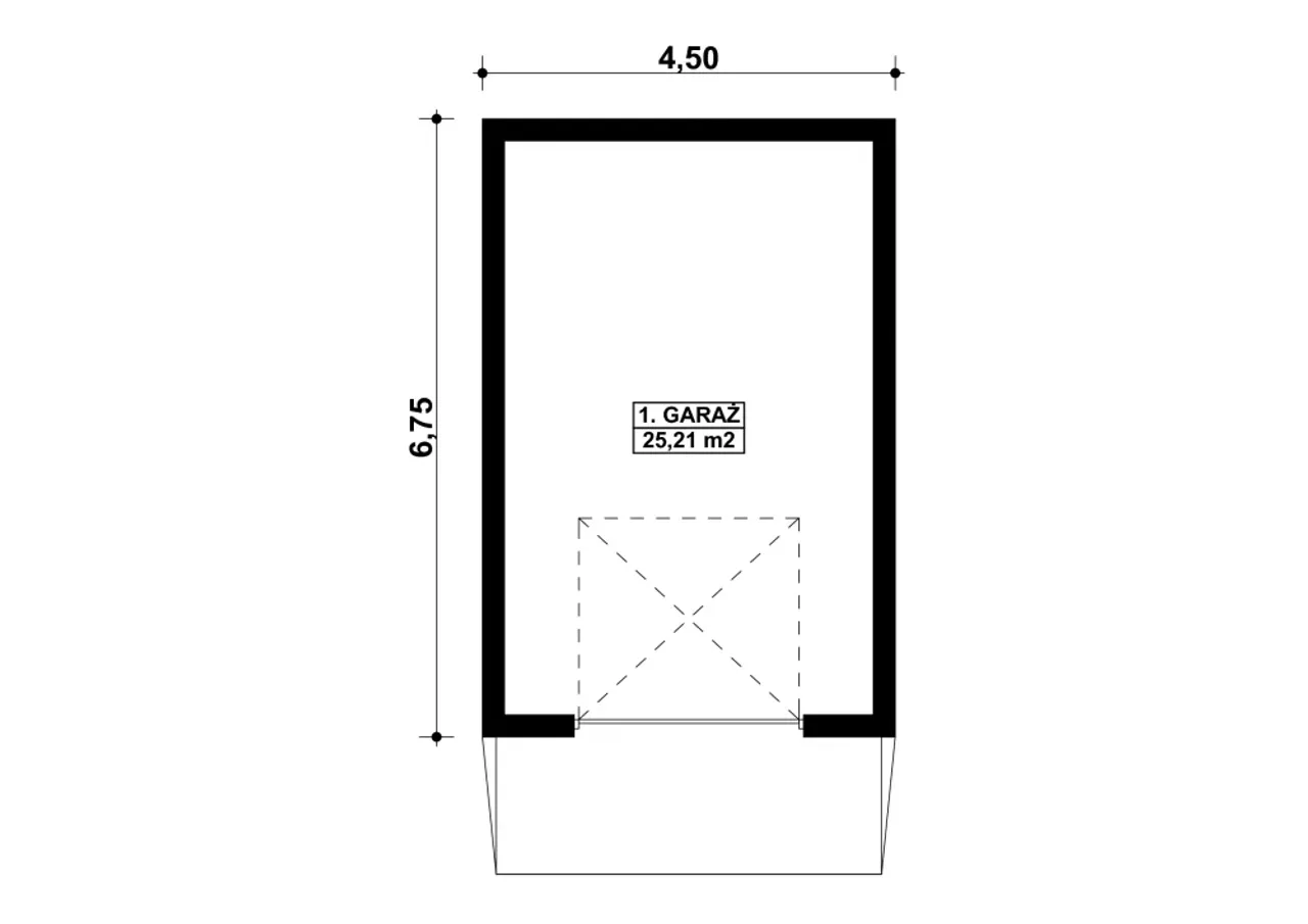
Rzuty gotowego projektu budynku G137

1. Garaż 25,21 m²

Zapoznaj się ze szczegółami projektu - pobierz bezpłatne rysunki do: G137

Wypełnij formularz i otrzymaj rysunki w pdf z dokładnymi wymiarami budynku i pomieszczeń (długość, szerokość, wysokość) dla projektu G137

Parametry Techniczne gotowego projektu domu G137

Pow. użytkowa 25.21 m²
Powierzchnia zabudowy 30.38 m²
Kondygnacje parterowy
Garaż 1 stanowisko
Technologia murowany
Obiekt inny
Wysokość budynku 4.01 m
Rodzaj dachu dwuspadowy
Obiekt inny (szczegóły) garaże
Kąt nachylenia dachu 27 °
Szerokość budynku 4.5 m
Długość budynku 6.75 m
Kalenica prostopadła do drogi
Kubatura 108.8 m³

Nasze prawdziwe opinie z Google

Dodatki do projektu G137

Dodatki możesz kupić razem z projektem lub dokupić po czasie

[Planz] Tablica budowlana (0 zł)

[Planz] Dziennik budowy (0 zł)

[Planz] Wiertarka udarowa (0 zł)

[Planz] Zgoda na zmiany w projekcie (0 zł)

[Planz] Projekty architektury ogrodowej (0 zł)

[Planz] Charakterystyka energetyczna, tylko dla domów całorocznych (0 zł)

Wysyłka i płatność za projekt G137

Koszty wysyłki

bezpłatnie (0zł)

Formy płatności

przelew zwykły / PayNow
przy odbiorze

Czas oczekiwania

3-5 dni roboczych (jeśli projekt nie wymaga aktualizacji)

Podobne projekty do budynku G137

PRACOWNIA: Kup Projekt