22 299 20 00 (pn-nd 9.30 do 19.30)

Gotowy projekt budynku G131 (ID: 31708)

990 2025-12-23
G131 - 44.5m²
Projekt dostępny od ręki
Gwarantujemy najniższą cenę
990 zł
W cenie projektu:
  • Tablica + dziennik budowy
  • 16 projektów ogrodowych
  • Darmowa wysyłka (kurier, paczkomat, pobranie)
  • 30 dni na zwrot
  • Pozwolenie na zmiany z podpisem i pieczęcią autora
22 299 20 00 (pn-nd 9.30 do 19.30)

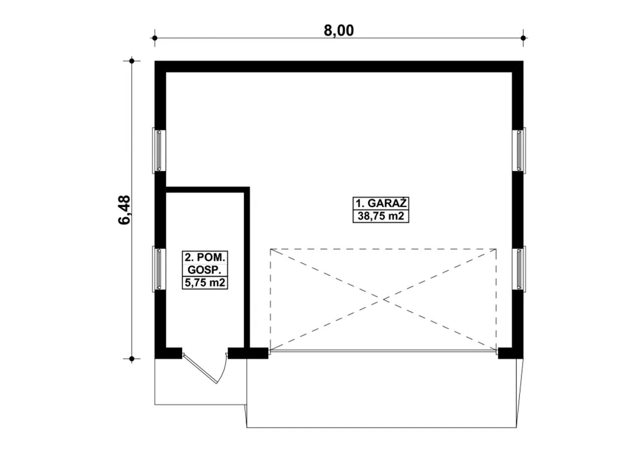
Rzuty gotowego projektu budynku G131

1. Garaż 38,75 m²
2. Pom. gospodarcze 5,75 m²

Zapoznaj się ze szczegółami projektu - pobierz bezpłatne rysunki do: G131

Wypełnij formularz i otrzymaj rysunki w pdf z dokładnymi wymiarami budynku i pomieszczeń (długość, szerokość, wysokość) dla projektu G131

Parametry Techniczne gotowego projektu domu G131

Pow. użytkowa 44.5 m²
Powierzchnia zabudowy 51.84 m²
Kondygnacje parterowy
Garaż 2 stanowiska
Technologia murowany
Obiekt inny
Obiekt inny (szczegóły) garaże
Kąt nachylenia dachu 30 °
Szerokość budynku 8 m
Kalenica równoległa do drogi
Długość budynku 6.48 m
Przestrzeń z pom. gospodarczym
Kubatura 210.1 m³
Wysokość budynku 4.84 m
Rodzaj dachu dwuspadowy

Nasze prawdziwe opinie z Google

Dodatki do projektu G131

Dodatki możesz kupić razem z projektem lub dokupić po czasie

[Planz] Tablica budowlana (0 zł)

[Planz] Dziennik budowy (0 zł)

[Planz] Wiertarka udarowa (0 zł)

[Planz] Zgoda na zmiany w projekcie (0 zł)

[Planz] Projekty architektury ogrodowej (0 zł)

[Planz] Charakterystyka energetyczna, tylko dla domów całorocznych (0 zł)

Wysyłka i płatność za projekt G131

Koszty wysyłki

bezpłatnie (0zł)

Formy płatności

przelew zwykły / PayNow
przy odbiorze

Czas oczekiwania

3-5 dni roboczych (jeśli projekt nie wymaga aktualizacji)

Podobne projekty do budynku G131

PRACOWNIA: Kup Projekt