22 299 20 00 (pn-nd 9.30 do 19.30)

Gotowy projekt budynku G126 (ID: 31705)

890 2025-12-23
G126 - 42.51m²
Możliwy dłuzszy czas realizacji
Gwarantujemy najniższą cenę
890 zł
W cenie projektu:
  • Tablica + dziennik budowy
  • 16 projektów ogrodowych
  • Darmowa wysyłka (kurier, paczkomat, pobranie)
  • 30 dni na zwrot
  • Pozwolenie na zmiany z podpisem i pieczęcią autora
22 299 20 00 (pn-nd 9.30 do 19.30)

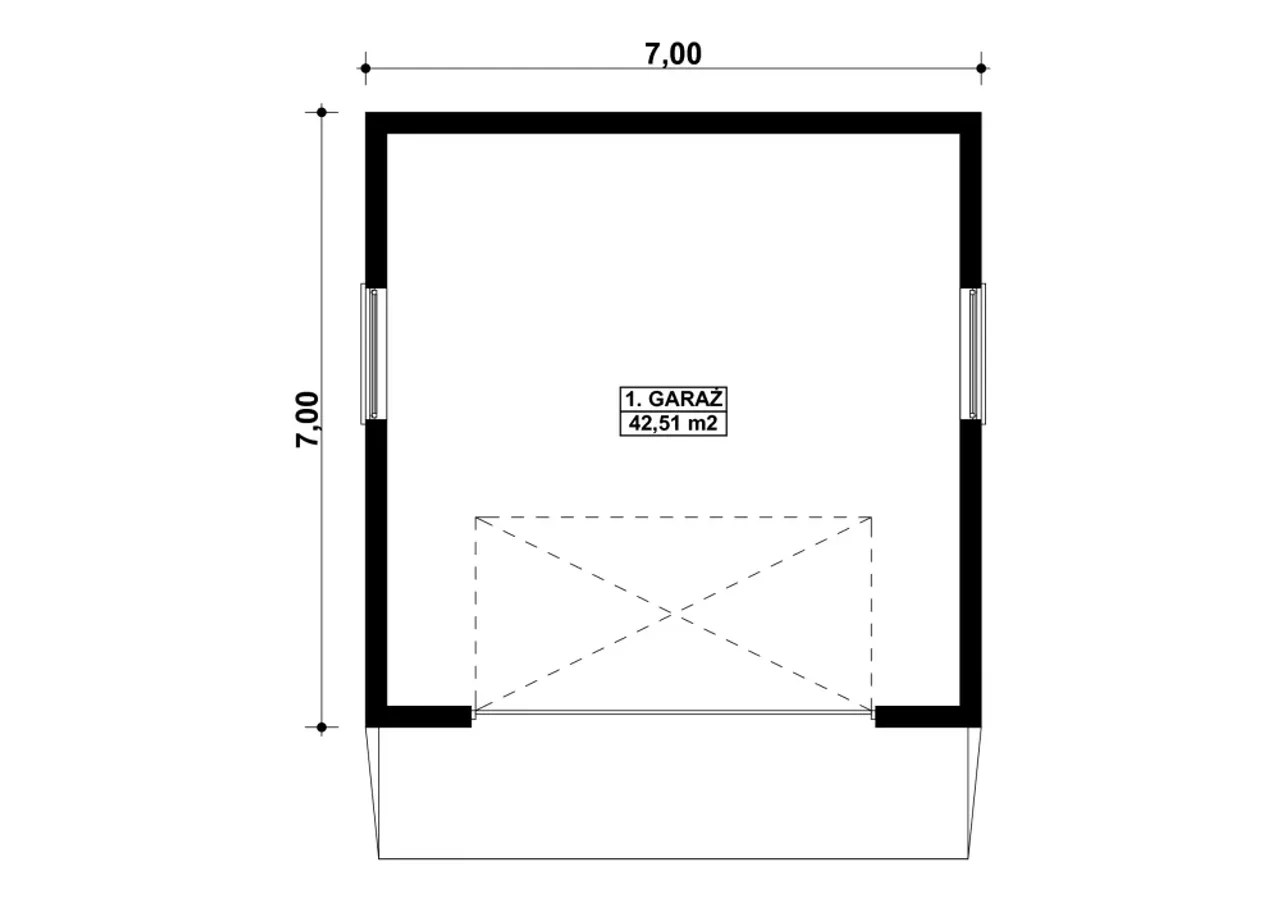
Rzuty gotowego projektu budynku G126

1. Garaż 42,51 m²

Zapoznaj się ze szczegółami projektu - pobierz bezpłatne rysunki do: G126

Wypełnij formularz i otrzymaj rysunki w pdf z dokładnymi wymiarami budynku i pomieszczeń (długość, szerokość, wysokość) dla projektu G126

Parametry Techniczne gotowego projektu domu G126

Pow. użytkowa 42.51 m²
Powierzchnia zabudowy 49 m²
Kondygnacje parterowy
Garaż 2 stanowiska
Technologia murowany
Obiekt inny
Wysokość budynku 3.45 m
Rodzaj dachu płaski
Obiekt inny (szczegóły) garaże
Kąt nachylenia dachu 5 °
Szerokość budynku 7 m
Długość budynku 7 m
Kalenica bez znaczenia
Kubatura 161.4 m³

Nasze prawdziwe opinie z Google

Dodatki do projektu G126

Dodatki możesz kupić razem z projektem lub dokupić po czasie

[Planz] Tablica budowlana (0 zł)

[Planz] Dziennik budowy (0 zł)

[Planz] Wiertarka udarowa (0 zł)

[Planz] Zgoda na zmiany w projekcie (0 zł)

[Planz] Projekty architektury ogrodowej (0 zł)

[Planz] Charakterystyka energetyczna, tylko dla domów całorocznych (0 zł)

Wysyłka i płatność za projekt G126

Koszty wysyłki

bezpłatnie (0zł)

Formy płatności

przelew zwykły / PayNow
przy odbiorze

Czas oczekiwania

3-5 dni roboczych (jeśli projekt nie wymaga aktualizacji)

Podobne projekty do budynku G126

699 zł

GP4 garaż dostawiany dwustanowiskowy

powierzchnia 34.5 m²
technologia murowany
stanowisk w garażu 2 stanowiska
kondygnacja parterowy
Zobacz projekt
PRACOWNIA: Kup Projekt